Skip to main content

MyWinkworth

Picture No. 06
Picture No. 08
Picture No. 09
Picture No. 07
Picture No. 03
Picture No. 04
Picture No. 01
Picture No. 02
Picture No. 05
6/14

Keith Grove, London, W12

3 bedroom flat/apartment in London

Offers in excess of £700,000 Leasehold

  • Bedrooms 3
  • Bathrooms 2
  • Reception rooms 1
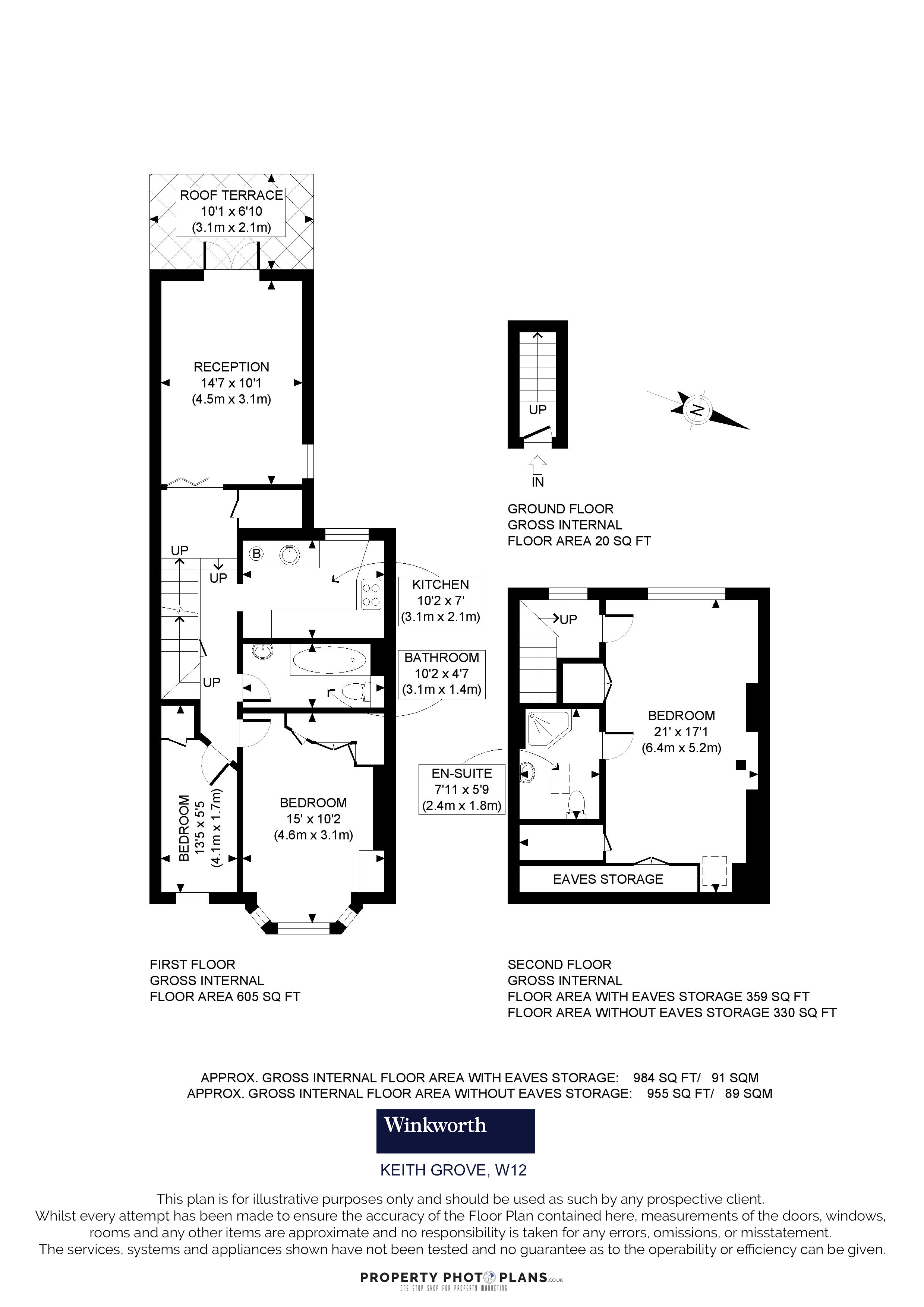
  • Floorplan

PICTURES AND VIDEOS

KEY FEATURES

  • Reception Room
  • Kitchen
  • 3 Bedrooms
  • En Suite Shower Room
  • Bathroom
  • Roof Terrace
  • 984 Sq Ft / 91 Sq M
  • Council Tax Band D
  • EPC rating Band C

KEY INFORMATION

  • Tenure: Leasehold
  • Lease Length: 111 yrs left
  • Council Tax Band: D
  • Local Authority: Hammersmith & Fulham

Description

A beautifully presented three-bedroom split level flat with a private roof terrace offering nearly 1000 sqft of space. Sold with no onward chain.

Presented in very good condition is this three-bedroom, two-bathroom split level flat on a quiet cul-de-sac.
On the first floor, the property comprises spacious reception room with direct access to a private roof terrace, separate kitchen, family bathroom and two bedrooms which benefit from built in storage.
The top floor has been converted in a spacious main bedroom with ensuite bathroom and ample built-in and eave storage.

Lease: 125 years from 13/11/2012
Service Charge: £725.28 pa
Ground Rent: £250 pa

Location

Keith Grove is a desirable tree lined quiet residential cul-de-sac which runs to the south of Uxbridge Road, ideal for the numerous amenities on offer in Shepherds Bush. The nearest Underground stations are Goldhawk Road, Shepherds Bush Market and Shepherds Bush, where both Central Line and London Overground services are on offer. The various amenities of Westfield London are also close to hand. Numerous well regarded schools are nearby, including St Stephen's CE Primary School.

Marketed by

Winkworth Shepherds Bush & Acton

Properties for sale in Shepherds Bush & Acton

Arrange a Viewing

Fill in the form below to arrange your property viewing.

This site is protected by reCAPTCHA and the Google Privacy Policy and Terms of Service apply.
Introduction text for the mortgage calculator

Mortgage Calculator

Fill in the details below to estimate your monthly repayments:

Approximate monthly repayment:

For more information, please contact Winkworth's mortgage partner, Trinity Financial, on +44 (0)20 7267 9399 and speak to the Trinity team.

Stamp Duty Calculator

Fill in the details below to estimate your stamp duty

The above calculator above is for general interest only and should not be relied upon

6/14
Picture No. 06
Picture No. 08
Picture No. 09
Picture No. 07
Picture No. 03
Picture No. 04
Picture No. 01
Picture No. 02
Picture No. 05

Meet the Team

At Winkworth Shepherds Bush Estate Agents, we pride ourselves on offering high standards and a personal service. As the longest serving agent in W12, we've been matching people with homes for over 30 years from our prominent position on Uxbridge Road. We love our area and between us, our close-knit team of 15 has over 120 years combined experience, so you'll be in safe hands.

See all team members

Got a question about this property?

This site is protected by reCAPTCHA and the Google Privacy Policy and Terms of Service apply.

More Properties like this

New Instruction

Thornfield Road, London, W12

£1,200,000 Freehold

Devonport Road, London, W12

£925,000 Share of Freehold

Under Offer

Davisville Road, London, W12

£800,000 Leasehold

Lime Grove, London, United Kingdom, W12

£795,000 Leasehold

Under Offer

Hetley Road, London, W12

£750,000 Leasehold

Davis Road, London, W3

£745,000 Share of Freehold

Online Valuations Aren’t Worth The Paper They’re Printed On.

When online valuations don’t give you the whole picture - try Winkworth’s expert service. Get a free property appraisal. Accurate valuations from our local property experts. No obligation to list with Winkworth. Choose a time convenient for you with our online booking system.

Fill in your details and someone will be in touch soon:

You have provisionally booked a valuation for . Please confirm your details below

We don't have date info available for this property, but if you fill in your details below, someone will be in touch to arrange a date soon

Please fill in the required fields below marked with *

This site is protected by reCAPTCHA and the Google Privacy Policy and Terms of Service apply.