Skip to main content

MyWinkworth

New Instruction

Picture No. 07
Picture No. 13
Picture No. 15
Picture No. 14
Picture No. 12
Picture No. 11
Picture No. 06
Picture No. 16
Picture No. 17
Picture No. 04
Picture No. 03
Picture No. 02
Picture No. 08
Picture No. 10
Picture No. 09
Picture No. 05
6/14

Coppice Avenue, Hellesdon, Norwich, Norfolk, NR6

2 bedroom bungalow in Hellesdon

Guide Price £220,000 Freehold

  • Bedrooms 2
  • Reception rooms 2
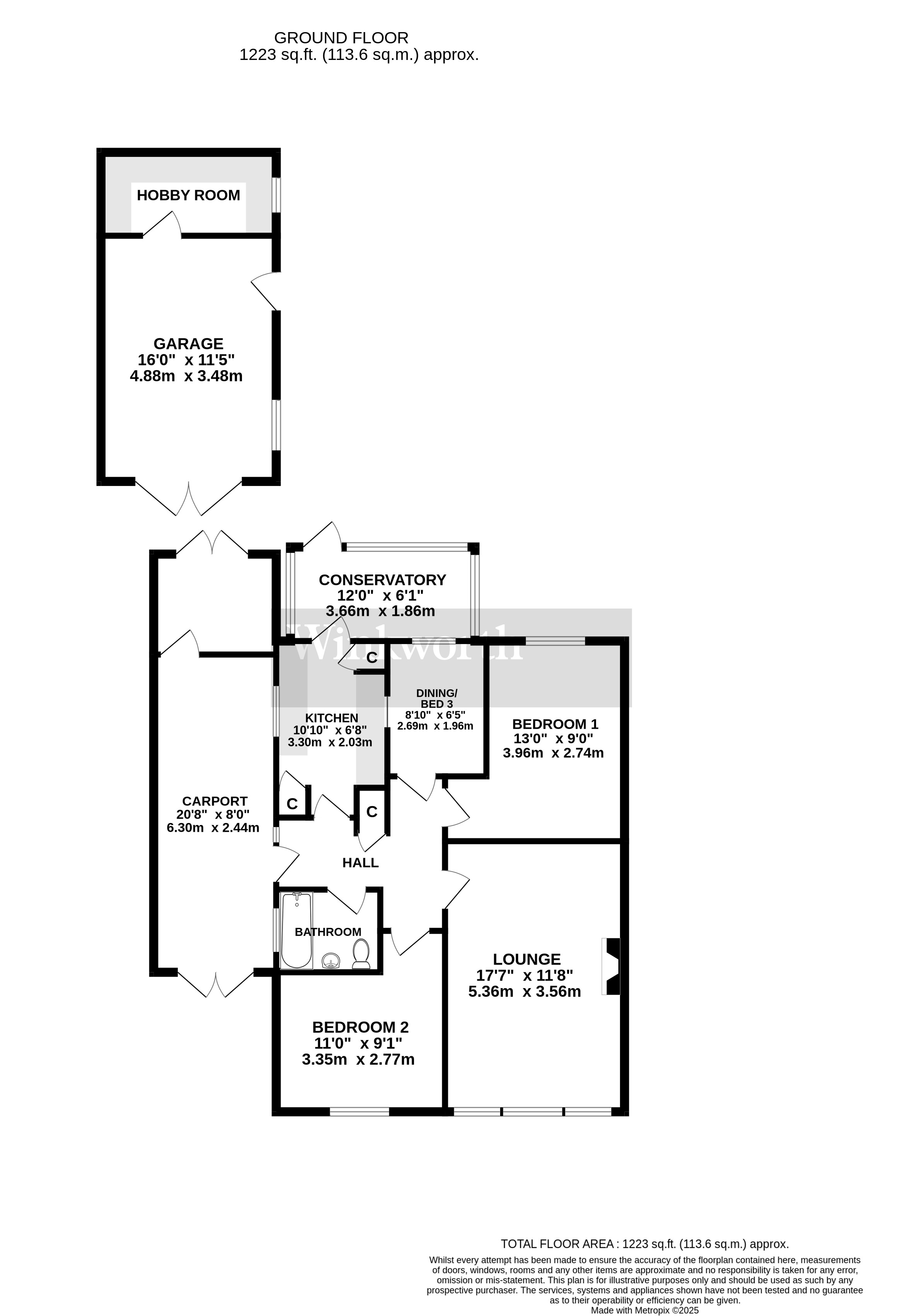
  • Floorplan

PICTURES AND VIDEOS

KEY FEATURES

  • No Onward Chain
  • Guide Price £220,000 - £230,000
  • Entrance Hall & 17ft Lounge
  • Fitted Kitchen & 12ft Conservatory
  • Dining Room/Bedroom 3
  • 20ft Carport & Garage/Hobby Room
  • Off-Road Parking To Private Drive
  • Double Glazing & Gas Central Heating
  • Private & Enclosed Rear Garden
  • Convenient Access To Local Amenities

KEY INFORMATION

  • Tenure: Freehold

Description

Located in the ever-popular suburb of Hellesdon and offered with No Onward Chain is this two-bedroom semi-detached bungalow. With convenient access to local amenities, schools for all ages and transport links into Norwich city centre, the property is perfectly suited to first time buyers, downsizers or investors alike.

The accommodation comprises a spacious 17ft lounge, family bathroom, two well-proportioned double bedrooms, a dining room with potential of a 3rd bedroom and a fitted kitchen leading to 12ft conservatory. The property also benefits from double glazing & gas central heating.

Outside, the bungalow boasts off-road parking via a private drive, leading to a 20ft carport. The rear garden enjoys a private and enclosed rear garden, laid mainly to lawn with generous patio space for outdoor dining or entertaining. The rear garden also gives access into the garage and hobby room.

Situated within a sought-after residential area and providing plenty of scope for future improvements, this home represents a fantastic opportunity to create your own space and really make this property your own. At a realistic asking price and ready to view immediately, we are expecting a lot of interest. Please call Winkworth now to arrange your viewing.

AGENTS NOTES
Tenure - Freehold
Council Tax Band - B
Local Authority - Broadland
We have been advised that the property is connected to mains water, electricity and gas.

Winkworth wishes to inform prospective buyers and tenants that these particulars are a guide and act as information only. All our details are given in good faith and believed to be correct at the time of printing but they don’t form part of an offer or contract. No Winkworth employee has authority to make or give any representation or warranty in relation to this property. All fixtures and fittings, whether fitted or not are deemed removable by the vendor unless stated otherwise and room sizes are measured between internal wall surfaces, including furnishings. The services, systems and appliances have not been tested, and no guarantee as to their operability or efficiency can be given.

Marketed by

Winkworth Hellesdon

Properties for sale in Hellesdon

Arrange a Viewing

Fill in the form below to arrange your property viewing.

This site is protected by reCAPTCHA and the Google Privacy Policy and Terms of Service apply.
Introduction text for the mortgage calculator

Mortgage Calculator

Fill in the details below to estimate your monthly repayments:

Approximate monthly repayment:

For more information, please contact Winkworth's mortgage partner, Trinity Financial, on +44 (0)20 7267 9399 and speak to the Trinity team.

Stamp Duty Calculator

Fill in the details below to estimate your stamp duty

The above calculator above is for general interest only and should not be relied upon

6/14
Picture No. 07
Picture No. 13
Picture No. 15
Picture No. 14
Picture No. 12
Picture No. 11
Picture No. 06
Picture No. 16
Picture No. 17
Picture No. 04
Picture No. 03
Picture No. 02
Picture No. 08
Picture No. 10
Picture No. 09
Picture No. 05

Meet the Team

Our team are here to support and advise our customers when they need it most. We understand that buying, selling, letting or renting can be daunting and often emotionally meaningful. We are there, when it matters, to make the journey as stress-free as possible.

See all team members

Got a question about this property?

This site is protected by reCAPTCHA and the Google Privacy Policy and Terms of Service apply.

More Properties like this

Fir Covert Road, Taverham, Norwich, Norfolk, NR8

£750,000 Freehold

Under Offer

Fakenham Road, Taverham, Norwich, Norfolk, NR8

£525,000 Freehold

New Instruction

Reepham Road, Hellesdon, Norwich, Norfolk, NR6

Guide Price £400,000 Freehold

Under Offer

Harbord Road, Frettenham, Norwich, Norfolk, NR12

Guide Price £375,000 Freehold

Under Offer

Bramble Avenue, Hellesdon, Norwich, Nofolk, NR6

Guide Price £375,000 Freehold

Under Offer

Prince Andrews Road, Hellesdon, Norwich, Norfolk, NR6

£375,000 Freehold

Online Valuations Aren’t Worth The Paper They’re Printed On.

When online valuations don’t give you the whole picture - try Winkworth’s expert service. Get a free property appraisal. Accurate valuations from our local property experts. No obligation to list with Winkworth. Choose a time convenient for you with our online booking system.

Fill in your details and someone will be in touch soon:

You have provisionally booked a valuation for . Please confirm your details below

We don't have date info available for this property, but if you fill in your details below, someone will be in touch to arrange a date soon

Please fill in the required fields below marked with *

This site is protected by reCAPTCHA and the Google Privacy Policy and Terms of Service apply.