Skip to main content

MyWinkworth

Sold

Front
Garden
Sitting Room
Dining Room
Kitchen
Dining Room
Bedroom
Bedroom
Bathroom
Bedroom
Garden
Garage
6/14

Cawstons Meadow, Poringland, Norwich, Norfolk, NR14

3 bedroom house in Poringland

Guide Price £270,000 Freehold

  • Bedrooms 3
  • Bathrooms 1
  • Reception rooms 2
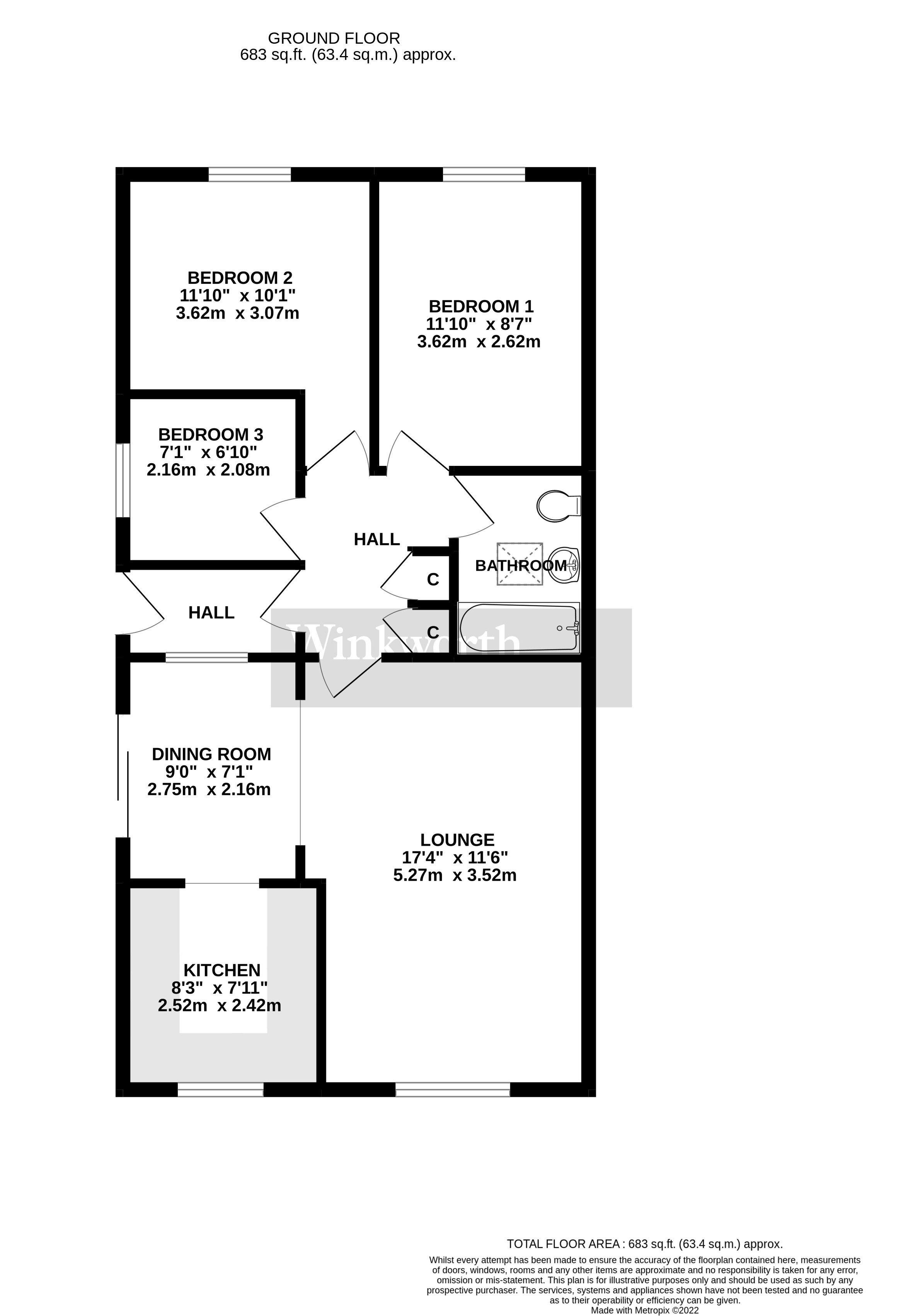
  • Floorplan

PICTURES AND VIDEOS

KEY FEATURES

  • Guide Price £270,000 - £280,000
  • No Onward Chain
  • Walking Distance Of Amenities & Schools
  • Private Garden Designed To Be Low Maintenance
  • Extensive Driveway & Detached Garage
  • Immaculate Condition Throughout
  • Sizeable Lounge
  • Pristine Kitchen Which Flows Onto The Dining Room
  • 3 Bedrooms All Offering Multiple Uses
  • Ready To Move Straight Into

KEY INFORMATION

  • Tenure: Freehold

Description

Occupying a prime position backing onto private woodland stands this pristine detached bungalow. Offered with no onward chain and ready to move straight into this single storey home is going to be popular!

The lounge is a generous size and has been designed to seamlessly flow as one with the dining room, creating the perfect environment for entertaining. The dining room is adjacent to the immaculate kitchen, these two rooms could easily be combined if desired to embrace modern living. The bathroom is in great condition and all three bedrooms offer a variety of uses.

The rear garden enjoys a high level of privacy and has been designed to be low maintenance. The driveway offers ample off-road parking for multiple vehicles and leads to a detached garage equipped with power and light.

The thriving village of Poringland plays host to a selection of local amenities which include a supermarket, restaurant, shops and two pubs. Both the local primary and secondary schools are rated 'Good' by Ofsted and the village also benefits from two doctor surgeries, a private dental practice, a pharmacy and a community centre which features a library and cafe.
Introduction text for the mortgage calculator

Mortgage Calculator

Fill in the details below to estimate your monthly repayments:

Approximate monthly repayment:

For more information, please contact Winkworth's mortgage partner, Trinity Financial, on +44 (0)20 7267 9399 and speak to the Trinity team.

Stamp Duty Calculator

Fill in the details below to estimate your stamp duty

The above calculator above is for general interest only and should not be relied upon

6/14
Front
Garden
Sitting Room
Dining Room
Kitchen
Dining Room
Bedroom
Bedroom
Bathroom
Bedroom
Garden
Garage

Meet the Team

With over 100 years of combined experience, our Poringland team offer unrivalled local knowledge and a genuine passion for property. Since opening in 2018, we’ve proudly supported more local schools, events and community initiatives than any other agent in the area — because community isn’t just part of what we do, it’s who we are. As market leaders, we’re committed to delivering exceptional service and care to every customer. Whether you’re buying, selling, renting, lettings or simply exploring your next move, pop into our office for a coffee and a warm welcome.

See all team members

Got a question about this property?

This site is protected by reCAPTCHA and the Google Privacy Policy and Terms of Service apply.

More Properties like this

Main Road, Filby, Great Yarmouth, Norfolk, NR29

OIRO £2,500,000 Freehold

New Instruction

Long Road, Framingham Earl, Norwich, Norfolk, NR14

Offers in excess of £1,650,000 Freehold

Under Offer

Yarmouth Road, Ditchingham, Bungay, NR35

Guide Price £900,000 Freehold

Under Offer

Cranes Road, Hethel, Norwich, Norfolk, NR14

Guide Price £850,000 Freehold

Low Road, North Tuddenham, Dereham, Norfolk, NR20

Guide Price £800,000 Freehold

Under Offer

Green Fall, Poringland, Norwich, Norfolk, NR14

Offers in excess of £800,000 Freehold

Online Valuations Aren’t Worth The Paper They’re Printed On.

When online valuations don’t give you the whole picture - try Winkworth’s expert service. Get a free property appraisal. Accurate valuations from our local property experts. No obligation to list with Winkworth. Choose a time convenient for you with our online booking system.

Fill in your details and someone will be in touch soon:

You have provisionally booked a valuation for . Please confirm your details below

We don't have date info available for this property, but if you fill in your details below, someone will be in touch to arrange a date soon

Please fill in the required fields below marked with *

This site is protected by reCAPTCHA and the Google Privacy Policy and Terms of Service apply.