Skip to main content

MyWinkworth

Front
Garden
Kitchen
Kitchen/Lounge/Diner
Dining Area
Lounge
Bedroom
Bedroom
Ensuite
Garden
Kitchen
Kitchen/Diner
Kitchen/Diner
Utility Entrance
Garden
Bathroom
6/14

Cawstons Meadow, Poringland, Norwich, Norfolk, NR14

3 bedroom bungalow in Poringland

Guide Price £350,000 Freehold

  • Bedrooms 3
  • Bathrooms 2
  • Reception rooms 1
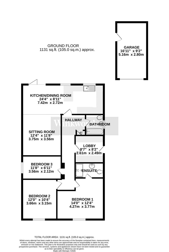
  • Dimensions 975 sq ft
    90 sq m
  • Floorplan

PICTURES AND VIDEOS

KEY FEATURES

  • Guide Price £350,000 - £375,000
  • Quiet Cul-De-Sac Location
  • Walking Distance Of Amenities And Schools
  • Completely Reconfigured And Extended Bungalow
  • Driveway Providing Off-Road Parking And Detached Garage
  • Practical Utility Room Entrance
  • Three Well-Proportioned Bedrooms
  • Modern En-Suite Shower Room And Additional Bathroom
  • Stunning Kitchen-Diner With Integrated Appliances
  • Bi-Fold Doors Opening Onto The Rear Garden
  • Open-Plan Flow Into The Sitting Room

KEY INFORMATION

  • Tenure: Freehold
  • Council Tax Band: C
  • Local Authority: South Norfolk Council

Description

Set within a small and peaceful cul-de-sac, this impressively reconfigured and extended bungalow offers a superb balance of contemporary design, practical living, and an excellent village location. The property sits within walking distance of local amenities, schools, and everyday conveniences, making it an ideal home for families, downsizers, and professionals alike.

From the moment you arrive, it is clear that this home has been thoughtfully upgraded by the present sellers. A driveway provides off-road parking and leads directly to the garage, offering both convenience and storage.

You enter the property via a well-appointed utility room, perfectly designed for modern family life with ample space for coats, shoes, and laundry appliances. This creates a practical and welcoming entrance, keeping the main living areas calm and clutter-free.

The central hallway leads to three well-proportioned bedrooms, all of which are light, comfortable, and versatile. The principal bedroom benefits from a stylish, modern en-suite shower room, finished with contemporary tiling and fittings. A separate family bathroom, located off the hallway, serves the remaining bedrooms and guests.

The heart of the home is undoubtedly the stunning kitchen-diner, a space designed for both everyday living and entertaining. The kitchen features integrated appliances, sleek cabinetry, and a breakfast bar, while still allowing for generous dining space. Bi-fold doors open directly onto the rear garden, seamlessly connecting indoor and outdoor living and flooding the space with natural light.

Flowing naturally from the kitchen-diner is the sitting room, creating a sociable and open layout that works perfectly for modern lifestyles, yet still offers defined areas to relax and unwind.

The rear garden is well-suited for families and entertaining, with direct access from the kitchen-diner. Fully enclosed and pleasantly private, the garden is a welcome extension of the living space.

Discover Life in Poringland;

Where Village Charm Meets Contemporary Convenience!

Perfectly positioned just five miles south of Norwich, Poringland is a flourishing village that effortlessly balances countryside calm with everyday connectivity. This is a community that’s constantly evolving, yet remains deeply rooted in the beauty and tranquillity of its rural setting.

At the heart of the village lies a newly unveiled Tesco Express, bringing with it a fresh wave of modern convenience. Just moments away, a fully revamped petrol station ensures smooth travel for commuters and weekend explorers alike, it’s the little details that make village life here effortlessly easy.

Everyday life is well-catered for with a range of local amenities including a pharmacy, doctors’ surgery, community centre, hair salons, a popular café, takeaways, and two well-regarded public houses. For those working from home, the village offers high-speed broadband options, while for those commuting, Norwich city centre is easily accessible by car or regular bus links.

Poringland is particularly popular with families, thanks to its strong educational offering. Poringland Primary School & Nursery is rated Good by Ofsted and enjoys an excellent local reputation. For older students, Framingham Earl High School sits just a few minutes away and provides a well-rounded secondary education.

Neighbouring villages also offer superb schooling choices. Stoke Holy Cross Primary School, Brooke Primary, and Alpington Primary School are all well-regarded within the wider catchment area, while the independent schools of Norwich including Norwich High School for Girls, Town Close, and Norwich School are within easy reach for those seeking a private education.

Nature is always within reach, with the rolling meadows and woodlands of High Ash Farm just a short walk away. Whether you’re an early morning runner, a weekend rambler, or someone who simply enjoys watching the seasons change, this unspoilt haven of biodiversity invites you to slow down and reconnect with the land.

Dining is a true pleasure here. Moments from your doorstep sits Caistor Hall, a Georgian country house now home to the Michelin-recommended restaurant by Mark Poynton. Its seasonal tasting menus draw food lovers from far and wide, all seeking that rare combination of exceptional cuisine and timeless surroundings.

And for something a little more laid-back yet equally special, The Wildebeest in Stoke Holy Cross offers contemporary dishes crafted with local flair, perfect for Sunday lunches, date nights, and everything in between.

On the edge of the village, the gentle rise of Stoke Hill provides panoramic views over the Norfolk countryside, ideal for reflective walks and golden-hour moments.

Poringland is more than a place to live. It’s a lifestyle, rural yet refined, peaceful yet well-connected. Whether you’re raising a family, downsizing in style, or seeking a countryside escape without compromising on quality, this vibrant village is ready to welcome you home.

Additional Information:
Council Tax Band - C
Local Authority - South Norfolk Council
We have been advised that the property is connected to mains water, drainage, electricity and gas.

Winkworth wishes to inform prospective buyers and tenants that these particulars are a guide and act as information only. All our details are given in good faith and believed to be correct at the time of printing but they don’t form part of an offer or contract. No Winkworth employee has authority to make or give any representation or warranty in relation to this property. All fixtures and fittings, whether fitted or not are deemed removable by the vendor unless stated otherwise and room sizes are measured between internal wall surfaces, including furnishings. The services, systems and appliances have not been tested, and no guarantee as to their operability or efficiency can be given.

Marketed by

Winkworth Poringland

Properties for sale in Poringland

Arrange a Viewing

Fill in the form below to arrange your property viewing.

This site is protected by reCAPTCHA and the Google Privacy Policy and Terms of Service apply.
Introduction text for the mortgage calculator

Mortgage Calculator

Fill in the details below to estimate your monthly repayments:

Approximate monthly repayment:

For more information, please contact Winkworth's mortgage partner, Trinity Financial, on +44 (0)20 7267 9399 and speak to the Trinity team.

Stamp Duty Calculator

Fill in the details below to estimate your stamp duty

The above calculator above is for general interest only and should not be relied upon

6/14
Front
Garden
Kitchen
Kitchen/Lounge/Diner
Dining Area
Lounge
Bedroom
Bedroom
Ensuite
Garden
Kitchen
Kitchen/Diner
Kitchen/Diner
Utility Entrance
Garden
Bathroom

Meet the Team

With over 100 years of combined experience, our Poringland team offer unrivalled local knowledge and a genuine passion for property. Since opening in 2018, we’ve proudly supported more local schools, events and community initiatives than any other agent in the area — because community isn’t just part of what we do, it’s who we are. As market leaders, we’re committed to delivering exceptional service and care to every customer. Whether you’re buying, selling, renting, lettings or simply exploring your next move, pop into our office for a coffee and a warm welcome.

See all team members

Got a question about this property?

This site is protected by reCAPTCHA and the Google Privacy Policy and Terms of Service apply.

More Properties like this

The Street, Surlingham, Norwich, Norfolk, NR14

Offers over £500,000 Freehold

Under Offer

Norwich Road, Stoke Holy Cross, Norwich, Norfolk, NR14

Guide Price £490,000 Freehold

Poringland Road, Stoke Holy Cross, Norwich, Norfolk, NR14

Guide Price £475,000 Freehold

Caistor Lane, Caistor St. Edmund, Norwich, Norfolk, NR14

Offers in excess of £475,000 Freehold

Under Offer

Wheel Road, Alpington, Norwich, Norfolk, NR14

Guide Price £425,000 Freehold

Under Offer

Boundary Way, Poringland, Norwich, Norfolk, NR14

Guide Price £425,000 Freehold

Online Valuations Aren’t Worth The Paper They’re Printed On.

When online valuations don’t give you the whole picture - try Winkworth’s expert service. Get a free property appraisal. Accurate valuations from our local property experts. No obligation to list with Winkworth. Choose a time convenient for you with our online booking system.

Fill in your details and someone will be in touch soon:

You have provisionally booked a valuation for . Please confirm your details below

We don't have date info available for this property, but if you fill in your details below, someone will be in touch to arrange a date soon

Please fill in the required fields below marked with *

This site is protected by reCAPTCHA and the Google Privacy Policy and Terms of Service apply.