New Instruction
Cardinal Avenue, Borehamwood, Hertfordshire, WD6
3 bedroom house in Borehamwood
£900,000 Freehold
- 3
- 2
- 2
-
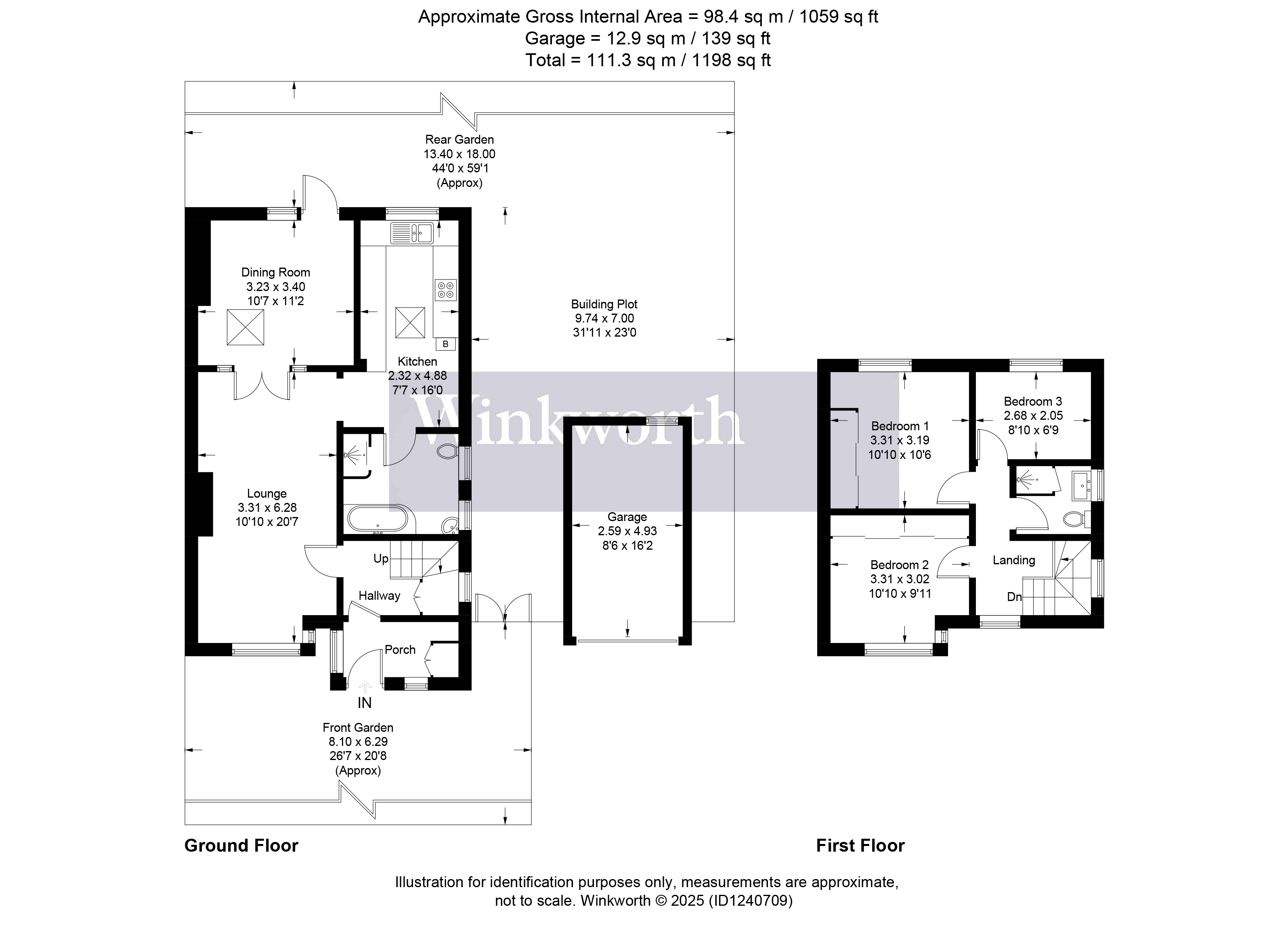
1059 sq ft
98 sq m -
PICTURES AND VIDEOS



















KEY FEATURES
- 3 Bedrooms
- South Borehamwood
- Existing House, 1059 Square Feet
- Southerly Facing Garden
- Convenient and Sought After Location
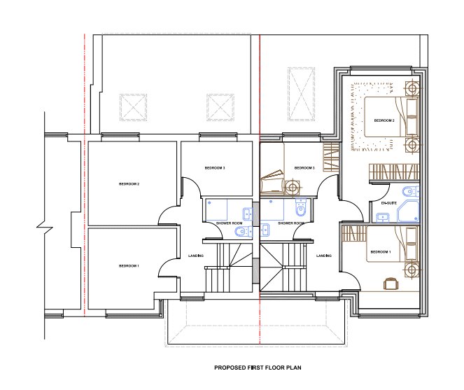
- Planning Permission Granted Ref : 25/0324/Ful
KEY INFORMATION
- Tenure: Freehold
- Council Tax Band: E
- Local Authority: Hertsmere Council
Description
Located on the South side of Borehamwood the corner site is within walking distance of Borehamwood High Street and Thameslink Station and close to "Good" and "Outstanding" Ofsted rated schools including Monksmead and Yavneh
Full planning details are available by either visiting the planning section of the Hertsmere council web site or upon request from ourselves, planning ref : 25/0324/FUL
With planning permission already granted to build a three bedroom, two bathroom house to the side of the existing three bedroom semi-detached family house this purchase represents almost unique opportunity for either a developer or end user.
Located on the South side of Borehamwood the corner site is within walking distance of Borehamwood High Street and Thameslink Station and close to "Good" and "Outstanding" Ofsted rated schools including Monksmead and Yavneh
Full planning details are available by either visiting the planning section of the Hertsmere council web site or upon request from ourselves, planning ref : 25/0324/FUL
Rooms and Accommodations
- South Borehamwood
- Existing House, 1059 Square feet
- Southerly Facing Garden
- Convenient and Sought After Location
- Planning Permission Granted Ref : 25/0324/FUL
Marketed by
Winkworth Borehamwood & Elstree
Properties for sale in Borehamwood & ElstreeArrange a Viewing
Fill in the form below to arrange your property viewing.
Mortgage Calculator
Fill in the details below to estimate your monthly repayments:
Approximate monthly repayment:
For more information, please contact Winkworth's mortgage partner, Trinity Financial, on +44 (0)20 7267 9399 and speak to the Trinity team.
Stamp Duty Calculator
Fill in the details below to estimate your stamp duty
The above calculator above is for general interest only and should not be relied upon
Meet the Team
We currently have a team of eight staff members consisting of sales, lettings, management & marketing. Collectively the team have over 60 years worth of experience. The office is located on the main thorough fare of the town centre with an attractive contemporary main office interior.
See all team members