Skip to main content

MyWinkworth

Sold

Reception Room 1 P2
Reception Room 1 P4
External
Reception Room 1 P1
Kitchen Part One
Reception Room 1 P3
Kitchen Part Two
Dining Area
Reception Room 2 P1
Staircase
Bedroom One Part One
Bedroom One Part Two
Bedroom Two Part One
Bedroom Two Part Two
Bedroom Three Part 1
Bedroom Three Part 2
Bedroom Four
Bathroom Part One
Bedroom Part Two
Garden Part One
Garden Part Two
Garden Part Three
6/14

Ashbourne Grove, East Dulwich, London, SE22

4 bedroom house

Offers in excess of £1,500,000 Freehold

  • Bedrooms 4
  • Bathrooms 2
  • Reception rooms 2
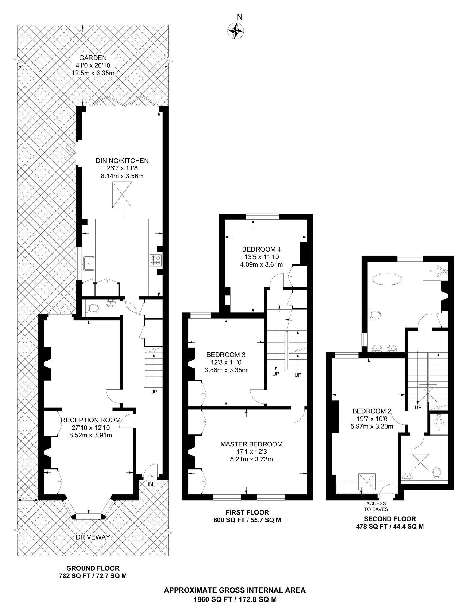
  • Floorplan

PICTURES AND VIDEOS

KEY FEATURES

  • Four Bedrooms
  • Semi-Detached Victorian House
  • Double Reception Room
  • Large Kitchen-Diner
  • Bathroom & Shower Room
  • Potential to Extend STPP
  • Off-Street Parking
  • Freehold

KEY INFORMATION

  • Tenure: Freehold

Description

A grand and rarely available property, situated on one of the most sought-after roads in SE22.

This stunning semi-detached Victorian home, boasts a spacious double reception complete with original cornicing, plantation shutters, engineered wood flooring, and bespoke joinery. The ground floor further comprises a downstairs WC, and an extended kitchen diner to the rear. The kitchen-diner boasts a fully fitted bespoke Ian Dunn kitchen with built-in appliances, and a range cooker, bi-fold doors lead out to a sunny garden to the rear complete with a patio and spacious lawned area. There is further scope to extend into the side return STPP. The first floor comprises three double bedrooms, the main bedroom boasting built-in wardrobes and the most fantastic original oak flooring. The second floor is home to a large family bathroom, complete with a free-standing bath, spacious shower, and slate flooring. The loft has been converted to allow a shower room; and a further large double bedroom. There is scope to extend the loft further STPP. Further benefits include off-street parking and access to the popular primary and secondary schools in the area. Lordship Lane is a stone's throw with its impressive array of shops, bars, and restaurants. Transport links are offered via East Dulwich station for direct links to London Bridge or a short bus to Denmark Hill for the overground. This is a stunning family home and early viewings are highly advised.
Introduction text for the mortgage calculator

Mortgage Calculator

Fill in the details below to estimate your monthly repayments:

Approximate monthly repayment:

For more information, please contact Winkworth's mortgage partner, Trinity Financial, on +44 (0)20 7267 9399 and speak to the Trinity team.

Stamp Duty Calculator

Fill in the details below to estimate your stamp duty

The above calculator above is for general interest only and should not be relied upon

6/14
Reception Room 1 P2
Reception Room 1 P4
External
Reception Room 1 P1
Kitchen Part One
Reception Room 1 P3
Kitchen Part Two
Dining Area
Reception Room 2 P1
Staircase
Bedroom One Part One
Bedroom One Part Two
Bedroom Two Part One
Bedroom Two Part Two
Bedroom Three Part 1
Bedroom Three Part 2
Bedroom Four
Bathroom Part One
Bedroom Part Two
Garden Part One
Garden Part Two
Garden Part Three

Meet the Team

Our team at Winkworth Dulwich Estate Agents are here to support and advise our customers when they need it most. We understand that buying, selling, letting or renting can be daunting and often emotionally meaningful. We are there, when it matters, to make the journey as stress-free as possible.

See all team members

Got a question about this property?

This site is protected by reCAPTCHA and the Google Privacy Policy and Terms of Service apply.

More Properties like this

Video Tour

Under Offer

Crystal Palace Road, East Dulwich, London, SE22

Offers in excess of £2,000,000 Freehold

Under Offer

Crystal Palace Road, East Dulwich, London, SE22

£2,000,000 Freehold

Video Tour

Under Offer

Overhill Road, East Dulwich, London, SE22

£2,000,000 Freehold

Under Offer

Friern Road, East Dulwich, London, SE22

Offers in excess of £1,800,000 Freehold

Under Offer

Ondine Road, Peckham Rye, London, SE15

Offers in excess of £1,800,000 Freehold

Under Offer

Bellenden Road, Peckham Rye, London, SE15

Offers in excess of £1,800,000 Freehold

Online Valuations Aren’t Worth The Paper They’re Printed On.

When online valuations don’t give you the whole picture - try Winkworth’s expert service. Get a free property appraisal. Accurate valuations from our local property experts. No obligation to list with Winkworth. Choose a time convenient for you with our online booking system.

Fill in your details and someone will be in touch soon:

You have provisionally booked a valuation for . Please confirm your details below

We don't have date info available for this property, but if you fill in your details below, someone will be in touch to arrange a date soon

Please fill in the required fields below marked with *

This site is protected by reCAPTCHA and the Google Privacy Policy and Terms of Service apply.