Skip to main content

MyWinkworth

Picture No. 03
Picture No. 10
Picture No. 08
Picture No. 06
Picture No. 04
Picture No. 09
Picture No. 13
Picture No. 12
Picture No. 11
Picture No. 14
Picture No. 15
Picture No. 07
6/14

Sherwood Street, Reading, Berkshire, RG30

3 bedroom house in Reading

£391 per week (£1,695 per month) Fees may apply

  • Bedrooms 3
  • Bathrooms 1
  • Reception rooms 2
  • Unfurnished
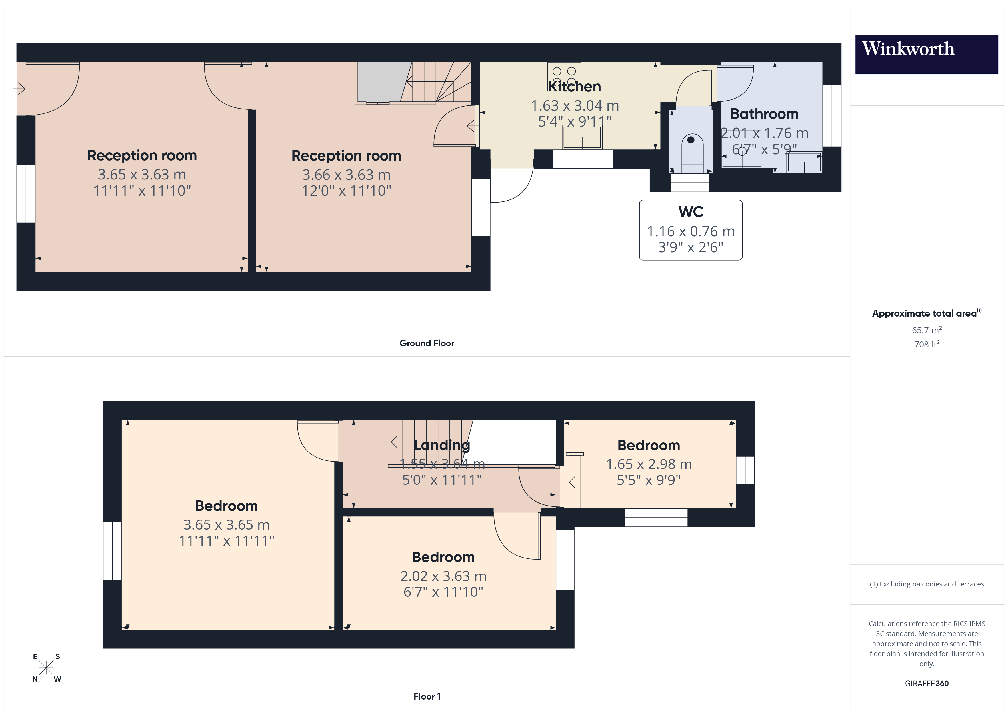
  • Floorplan

PICTURES AND VIDEOS

KEY FEATURES

  • Three bedroom terrace house
  • Refurbished throughout
  • Private rear garden
  • On road residents parking
  • Council tax band B
  • Available 6th March 2026
  • Unfurnished

KEY INFORMATION

  • Deposit: 5 Weeks rent
  • Council Tax Band: B
  • Local Authority: Reading Borough Council

Description

Newly refurbished terrace house in West Reading located close to local amenities and transport links with easy access to Reading town centre. The property comprises two reception rooms, brand new kitchen and shower room, separate cloakroom and three bedrooms. Further benefits include on road residents parking and low maintenance private rear garden. Available 6th March 2026. Unfurnished.

Location

Reading is a thriving, well-connected town in the heart of Berkshire that combines the charm of riverside living with the energy of a growing urban hub. Ideally situated just 25 minutes from London Paddington by train, it appeals to commuters, families, and professionals alike. The town is undergoing exciting regeneration, bringing new homes, retail, and leisure developments to an already dynamic community.

Reading boasts an excellent selection of amenities, including The Oracle shopping centre, a lively restaurant and nightlife scene, and picturesque riverside walks along the River Thames and River Kennet. Its highly rated schools, including several top-performing grammar and independent schools, make it particularly attractive for families.

For professionals, Reading is a major centre for technology and finance, with companies like Microsoft, Oracle, and PwC having a strong local presence. Its proximity to the M4 corridor also enhances its appeal for business and logistics.

Green spaces such as Prospect Park, Forbury Gardens, and nearby countryside offer a perfect balance of urban convenience and outdoor lifestyle. With a diverse housing market ranging from modern riverside apartments to Victorian terraces and spacious family homes in leafy suburbs like Caversham and Earley, Reading offers something for every buyer or tenant.

Marketed by

Winkworth Reading

Properties for rent in Reading

Arrange a Viewing

Fill in the form below to arrange your property viewing.

This site is protected by reCAPTCHA and the Google Privacy Policy and Terms of Service apply.
6/14
Picture No. 03
Picture No. 10
Picture No. 08
Picture No. 06
Picture No. 04
Picture No. 09
Picture No. 13
Picture No. 12
Picture No. 11
Picture No. 14
Picture No. 15
Picture No. 07

Meet the Team

Located just 36 miles from Central London and 24 miles from Oxford, Reading's geographical placement is perfect for living and working or commuting. Michael and James are established professionals who have years of combined experience and local knowledge and can offer you a friendly approach and unparalleled service.

See all team members

Got a question about this property?

This site is protected by reCAPTCHA and the Google Privacy Policy and Terms of Service apply.

More Properties like this

Virtual Tour

Let Agreed

Islandstone Lane, Hurst, Reading, Berkshire, RG10

£1,038 per week (£4,500 per month)

Virtual Tour

Let Agreed

St. Annes Drive, Wokingham, Berkshire, RG40

£808 per week (£3,500 per month)

Virtual Tour

Mansfield Road, Reading, Berkshire, RG1

£577 per week (£2,500 per month)

New Instruction

Clevedon Road, Tilehurst, Reading, Berkshire, RG31

£577 per week (£2,500 per month)

Virtual Tour

Let Agreed

Champlain Street, Reading, Berkshire, RG2

£531 per week (£2,300 per month)

Virtual Tour

Let Agreed

Downshire Square, Reading, Berkshire, RG1

£519 per week (£2,250 per month)

Online Valuations Aren’t Worth The Paper They’re Printed On.

When online valuations don’t give you the whole picture - try Winkworth’s expert service. Get a free property appraisal. Accurate valuations from our local property experts. No obligation to list with Winkworth. Choose a time convenient for you with our online booking system.

Fill in your details and someone will be in touch soon:

You have provisionally booked a valuation for . Please confirm your details below

We don't have date info available for this property, but if you fill in your details below, someone will be in touch to arrange a date soon

Please fill in the required fields below marked with *

This site is protected by reCAPTCHA and the Google Privacy Policy and Terms of Service apply.