Skip to main content

MyWinkworth

Picture No. 09
Picture No. 18
Picture No. 11
Picture No. 13
Picture No. 10
Picture No. 2
Picture No. 12
Picture No. 14
6/14

Firgrove Hill, Farnham, Surrey, GU9

1 bedroom house in Farnham

£167 per week (£725 per month) Fees may apply

  • Bedrooms 1
  • Bathrooms 1
  • Reception rooms 1
  • Part-furnished
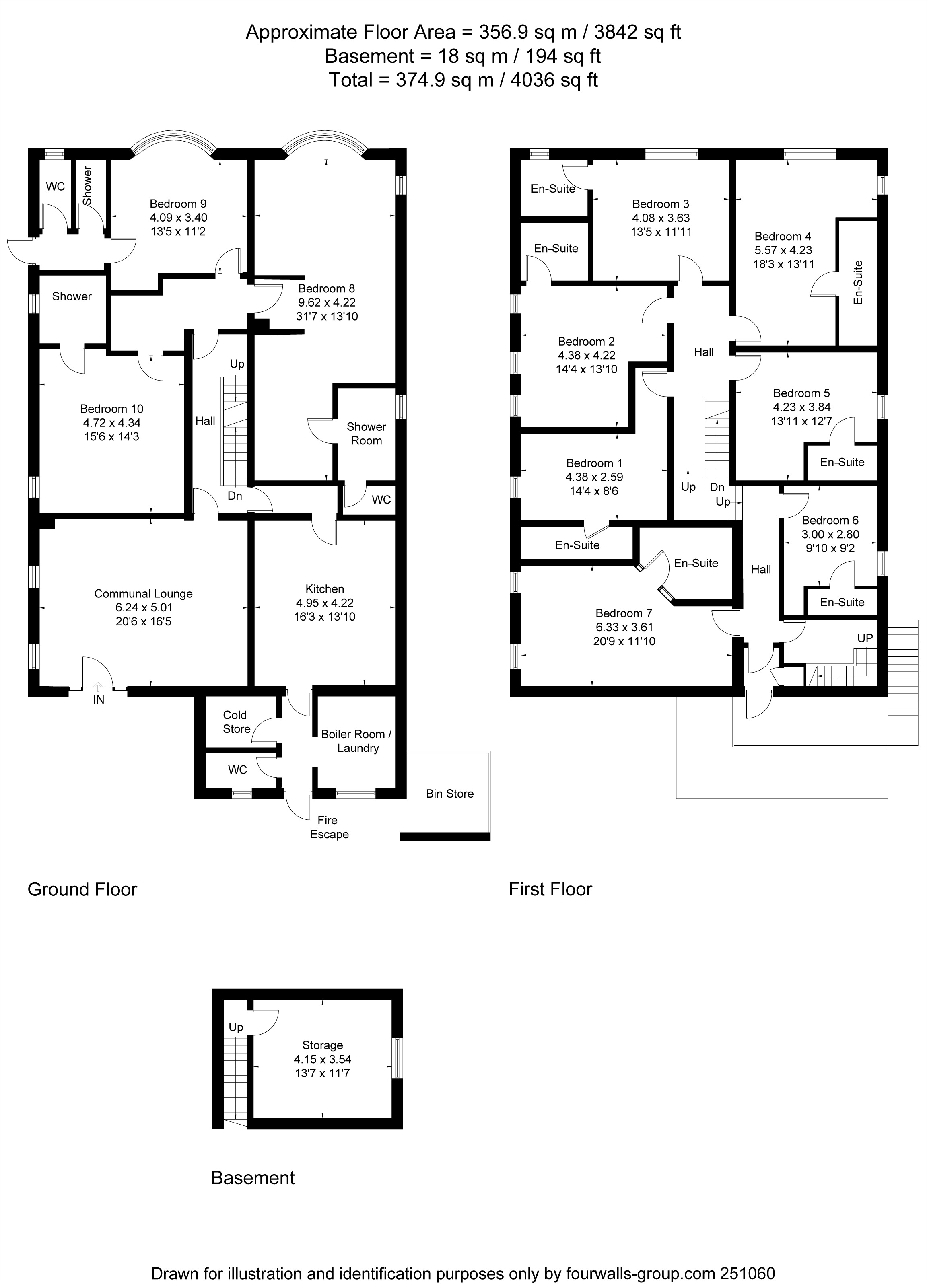
  • Floorplan

PICTURES AND VIDEOS

KEY FEATURES

  • Good Sized Bedroom
  • Bed with Storage and Fitted Wardrobes
  • En suite Shower Room
  • Communal Lounge, Kitchen, Separate WC & Laundry Room
  • Communal areas cleaned fortnightly
  • Garden
  • Private Parking

KEY INFORMATION

  • Deposit: Fixed £836.00
  • Council Tax Band: A
  • Local Authority: Waverley Borough Council

Description

UCA STUDENTS- An amazing opportunity for a student to rent a luxurious individual bedroom, with private ensuite shower room, in a private student only halls of residence (approximately 0.8 mile of the University of Creative Arts). Communal Living/Dining Room and Kitchen. Video Tour/ Virtual viewings available. The building has recently undergone extensive refurbishment (2020). Tenancy start date 21st July 2026

UCA Students- A good sized single bedroom (14'4 x 13'1) with En Suite Shower room, Communal Lounge, kitchen, Separate WC, Laundry, Cold Store. Garden and Parking.

Rooms within this student only building, which has recently undergone extensive refurbishment (2020) are extremely sought after. The property is located within walking distance of the university of The Creative Arts so to not miss out and be disappointed, please register your interest ASAP.

•Ideal for an individual UCA student to rent.
•All students need UK based Guarantors or use a Guarantor Company such as HousingHand or RentGuarantor
•Within a strictly no smoking building.
•Beds and cupboards provided in each bedroom.
•Tenants to Contribute to Communal Utility Bills
•Parking
•Video Tour/ Virtual viewings available

Location

The property is situated in the south of Farnham within walking distance (approximately 1 mile) of the University of Creative Arts in Farnham and conveniently for the town centre and Farnham railway station. Farnham is a historic former market town lying on the Surrey/ Hampshire border, widely recognised for its attractive architecture. The town offers extensive cultural and shopping facilities.

Farnham railway station provides direct access to London Waterloo in approximately one hour. The town also lies on the A31 connecting Guildford and the A3 to the east and Winchester to the west. The A331, (Blackwater Valley link road) provides dual-carriageway access to the M3 in the north.

SERVICES
All mains services are connected
Council Tax Band A (student exemption available from council on proof of student status).

Marketed by

Winkworth Farnham

Properties for rent in Farnham

Arrange a Viewing

Fill in the form below to arrange your property viewing.

This site is protected by reCAPTCHA and the Google Privacy Policy and Terms of Service apply.
6/14
Picture No. 09
Picture No. 18
Picture No. 11
Picture No. 13
Picture No. 10
Picture No. 2
Picture No. 12
Picture No. 14

Meet the Team

Our team are here to support and advise our customers when they need it most. We understand that buying, selling, letting or renting can be daunting and often emotionally meaningful. We are there, when it matters, to make the journey as stress-free as possible.

See all team members

Got a question about this property?

This site is protected by reCAPTCHA and the Google Privacy Policy and Terms of Service apply.

More Properties like this

Let Agreed

Ferns Mead, Farnham, Surrey, GU9

£1,015 per week (£4,400 per month)

Let Agreed

West Street, Farnham, Surrey, GU9

£808 per week (£3,500 per month)

Let Agreed

Dollis Drive, Farnham, Surrey, GU9

£692 per week (£3,000 per month)

Let Agreed

The Chantrys, Farnham, Surrey, GU9

£646 per week (£2,800 per month)

Let Agreed

The Chantrys, Farnham, Surrey, GU9

£646 per week (£2,800 per month)

Let Agreed

The Chantrys, Farnham, Surrey, GU9

£646 per week (£2,800 per month)

Online Valuations Aren’t Worth The Paper They’re Printed On.

When online valuations don’t give you the whole picture - try Winkworth’s expert service. Get a free property appraisal. Accurate valuations from our local property experts. No obligation to list with Winkworth. Choose a time convenient for you with our online booking system.

Fill in your details and someone will be in touch soon:

You have provisionally booked a valuation for . Please confirm your details below

We don't have date info available for this property, but if you fill in your details below, someone will be in touch to arrange a date soon

Please fill in the required fields below marked with *

This site is protected by reCAPTCHA and the Google Privacy Policy and Terms of Service apply.