Skip to main content

MyWinkworth

Picture No. 1
Picture No. 25
Picture No. 21
Picture No. 24
Picture No. 23
Picture No. 18
Picture No. 19
Picture No. 20
Picture No. 17
6/14

Ferns Mead, Farnham, Surrey, GU9

6 bedroom house in Farnham

£1,015 per week (£4,400 per month) Fees may apply

  • Bedrooms 6
  • Bathrooms 4
  • Reception rooms 1
  • Part-furnished
  • Floorplan

PICTURES AND VIDEOS

KEY FEATURES

  • Ideal for a group of 6 UCA students to rent as a whole.
  • All students need UK based Guarantors or will need to use a guarantor company such as HousingHand or RentGuarantor
  • Within a strictly no smoking building.
  • Beds and cupboards provided in each bedroom.
  • Tenants to pay Utility Bills
  • Parking
  • Video Tour/ Virtual viewings available

KEY INFORMATION

  • Deposit: Fixed £5,076.00
  • Council Tax Band: E
  • Local Authority: Waverley Borough Council

Description

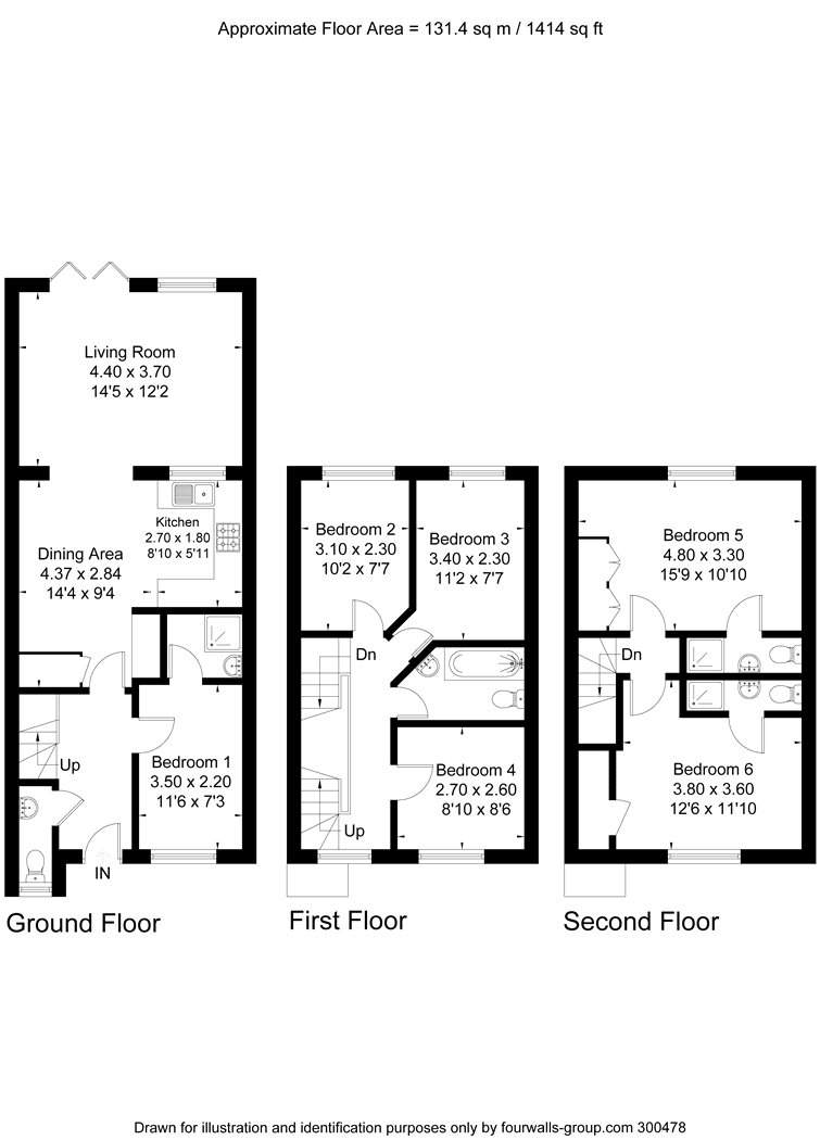
A beautifully presented 6 bedroom town house suitable for a group of 6 UCA student sharers. Off street parking and located in a central yet peaceful location only 0.5miles from campus (approx 10 min walk). Tenancy Start date 13th July 2026. EPC Rating C (72)

A fabulous 6 bedroom house close to UCA for a group of 6 students to rent together.

Ground Floor comprises Living Room, Kitchen/Dining Room, Guest WC, Laundry cupboard and Bedroom 1 with ensuite Shower Room.
To the first floor can be found 3 bedrooms and a Bathroom.
On the second floor there are two further bedrooms each with fitted wardrobes and ensuite Shower Rooms.

The Kitchen/ Dining room is beautifully presented and fitted with stylish wall and base units, an integrated dishwasher and an electric oven, hob, integrated microwave and grill.

Single beds and cupboard provided in each bedroom

OUTSIDE
The property has an off street parking area at the front. The garden lies to the rear and can be accessed either through the house or via a pedestrian gate at the back of the garden. It is screened by wooden fencing and trellising on three sides, providing a good degree of seclusion. A patio area for outside dining can be found to the rear.

Rooms and Accommodations

  • Entrance Hall
  • Cloakroom
  • Kitchen Dining Room
  • Living Room
  • Bedroom 1 with ensuite Shower Room
  • Bedroom 2
  • Bedroom 3
  • Bathroom
  • Bedroom 4
  • Bedroom 5 with ensuite Shower Room
  • Bedroom 6 with ensuite Shower Room
  • Garden
  • Off road parking

Location

The property is situated in a popular, modern residential development towards the south west fringes of the town centre, ideally situated for walking to UCA and to take advantage of the many local amenities. The setting is peaceful and the property enjoys pleasant views over the neighbouring meadows.

Farnham is an historic former market town lying on the Surrey/Hampshire border, widely recognised for its attractive architecture. The town offers extensive cultural, shopping and educational facilities and has a number of excellent restaurants, public houses and a wine bar. It also boasts a library and the Maltings Art Centre offers a wide range of activities including film screenings. Within the town is a train station providing direct access to London Waterloo in approximately one hour. The town also lies on the A31 connecting Guildford and the A3 to the east and Winchester to the west. The A331, (Blackwater Valley link road) provides dual-carriageway access to the M3 in the north.

SERVICES
Mains gas, electricity, drainage and water.
Council Tax Band E (student exemption may be obtained from council on proof of student status)

Marketed by

Winkworth Farnham

Properties for rent in Farnham

Arrange a Viewing

Fill in the form below to arrange your property viewing.

This site is protected by reCAPTCHA and the Google Privacy Policy and Terms of Service apply.
6/14
Picture No. 1
Picture No. 25
Picture No. 21
Picture No. 24
Picture No. 23
Picture No. 18
Picture No. 19
Picture No. 20
Picture No. 17

Meet the Team

Our team are here to support and advise our customers when they need it most. We understand that buying, selling, letting or renting can be daunting and often emotionally meaningful. We are there, when it matters, to make the journey as stress-free as possible.

See all team members

Got a question about this property?

This site is protected by reCAPTCHA and the Google Privacy Policy and Terms of Service apply.

More Properties like this

West Street, Farnham, Surrey, GU9

£808 per week (£3,500 per month)

The Chantrys, Farnham, Surrey, GU9

£646 per week (£2,800 per month)

Let Agreed

Tilford Street, Tilford, Farnham, Surrey, GU10

£462 per week (£2,000 per month)

Let Agreed

Tilford Street, Tilford, Surrey, GU10

£462 per week (£2,000 per month)

Firgrove Hill, Farnham, GU9

£346 per week (£1,500 per month)

Let Agreed

West Street, Farnham, Surrey, GU9

£277 per week (£1,200 per month)

Online Valuations Aren’t Worth The Paper They’re Printed On.

When online valuations don’t give you the whole picture - try Winkworth’s expert service. Get a free property appraisal. Accurate valuations from our local property experts. No obligation to list with Winkworth. Choose a time convenient for you with our online booking system.

Fill in your details and someone will be in touch soon:

You have provisionally booked a valuation for . Please confirm your details below

We don't have date info available for this property, but if you fill in your details below, someone will be in touch to arrange a date soon

Please fill in the required fields below marked with *

This site is protected by reCAPTCHA and the Google Privacy Policy and Terms of Service apply.