Skip to main content

MyWinkworth

Picture No. 17
Picture No. 16
Picture No. 05
Picture No. 04
Picture No. 07
Picture No. 13
Picture No. 14
Picture No. 06
Picture No. 02
6/14

Colville Mews, London, W11

3 bedroom house in London

£1,950 per week (£8,450 per month) Fees may apply

  • Bedrooms 3
  • Bathrooms 2
  • Reception rooms 1
  • Furnished
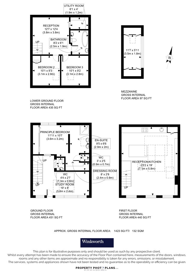
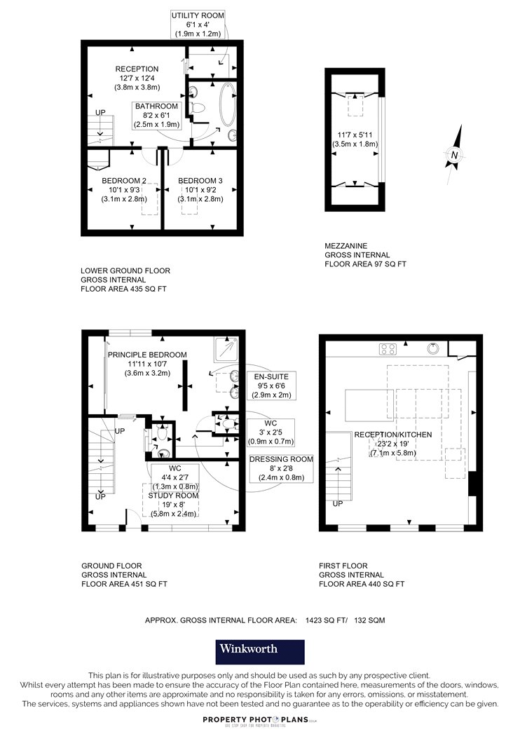
  • Dimensions 1450 sq ft
    134 sq m
  • Floorplan

PICTURES AND VIDEOS

KEY INFORMATION

  • Deposit: Fixed £11,700.00
  • Council Tax Band: F
  • Local Authority: Royal Borough Of Kensington & Chelsea

Description

A fantastic opportunity to rent this fabulous three storey mews house tucked away in one of the area’s most sought after locations in the heart of Notting Hill.

The property comprises own front door, hallway with Constantina bifold doors, guest cloakroom and door leading through to immaculate master bedroom with floor to ceiling built in storage and beautiful marbled en-suite bathroom with separate walk-in shower and bath, all finished to the highest of standards with walk-in wardrobe. Stairs then lead up into the top floor which opens up to a fantastically bright loft style living area with working fireplace, double height ceilings with an abundance of natural light, immaculate open plan fully fitted kitchen with double oven and fantastic study area located on the mezzanine level accessed by loft style ladder. The property offers two further double bedrooms quietly located in the lower ground level with air filtration system, spacious hallway, and separate utility room. The property is beautifully presented and furnished throughout and is offered furnished - Viewing highly recommended.
Shorter let by seperate negotiation.

Location

Colville Mews is an ideal Notting Hill location - a peaceful cobbled mews tucked in behind the most fashionable stretch of Westbourne Grove with many of Notting Hill's most fashionable boutiques and restaurants a short stroll away.

Marketed by

Winkworth Notting Hill

Properties for rent in Notting Hill

Arrange a Viewing

Fill in the form below to arrange your property viewing.

This site is protected by reCAPTCHA and the Google Privacy Policy and Terms of Service apply.
6/14
Picture No. 17
Picture No. 16
Picture No. 05
Picture No. 04
Picture No. 07
Picture No. 13
Picture No. 14
Picture No. 06
Picture No. 02

Meet the Team

The Winkworth Notting Hill office has had an excellent reputation built on over 30 years’ experience, making them one of the area's longest standing servants. They are a hard-working, diligent and eager to please bunch, who will at all times seek to secure the best deal for their client, whilst hoping to always be a pleasure to work with.

See all team members

Got a question about this property?

This site is protected by reCAPTCHA and the Google Privacy Policy and Terms of Service apply.

More Properties like this

New Instruction

Codrington Mews, London, W11

£3,500 per week (£15,167 per month)

Colville Mews, London, W11

£1,950 per week (£8,450 per month)

St. Lukes Mews, London, W11

£1,846 per week (£8,000 per month)

Online Valuations Aren’t Worth The Paper They’re Printed On.

When online valuations don’t give you the whole picture - try Winkworth’s expert service. Get a free property appraisal. Accurate valuations from our local property experts. No obligation to list with Winkworth. Choose a time convenient for you with our online booking system.

Fill in your details and someone will be in touch soon:

You have provisionally booked a valuation for . Please confirm your details below

We don't have date info available for this property, but if you fill in your details below, someone will be in touch to arrange a date soon

Please fill in the required fields below marked with *

This site is protected by reCAPTCHA and the Google Privacy Policy and Terms of Service apply.