New Instruction
Ambrose Way, Romsey, Hampshire, SO51
3 bedroom house in Romsey
£415 per week
- 3
- 2
- 2
- Unfurnished
PICTURES AND VIDEOS













KEY INFORMATION
- Deposit: Fixed £1,246.00
- Council Tax Band: D
- Local Authority: Test Valley Borough Council
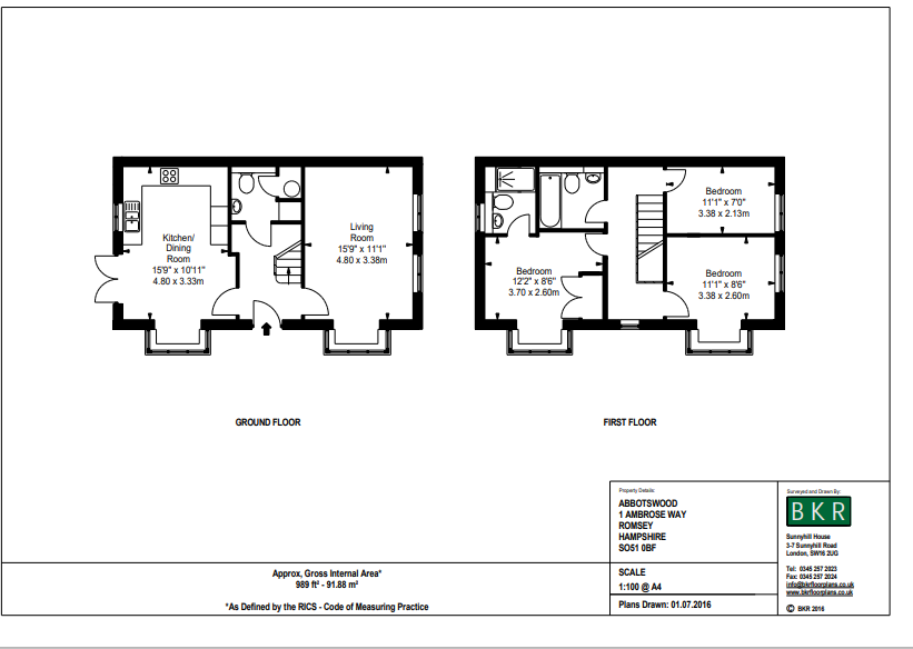
Description
The property is located within the Abbotswood development, just a short drive from Romsey town centre and its extensive amenities. Abbotswood itself has a local co-op, day care nursery, cafe and takeaways. The cathedral cities of Winchester and Salisbury are within easy commute. Along with the commercial centres of Southampton and Bournemouth, both with international airports. In addition there are good motorway and rail links to London and beyond.
This charming family home is offered unfurnished and the accommodation comprises hall way leading to open plan kitchen/dining room with doors to the rear garden. There is a well-proportioned sitting room and wc. To the first floor are the three bedrooms the principal benefitting from en-suite facilities and an additional family bathroom.
Outside to the rear is an enclosed garden and driveway parking with a single garage.
Gas central heating.
Marketed by
Winkworth Romsey
Properties for rent in RomseyArrange a Viewing
Fill in the form below to arrange your property viewing.
Meet the Team
We have extensive knowledge of the local market built up over many years and offer expertise on Land and New Homes, Sales and Lettings.
See all team members