Wisteria Drive, Verwood, BH31
3 bedroom house in Verwood
Guide Price £480,000 Freehold
- 3
- 1
- 2
PICTURES AND VIDEOS
 
                             
                             
                             
                             
                             
                             
                             
                             
                             
                             
                             
                             
                             
                             
                             
                            KEY FEATURES
- Detached
- Off Street Parking For Several Vehicles
- Double Garage With Electric Door & Utility Area
- South Facing Garden With Irrigation System
- Orangery With Bi-Folding Doors
- Quiet Residential Cul-de-Sac
- Immaculate Throughout
- Downstairs Cloakroom
- Walking Distance Of Potterne Park
KEY INFORMATION
- Tenure: Freehold
- Council Tax Band: D
Description
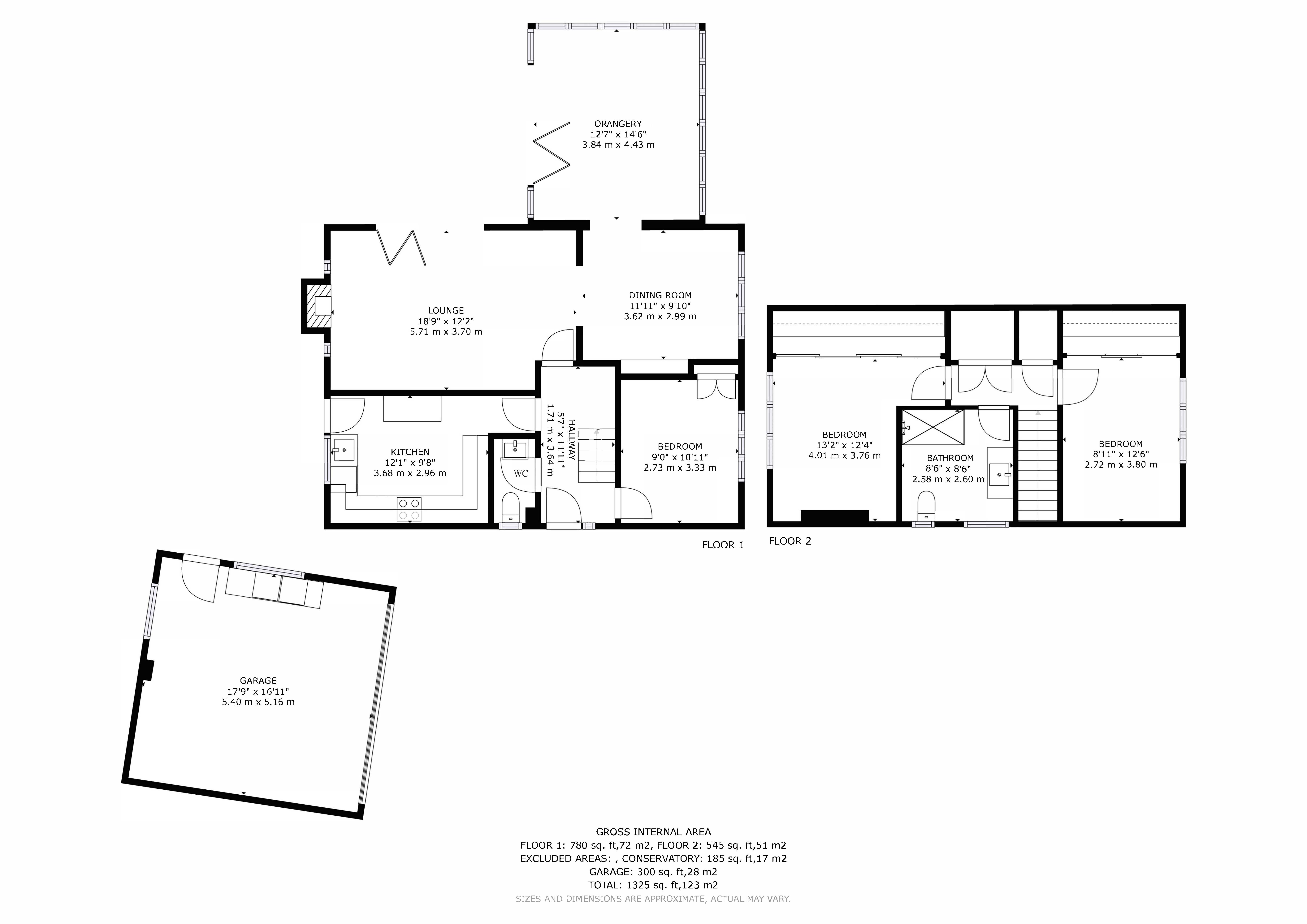
The property has a versatile layout which will suit a range of buyer’s needs, there is a smart fitted kitchen complete with solid oak cabinets and quartz worktop, a very spacious dual aspect living room with feature fireplace and a separate area for dining that has a range of built in storage and leads to a centrally heated orangery with bi-folding doors onto the garden – this is a lovely space to enjoy the garden all year round from! Continuing on the ground floor, there is a double bedroom with built in wardrobes, which could be used as a further reception room if desired and a cloakroom with hand basin and wc. Upstairs there are two double bedrooms both with built in wardrobes, excellent storage and a modern shower room with double walk in shower, wc and hand basin.
Externally, there is a double garage with electric door, a utility area and side door to the garden, there is off road parking to the front of the property for several vehicles and a low maintenance south facing rear garden with irrigation system. Further benefits include an area beyond the garden, ideal for a summer house/home office.
Location
Marketed by
Winkworth Ferndown
Properties for sale in FerndownArrange a Viewing
Fill in the form below to arrange your property viewing.
Mortgage Calculator
Fill in the details below to estimate your monthly repayments:
Approximate monthly repayment:
For more information, please contact Winkworth's mortgage partner, Trinity Financial, on +44 (0)20 7267 9399 and speak to the Trinity team.
Stamp Duty Calculator
Fill in the details below to estimate your stamp duty
The above calculator above is for general interest only and should not be relied upon
Meet the Team
As one of the most experienced teams in Ferndown our recently refurbished office is found in the heart of Ferndown. Please come and talk to us about your property requirements, and get to know the team from the Winkworth Estate Agents in Ferndown.
See all team members 
                                                 
                                                 
                                                 
                                                 
                                                