Skip to main content

MyWinkworth

Sold

Picture No. 01
Picture No. 10
Picture No. 09
Picture No. 05
Picture No. 06
Picture No. 07
Picture No. 08
Picture No. 02
Picture No. 03
Picture No. 04
Picture No. 11
6/14

Westwood Drive, Bourne, Lincolnshire, PE10

3 bedroom house in Bourne

£325,000 Freehold

  • Bedrooms 3
  • Bathrooms 1
  • Reception rooms 2
  • Floorplan

PICTURES AND VIDEOS

KEY FEATURES

  • Established three bedroom house
  • Huge potential to extend
  • Sought after location
  • Single garage
  • Established garden

KEY INFORMATION

  • Tenure: Freehold

Description

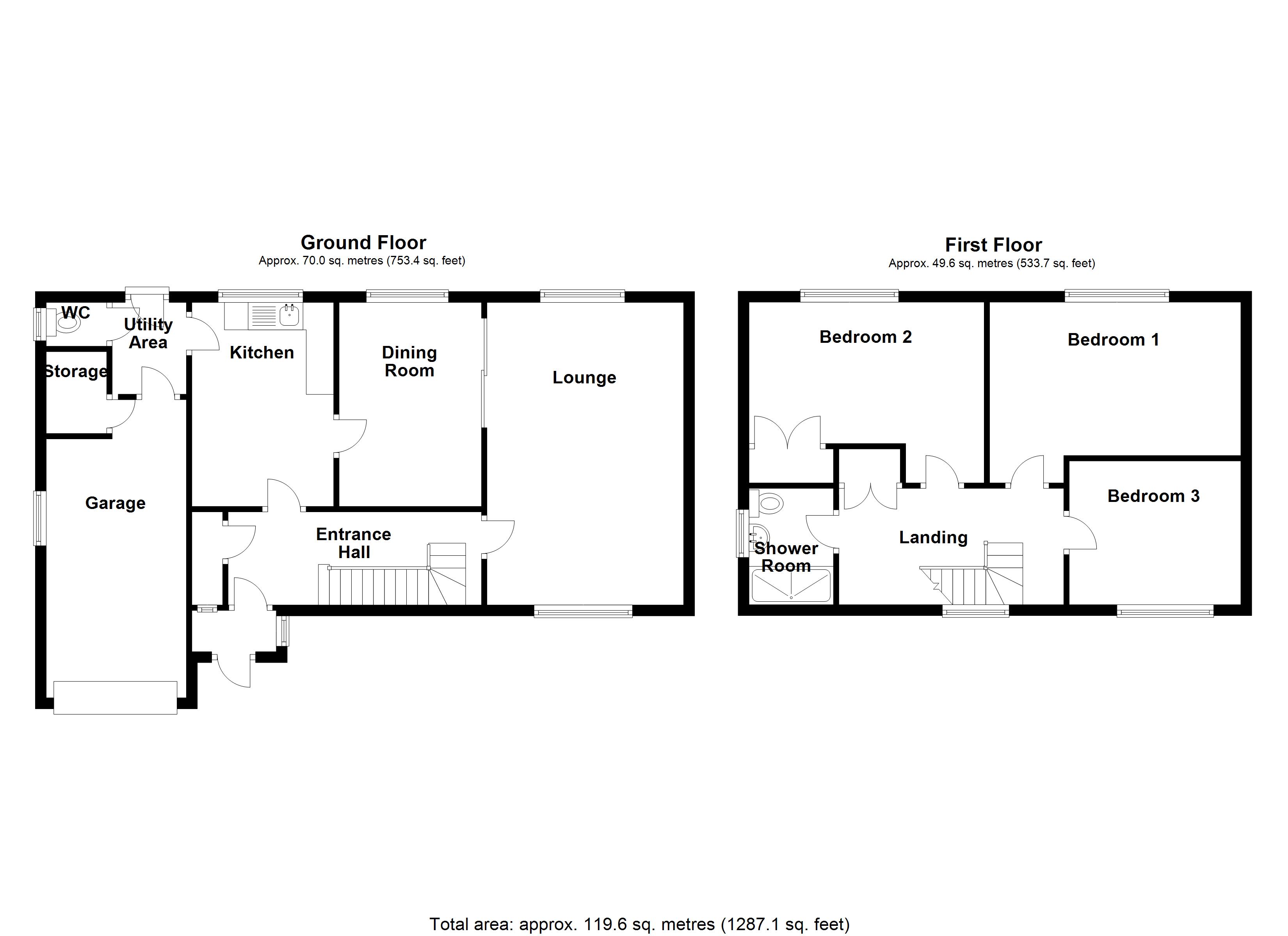
An established three bedroom detached home with fantastic plot and huge potential to improve and extend (stpp) The property is located on the sought after West side of Bourne giving easy access to the town centre and local schools and is offered for sale with no ongoing chain. The accommodation benefiting from, entrance hall, lounge, dining room, kitchen with utility and downstairs cloakroom off and three bedrooms and bathroom on the first floor. Outside there is a driveway providing ample off road parking leading to a single garage and to the rear a large established garden making this home a must view. Please call 01778 392807 for more information.

Rooms and Accommodations

  • Entrance Hall
  • With stairs leading to the first floor, built in storage, further under stairs storage cupboard and door to.
  • Lounge
  • 5.54m x 3.58m (18'2" x 11'9")
  • With double glazed windows overlooking the front and rear, radiator, power points and sliding doors to.
  • Dining Room
  • 3.78m x 2.60m (12'5" x 8'6")
  • With double glazed window to the rear, radiator, power points and door to.
  • Kitchen
  • 3.70m x 2.57m (12'2" x 8'5")
  • With basic fitted units comprising, sink with cupboard below, range of wall and base units, space for cooker, space and plumbing for washing machine, space for fridge, double glazed window to the rear and door to.
  • Utility Area
  • With door to the garage, door to the rear garden and door to.
  • Downstairs Cloakroom
  • With low level wc and frosted window.
  • First Floor Landing
  • With built in airing cupboard, access to the loft, feature window to the front and door to.
  • Bedroom One
  • 4.30m x 3.66m (14'1" x 12'0")
  • With double glazed window to the rear and power points, strorage heater.
  • Bedroom Two
  • 4.14m x 3.66m (13'7" x 12'0")
  • With double glazed window to the rear, storage heater, built in wardrobe and power points.
  • Bedroom Three
  • 3.28m x 2.60m (10'9" x 8'6")
  • With double glazed window to the front, storage heater and power points.
  • Shower Room
  • With walk in shower, low level wc, wash hand basin and frosted window.
  • Outside
  • To the front there is a walled front garden giving access to a paved and gravelled driveway providing ample off road parking and access to a SINGLE GARAGE (18'2" x 11'9") the garage has an up and over door, power and light. There is also a partition room (5'4" x 5'2") which used to be used as a Dark Room. The rear garden is a fantastic plot giving huge scope for an extension (stpp) which has a paved patio leading onto an established large lawn with mature shrubs and trees that really must be viewed to fully appreciate.
Introduction text for the mortgage calculator

Mortgage Calculator

Fill in the details below to estimate your monthly repayments:

Approximate monthly repayment:

For more information, please contact Winkworth's mortgage partner, Trinity Financial, on +44 (0)20 7267 9399 and speak to the Trinity team.

Stamp Duty Calculator

Fill in the details below to estimate your stamp duty

The above calculator above is for general interest only and should not be relied upon

6/14
Picture No. 01
Picture No. 10
Picture No. 09
Picture No. 05
Picture No. 06
Picture No. 07
Picture No. 08
Picture No. 02
Picture No. 03
Picture No. 04
Picture No. 11

Meet the Team

Our team are here to support and advise our customers when they need it most. We understand that buying, selling, letting or renting can be daunting and often emotionally meaningful. We are there, when it matters, to make the journey as stress-free as possible.

See all team members

Got a question about this property?

This site is protected by reCAPTCHA and the Google Privacy Policy and Terms of Service apply.

More Properties like this

Under Offer

Swallow Hill, Thurlby, Bourne, Lincolnshire, PE10

Offers in excess of £900,000 Freehold

North Road, Gedney Hill, Spalding, Lincolnshire, PE12

£695,000 Freehold

Under Offer

Clarks Close, Morton, Bourne, Lincolnshire, PE10

£695,000 Freehold

New Instruction

Swallow Hill, Thurlby, Bourne, Lincolnshire, PE10

£685,000 Freehold

High Street, Horbling, Sleaford, Lincolnshire, NG34

£675,000 Freehold

Donington Road, Horbling, Sleaford, NG34

£570,000 Freehold

Online Valuations Aren’t Worth The Paper They’re Printed On.

When online valuations don’t give you the whole picture - try Winkworth’s expert service. Get a free property appraisal. Accurate valuations from our local property experts. No obligation to list with Winkworth. Choose a time convenient for you with our online booking system.

Fill in your details and someone will be in touch soon:

You have provisionally booked a valuation for . Please confirm your details below

We don't have date info available for this property, but if you fill in your details below, someone will be in touch to arrange a date soon

Please fill in the required fields below marked with *

This site is protected by reCAPTCHA and the Google Privacy Policy and Terms of Service apply.