Skip to main content

MyWinkworth

Sold

Picture No. 02
Picture No. 05
Picture No. 03
Picture No. 08
Picture No. 01
Picture No. 06
Picture No. 04
Picture No. 10
Picture No. 09
Picture No. 11
Picture No. 07
Picture No. 13
6/14

West Fryerne, Parkside Road, Reading, RG30

2 bedroom maisonette in Parkside Road

Guide Price £235,000 Leasehold

  • Bedrooms 2
  • Bathrooms 1
  • Reception rooms 1
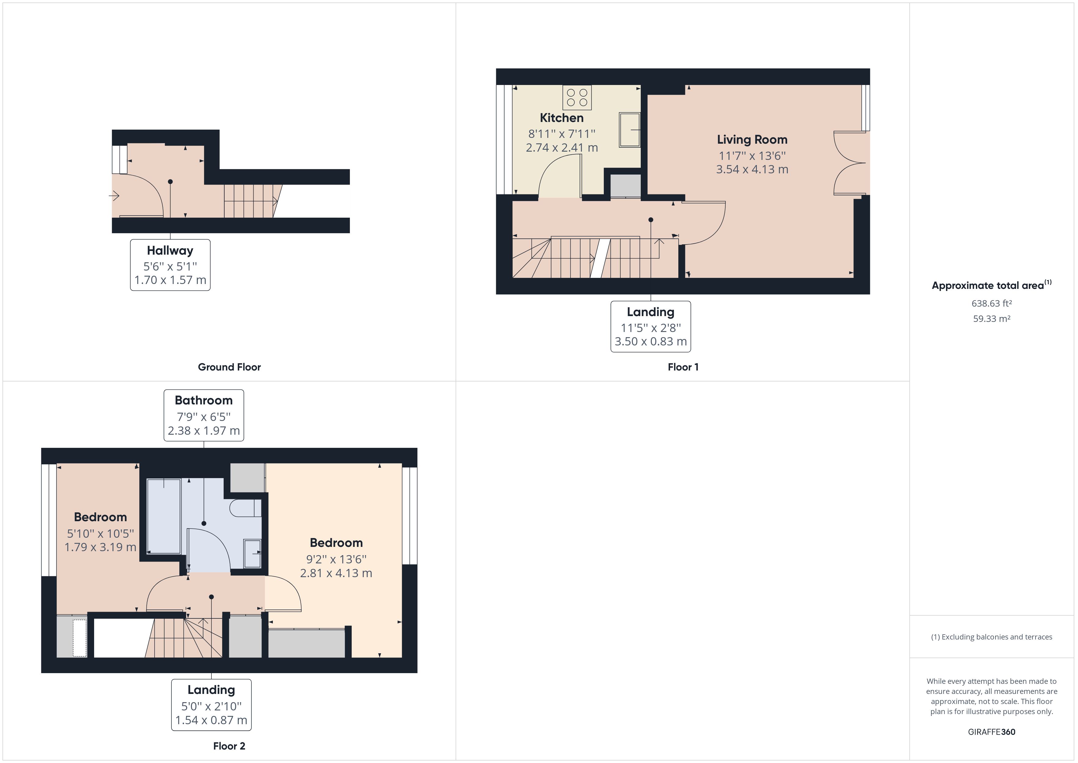
  • Floorplan

PICTURES AND VIDEOS

KEY FEATURES

  • Sought After Development
  • Ideal First Time Or Investment Purchase
  • Split Level Maisonette
  • Modern Kitchen
  • Two Bedrooms
  • Modern Bathroom
  • Service Charge & Ground Rent £1,200 pa
  • 971 Years Remaining On The Lease
  • Council Tax Band C

KEY INFORMATION

  • Tenure: Leasehold

Description

A superb two-bedroom split level maisonette offering good sized well-appointed accommodation and situated in this sought-after development, off of a popular tree lined road and within walking distance of Prospect Park, the town centre and the train station. From the ground floor there is a personal entrance door that leads up to the first-floor landing where there is a good-sized sitting/dining room with a Juliette balcony and a modern kitchen. Further stairs lead up to the second-floor landing where there are two good sized bedrooms, the master bedroom has a bank of built in wardrobes and a further storage cupboard to one corner, bedroom two has a built in a storage cupboard and are both complemented by a modern bathroom. The property further benefits from a long lease, gas central heating, double glazed windows, well-kept communal gardens and there is off road parking to the development and additional parking on Parkside Road. West Reading train station is within a 10/15 minute walk and Reading town centre is approximately a 25 minute walk. Reading train station has direct links to London Paddington in just over 20 minutes and is on the Elizabeth Line (Crossrail) linking Reading with the City of London and Canary Wharf. All in all a wonderful first time or an investment purchase, a viewing is highly recommended.

Location

Located off of Parkside Road which is a popular tree lined road, West Fryerne is a short walk to Prospect Park and Reading West train station. West Reading covers an area in between Reading Town Centre to the east, Tilehurst to the West and Southcote to its South. The three main roads leading into Reading; the Bath Road, Tilehurst Road and the Oxford Roads all run through West Reading, offering excellent transport links into the Town Centre and M4 via the A4 or A33. There are some great schools in the area such as Wilson Primary School & St Edward’s Prep School. The Oxford Road is a vibrant area with a diverse range of shops and restaurants. Transport links include Reading West train station with trains to Newbury and London and several bus routes. There is a range of local amenities including a large Tesco superstore, and some excellent outside spaces such as Prospect Park which is Reading's largest public park. Property in the area includes grand Victorian town houses, smaller terrace homes, and modern homes and apartments.
Introduction text for the mortgage calculator

Mortgage Calculator

Fill in the details below to estimate your monthly repayments:

Approximate monthly repayment:

For more information, please contact Winkworth's mortgage partner, Trinity Financial, on +44 (0)20 7267 9399 and speak to the Trinity team.

Stamp Duty Calculator

Fill in the details below to estimate your stamp duty

The above calculator above is for general interest only and should not be relied upon

6/14
Picture No. 02
Picture No. 05
Picture No. 03
Picture No. 08
Picture No. 01
Picture No. 06
Picture No. 04
Picture No. 10
Picture No. 09
Picture No. 11
Picture No. 07
Picture No. 13

Meet the Team

Located just 36 miles from Central London and 24 miles from Oxford, Reading's geographical placement is perfect for living and working or commuting. Michael and James are established professionals who have years of combined experience and local knowledge and can offer you a friendly approach and unparalleled service.

See all team members

Got a question about this property?

This site is protected by reCAPTCHA and the Google Privacy Policy and Terms of Service apply.

More Properties like this

Virtual Tour

New Instruction

Bath Road, Reading, Berkshire, RG1

Guide Price £300,000 Share of Freehold

Virtual Tour

Under Offer

Northumberland Avenue, Reading, United Kingdom, RG2

Offers in excess of £270,000 Leasehold

Online Valuations Aren’t Worth The Paper They’re Printed On.

When online valuations don’t give you the whole picture - try Winkworth’s expert service. Get a free property appraisal. Accurate valuations from our local property experts. No obligation to list with Winkworth. Choose a time convenient for you with our online booking system.

Fill in your details and someone will be in touch soon:

You have provisionally booked a valuation for . Please confirm your details below

We don't have date info available for this property, but if you fill in your details below, someone will be in touch to arrange a date soon

Please fill in the required fields below marked with *

This site is protected by reCAPTCHA and the Google Privacy Policy and Terms of Service apply.