Under Offer
Upwood Road, Lee, London, SE12
5 bedroom house
£1,375,000 Freehold
- 5
- 3
- 2
PICTURES AND VIDEOS




























KEY FEATURES
- five bedroom
- three bathroom
- extended
- large south facing garden
- off street parking
- close to Lee station
KEY INFORMATION
- Tenure: Freehold
- Council Tax Band: F
Description
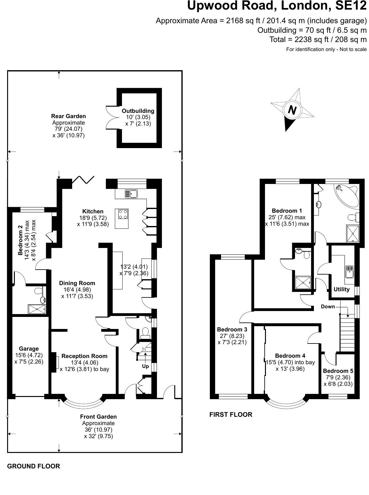
Spanning 2,168 sq. ft the property is in excellent condition throughout and briefly comprises; a large open plan through reception room which leads onto the kitchen with island and integrated appliances, there is also a ground floor bedroom with shower room in addition to a separate WC.
The first floor offers three further double bedrooms, the master benefits from an en suite shower and there is a handy fifth bedroom/study. Finally there is the main family bathroom and separate utility room.
Additional benifits include off street parking to the front for multiple cars, a single garage and a well maintained 79ft south facing garden.
This is a fantastic family home finished to a high specification and has to be viewed. Video can be seen at winkworth.co.uk
Located in one of SE12’s most sought-after residential pockets and just 415 metres from Lee station with commuters benefit from quick access into central London. The property enjoys close proximity to a number of excellent schools, including the Ofsted ‘Outstanding’ Brindishe Green Primary School, and Colfe’s School, which is behind the house. Green spaces are a real highlight in this location. The much-loved Manor House Gardens is just around the corner, boasting a duck pond, tennis courts, a children’s playground and a popular Saturday farmers market. Also nearby are Northbrook Park, Sutcliffe Park, and the open heathland of Blackheath Common. A variety of local amenities can be found in both Lee and Hither Green, including a Sainsbury’s Local, artisan bakeries, cafés, restaurants, independent delis, cocktail bars, florists and craft shops. Highlights include La Delice, Found Hope Store, Sapore Vero, Park Fever, and welcoming gastropubs such as The Crown and The Lord Northbrook. Historic Blackheath Village and Greenwich Park are both within easy reach, offering a further array of boutique shops, restaurants, and scenic walks.
Mortgage Calculator
Fill in the details below to estimate your monthly repayments:
Approximate monthly repayment:
For more information, please contact Winkworth's mortgage partner, Trinity Financial, on +44 (0)20 7267 9399 and speak to the Trinity team.
Stamp Duty Calculator
Fill in the details below to estimate your stamp duty
The above calculator above is for general interest only and should not be relied upon
Meet the Team
As one of the oldest estate agents in Blackheath, ranked no 1 for both sales and lettings, our local knowledge and expertise is second to none. Our recently refurbished flagship office is found in the heart of the Village, directly opposite Blackheath Station, where you can call in for advice seven days a week.
See all team members