Skip to main content

MyWinkworth

Sold

External
Reception Room 1
Kitchen
Kitchen
Reception Room 2
Reception Room 3
Reception Room 2
Reception Room 3
Reception Room 3
Reception Room 1
Bedroom 1
Bedroom 1
Bedroom 2
Bedroom 3
Bedroom 4
Bedroom 3
Shower Room
Rear Garden
Rear Garden
Rear Garden
6/14

Underhill Road, East Dulwich, London, SE22

5 bedroom house

£1,400,000 Freehold

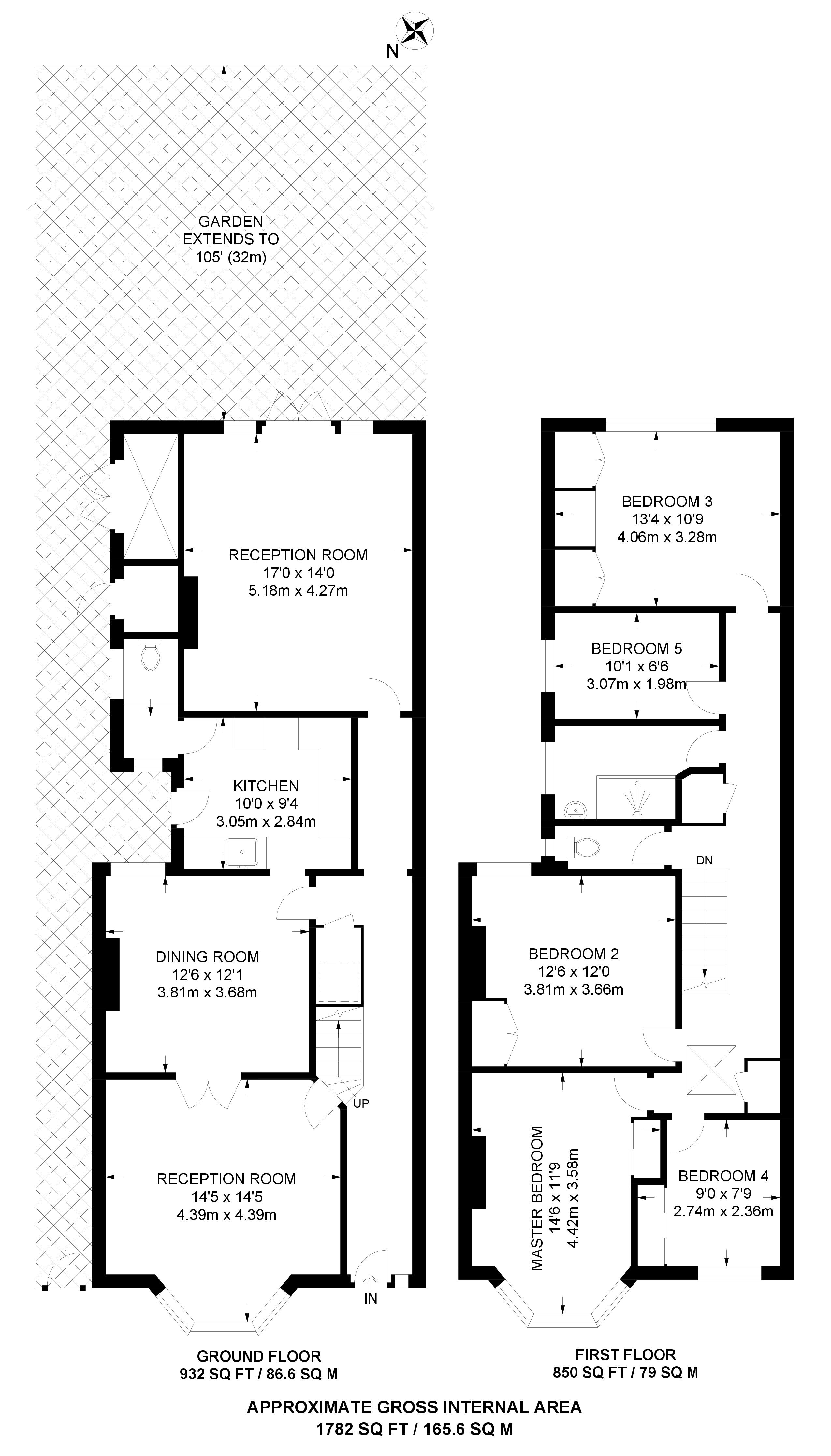
  • Bedrooms 5
  • Bathrooms 1
  • Reception rooms 3
  • Floorplan

PICTURES AND VIDEOS

KEY FEATURES

  • Five Bedrooms
  • Three Reception Rooms
  • Large Modern Kitchen
  • Shower Room with Separate WC and Downstairs WC.
  • Stunning Front and Back Garden
  • Potential To Extend (STPP)
  • Fantastic Location
  • Chain Free

KEY INFORMATION

  • Tenure: Freehold
  • Council Tax Band: E
  • Local Authority: Southwark Council

Description

An exceptional and rarely available semi-detached, Victorian villa situated in a wonderful location in SE22.

*EXCHANGED* This much loved family home is offered to the market chain free. The property comprises on the ground floor a stunning front garden with driveway, two spacious receptions, a dining room, kitchen and downstairs WC. The meticulously managed 105 foot garden to rear is every families dream, bustling with mature hedges, bushes, flower beds and impressive lawn. The ground floor boasts the potential to be extended to the rear STPP.

The first floor comprises five bedrooms, three doubles and two singles., a family bathroom and separate WC. There is potential to extend into the loft STPP.

The location offers fantastic access to Dulwich Village, Dulwich Park and Lordship Lane. Transport links are provided via Forest Hill for the East London line, West Dulwich station for links to Victoria or a short bus to East Dulwich for direct links to London Bridge. This is truly a rare opportunity to purchase a Victorian home in this style and condition, early viewings are highly advised.
Introduction text for the mortgage calculator

Mortgage Calculator

Fill in the details below to estimate your monthly repayments:

Approximate monthly repayment:

For more information, please contact Winkworth's mortgage partner, Trinity Financial, on +44 (0)20 7267 9399 and speak to the Trinity team.

Stamp Duty Calculator

Fill in the details below to estimate your stamp duty

The above calculator above is for general interest only and should not be relied upon

6/14
External
Reception Room 1
Kitchen
Kitchen
Reception Room 2
Reception Room 3
Reception Room 2
Reception Room 3
Reception Room 3
Reception Room 1
Bedroom 1
Bedroom 1
Bedroom 2
Bedroom 3
Bedroom 4
Bedroom 3
Shower Room
Rear Garden
Rear Garden
Rear Garden

Meet the Team

Our team at Winkworth Dulwich Estate Agents are here to support and advise our customers when they need it most. We understand that buying, selling, letting or renting can be daunting and often emotionally meaningful. We are there, when it matters, to make the journey as stress-free as possible.

See all team members

Got a question about this property?

This site is protected by reCAPTCHA and the Google Privacy Policy and Terms of Service apply.

More Properties like this

Video Tour

Under Offer

Crystal Palace Road, East Dulwich, London, SE22

Offers in excess of £2,000,000 Freehold

Under Offer

Crystal Palace Road, East Dulwich, London, SE22

£2,000,000 Freehold

Video Tour

Under Offer

Overhill Road, East Dulwich, London, SE22

£2,000,000 Freehold

Under Offer

Friern Road, East Dulwich, London, SE22

Offers in excess of £1,800,000 Freehold

Under Offer

Ondine Road, Peckham Rye, London, SE15

Offers in excess of £1,800,000 Freehold

Under Offer

Bellenden Road, Peckham Rye, London, SE15

Offers in excess of £1,800,000 Freehold

Online Valuations Aren’t Worth The Paper They’re Printed On.

When online valuations don’t give you the whole picture - try Winkworth’s expert service. Get a free property appraisal. Accurate valuations from our local property experts. No obligation to list with Winkworth. Choose a time convenient for you with our online booking system.

Fill in your details and someone will be in touch soon:

You have provisionally booked a valuation for . Please confirm your details below

We don't have date info available for this property, but if you fill in your details below, someone will be in touch to arrange a date soon

Please fill in the required fields below marked with *

This site is protected by reCAPTCHA and the Google Privacy Policy and Terms of Service apply.