Skip to main content

MyWinkworth

New Instruction

Picture No. 10
Picture No. 11
Picture No. 12
Picture No. 13
Picture No. 14
Picture No. 15
Picture No. 16
Picture No. 17
6/14

Tregarvon Road, London, SW11

2 bedroom flat/apartment

£800,000 Leasehold

  • Bedrooms 2
  • Bathrooms 1
  • Reception rooms 1
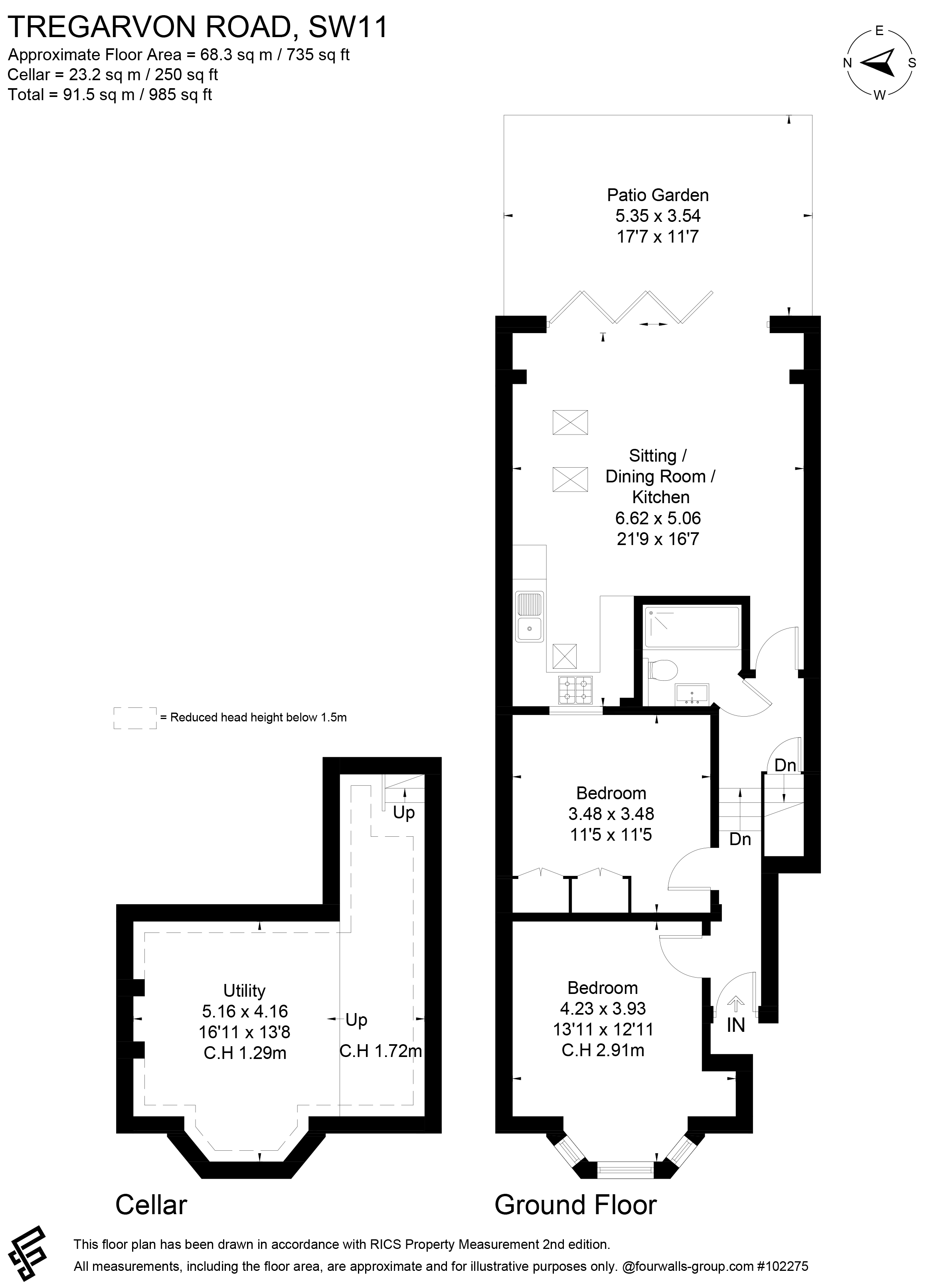
  • Dimensions 985 sq ft
    91 sq m
  • Floorplan

PICTURES AND VIDEOS

KEY FEATURES

  • GARDEN FLAT
  • CLAPHAM COMMON NORTHSIDE
  • ONE DOUBLE BEDROOM
  • PLANNING PERMISSION TO
  • EXTEND TO TWO BEDROOMS
  • CELLAR

KEY INFORMATION

  • Tenure: Leasehold
  • Lease Length: 80 yrs left

Description

A beautifully presented two bedroom ground floor flat on Tregarvon Road SW11. The property features a bay fronted principal bedroom, a contemporary open plan sitting dining room and kitchen with skylights and full width folding doors to a private patio garden, plus a useful basement utility room and cellar. The property is offered with an 80 year lease. The Leasehold and Freehold Reform Act 2024 strengthens leaseholder rights and may make it easier and less costly for a qualifying buyer to obtain a longer lease, although a statutory application and payment of any premium will still be required.

A superbly presented two bedroom ground floor flat in SW11, arranged over the ground floor with a generous basement. The accommodation is bright and contemporary throughout and offers excellent entertaining space with a seamless flow from kitchen to sitting and dining area.

The open plan sitting dining room and kitchen is the heart of the home. Skylights and recessed lighting flood the space with natural light and the full width folding doors open onto a private patio garden, creating an easy indoor outdoor living experience. The kitchen is finished with sleek white units, integrated appliances and clean work surfaces.

The principal bedroom is bay fronted and offers a calm and spacious bedroom retreat. There is a second double bedroom suitable as a guest room or home office. The bathroom is modern and fitted with quality tiling and a walk in shower.

The basement provides a large utility area and cellar storage with scope for a variety of uses subject to any necessary consents. This additional space is a rare and practical bonus for a flat of this type.

Tregarvon Road is a popular residential road in SW11, well placed for local shops, cafes and excellent transport links including Clapham Junction. The property is offered with an 80 year lease. The Leasehold and Freehold Reform Act 2024 strengthens leaseholder rights and may make it easier and less costly for a qualifying buyer to obtain a longer lease, although a statutory application and payment of any premium will still be required. Buyers are advised to seek legal advice for certainty.

Marketed by

Winkworth Clapham

Properties for sale in Clapham

Arrange a Viewing

Fill in the form below to arrange your property viewing.

This site is protected by reCAPTCHA and the Google Privacy Policy and Terms of Service apply.
Introduction text for the mortgage calculator

Mortgage Calculator

Fill in the details below to estimate your monthly repayments:

Approximate monthly repayment:

For more information, please contact Winkworth's mortgage partner, Trinity Financial, on +44 (0)20 7267 9399 and speak to the Trinity team.

Stamp Duty Calculator

Fill in the details below to estimate your stamp duty

The above calculator above is for general interest only and should not be relied upon

6/14
Picture No. 10
Picture No. 11
Picture No. 12
Picture No. 13
Picture No. 14
Picture No. 15
Picture No. 16
Picture No. 17

Meet the Team

Our team at Winkworth Clapham Estate Agents are here to support and advise our customers when they need it most. We understand that buying, selling, letting or renting can be daunting and often emotionally meaningful. We are there, when it matters, to make the journey as stress-free as possible.

See all team members

Got a question about this property?

This site is protected by reCAPTCHA and the Google Privacy Policy and Terms of Service apply.

More Properties like this

Porteus Place, London, SW4

£1,000,000 Leasehold

Brassey Square, London, SW11

£800,000 Leasehold

New Instruction

Tregarvon Road, London, SW11

£800,000 Leasehold

Venn Street, London, UK, SW4

£750,000 Share of Freehold

Cato Road, London, SW4

£750,000 Share of Freehold

Elmhurst Street, London, UK, SW4

£700,000 Share of Freehold

Online Valuations Aren’t Worth The Paper They’re Printed On.

When online valuations don’t give you the whole picture - try Winkworth’s expert service. Get a free property appraisal. Accurate valuations from our local property experts. No obligation to list with Winkworth. Choose a time convenient for you with our online booking system.

Fill in your details and someone will be in touch soon:

You have provisionally booked a valuation for . Please confirm your details below

We don't have date info available for this property, but if you fill in your details below, someone will be in touch to arrange a date soon

Please fill in the required fields below marked with *

This site is protected by reCAPTCHA and the Google Privacy Policy and Terms of Service apply.