New Instruction
The Street, Bishop's Cannings, Devizes, SN10
3 bedroom house in Bishop's Cannings
£650,000 Freehold
- 3
- 1
- 2
-
1637 sq ft
152 sq m -
PICTURES AND VIDEOS

































KEY INFORMATION
- Tenure: Freehold
- Council Tax Band: F
- Local Authority: Wiltshire Council
Description
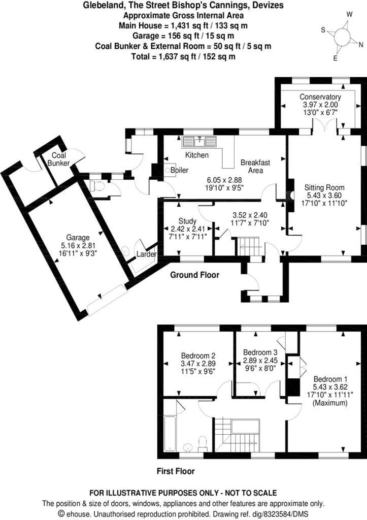
Nestled in a quiet street in the heart of Bishops Cannings this spacious 1960s family home offers generous proportions, large picture windows, flexible living areas, and a welcoming sense of character. With three good sized bedrooms, two reception rooms, a spacious kitchen/dining area and a very large rear garden, there’s plenty of space for growing families to live, play, and relax.
Accessed via a driveway with large front garden. As you enter the spacious hallway the accommodation comprises living room with open fireplace, study, conservatory, open plan kitchen/dining, utility and cloakroom. Upstairs are three bedrooms and a family bathroom.
Spread across .64 of an acre plot, this property boasts sweeping lawns, mature trees, and the flexibility for gardens, workshop, or extension (subject to planning permission). Perfect for families or those craving privacy yet still within easy reach of local amenities.
Located within minutes of the popular primary school, lovely walks along the canal, and transport links in nearby Pewsey just 10 miles away, this is a rare opportunity to secure a home with both character and convenience. Whether you're looking to move straight in or modernise over time, this house is ready to grow with your family.
At a Glance:
• Detached house in a very large plot
• Potential to double the footprint subject to planning consents
• Kitchen/Dining Room
• Utility
• Cloakroom
• Living Room
• Conservatory
• Study
• Three Bedrooms
• Family Bathroom
• Driveway parking
• Exceptionally large gardens
• Garage
• Store
Services: Mains Water, Private Drainage, Electric and Oil central heating.
EV Charger
EPC:E
Council Tax:F
https://www.ofcom.org.uk/phones-and-broadband/coverage-and-speeds/ofcom-checker
Utilities
- Electricity Supply: Mains Supply
- Water Supply: Mains Supply
- Sewerage: Private Supply
- Heating: Oil
Rights & Restrictions
- Listed Property: No
- Restrictions: No
- Easements, servitudes or wayleaves: No
- Public right of way: No
Risks
- Flood Risk: There has not been flooding in the last 5 years
- Flood Defence: No
Location
Marketed by
Winkworth Marlborough
Properties for sale in MarlboroughArrange a Viewing
Fill in the form below to arrange your property viewing.
Mortgage Calculator
Fill in the details below to estimate your monthly repayments:
Approximate monthly repayment:
For more information, please contact Winkworth's mortgage partner, Trinity Financial, on +44 (0)20 7267 9399 and speak to the Trinity team.
Stamp Duty Calculator
Fill in the details below to estimate your stamp duty
The above calculator above is for general interest only and should not be relied upon
Meet the Team
Our team are here to support and advise our customers when they need it most. We understand that buying, selling, letting or renting can be daunting and often emotionally meaningful. We are there, when it matters, to make the journey as stress-free as possible.
See all team members