The Lane, Blackheath, London, SE3
3 bedroom house
Guide Price £700,000 Freehold
- 3
- 1
- 1
PICTURES AND VIDEOS






















KEY FEATURES
- sought after Span house
- three bedrooms
- end of terrace
- south facing garden
- prestigious location
- Cator Estate
- chain free
KEY INFORMATION
- Tenure: Freehold
- Council Tax Band: E
Description
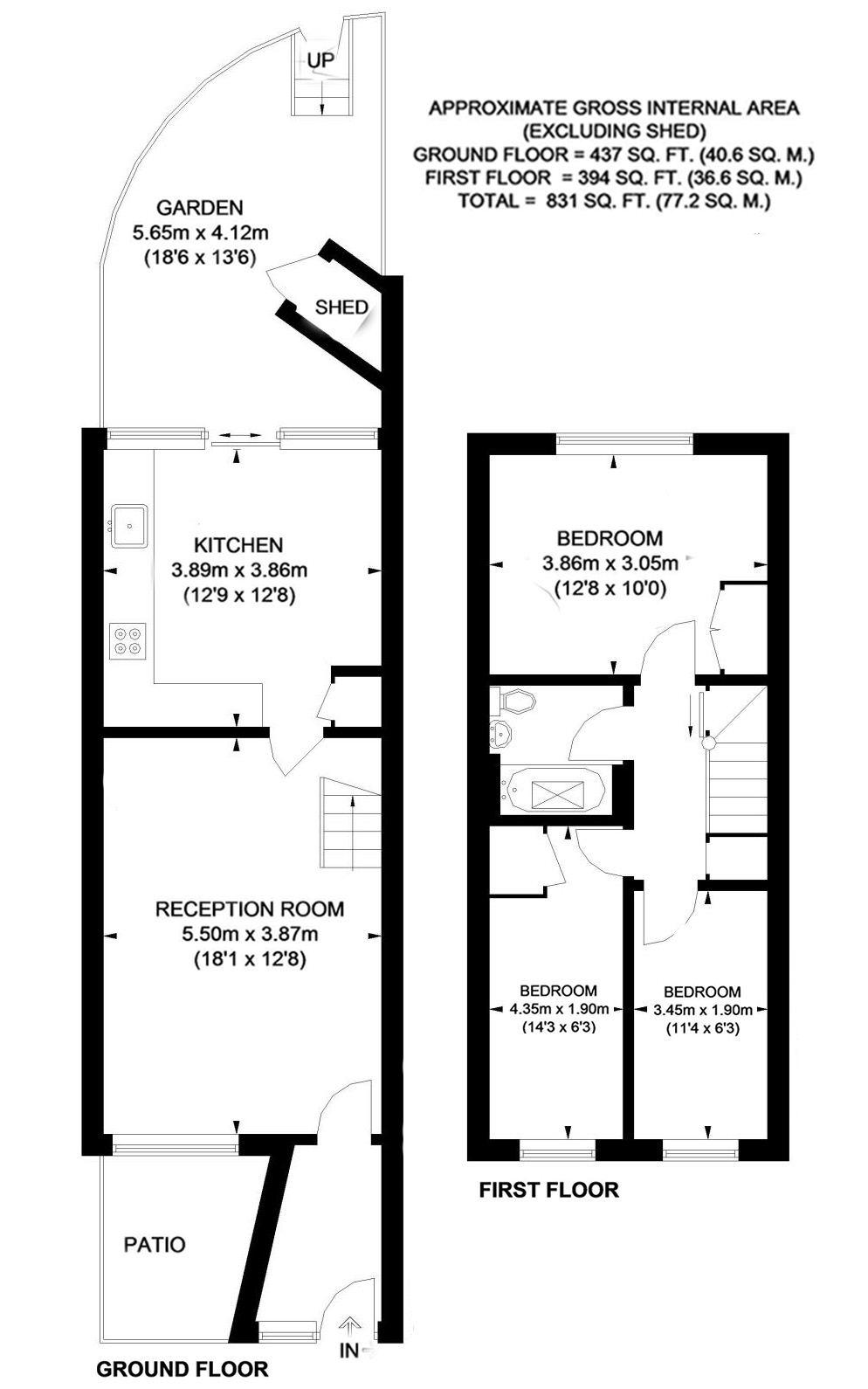
The accommodation comprises an entrance porch leading to a huge 18’1 x reception room with parquet flooring and a large separate kitchen to the rear. Upstairs is a generous 12’8 x 10’0 master bedroom with built in wardrobe, two further bedrooms, modern bathroom with vaulted ceiling and storage space above the vaulted landing ceiling. To the rear is a south facing courtyard garden with shed rear access. The property is in good decorative order although still offers scope to enhance.
Eric Lyon's Span developments are all about space and light and blurring the edges between outside and indoor space. Lyons paid great attention to the surrounding landscape. There are a number of communal spaces throughout the Lane, where residents hold an annual party and where children can safely play in this quiet cul-de-sac.
This is a wonderful home and set within this highly sought after development and your immediate viewing is essential. There is also no chain. Video tour can be seen at Winkworth.co.uk
The Lane is a highly desirable location just off Blackheath Park, the flagship road of the private Cator Estate. The property is located just 0.47 miles from Blackheath Village with its array of bars, restaurants, boutique shops, farmers market and mainline station. The fabulous Royal Greenwich Park is just 0.75 miles with Greenwich town centre beyond. Greenwich maintains a quaint rural village feel and is steeped in history with the old Royal Naval Hospital, the Royal Observatory, the National Maritime Museum, and the spectacularly restored Cutty Sark.Greenwich's covered market is one of London’s best and attracts people from all over the capital.
As well as good local primary and secondary state schools, there are several highly sought-after independent schools including; Blackheath Preparatory School, The Pointer School, Heath House Preparatory School, Blackheath High Junior School, Blackheath High Seniors School, Colfes (1.4 miles) and Eltham College (2.4 miles).
There are fantastic transport links with Blackheath Station giving access to London Bridge, Charing Cross and Victoria amongst others with access to the DLR, London Overground, bus, riverboat, foot tunnel and cable car all within the area. The area is minutes from Canary Wharf, the City and central London; Just one of the reasons why it's increasingly popular with young professionals and commuters. The O2 is also close by.
Communal Charge: £1,920 pa. There is a mandatory Lane Residents Society fee of £1,920 per year, paid quarterly.
Local Authority: Greenwich
Tax Band: E
N.B. These details have been provided by the vendor. Any interested party should have these checked by a solicitor as part of the purchase process.
Marketed by
Winkworth Blackheath
Properties for sale in BlackheathArrange a Viewing
Fill in the form below to arrange your property viewing.
Mortgage Calculator
Fill in the details below to estimate your monthly repayments:
Approximate monthly repayment:
For more information, please contact Winkworth's mortgage partner, Trinity Financial, on +44 (0)20 7267 9399 and speak to the Trinity team.
Stamp Duty Calculator
Fill in the details below to estimate your stamp duty
The above calculator above is for general interest only and should not be relied upon
Meet the Team
As one of the oldest estate agents in Blackheath, ranked no 1 for both sales and lettings, our local knowledge and expertise is second to none. Our recently refurbished flagship office is found in the heart of the Village, directly opposite Blackheath Station, where you can call in for advice seven days a week.
See all team members