Under Offer
The Hall, Foxes Dale, Blackheath, London, SE3
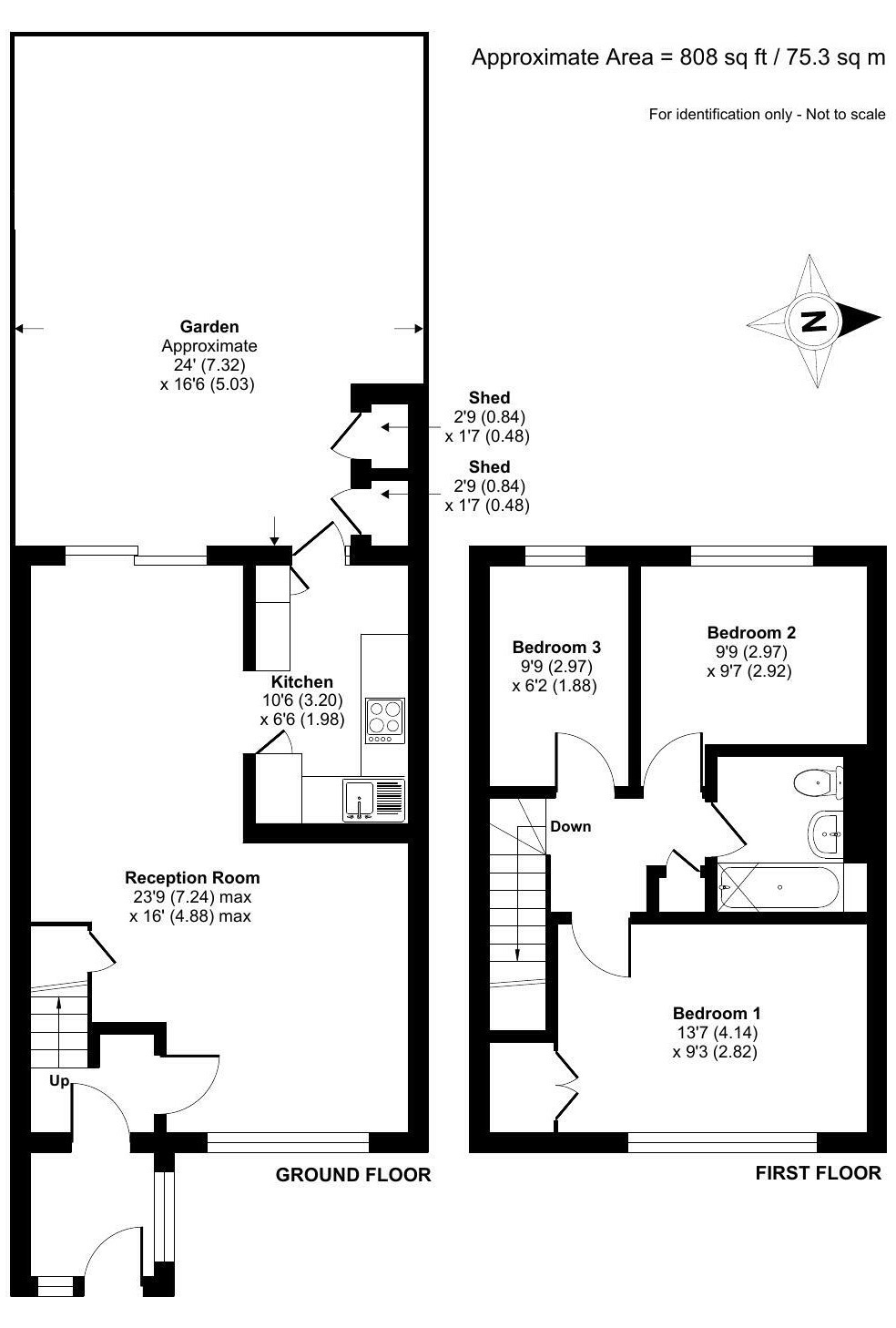
3 bedroom house in Foxes Dale
£750,000 Freehold
- 3
- 1
- 1
PICTURES AND VIDEOS















KEY FEATURES
- popular Span house
- three bedrooms
- chain free
- Cator Estate
- large reception room
- garage en bloc
KEY INFORMATION
- Tenure: Freehold
Description
The accommodation briefly comprising; an entrance porch leading to a superb open plan L-shaped reception room leading to a modern kitchen. Upstairs are three bedrooms including a large master with built in wardrobes and a modern family bathroom with feature vaulted ceiling. To the rear is a 25ft west facing garden with artificial lawn, patio and sheds. The property is in good decorative order with wood flooring, gas fired central heating and double glazed windows.
This is a lovely home which is a blank canvass with potential to extend (STPP) and is sold chain free. Viewing is highly recommended and video tour can be seen at winkworth.co.uk
The Hall is a highly sought after Span built development designed by Eric Lyons and set just of Foxes Dale within the part of the prestigious Cator Estate. The house is just ½ mile from Blackheath Village with its array of boutique shops, farmers market, restaurants, bars and station. The fabulous Royal Greenwich Park is just 1.05 miles with Greenwich town centre beyond. Greenwich maintains a quaint rural village feel and is steeped in history with the old Royal Naval Hospital, the Royal Observatory, the National Maritime Museum, and the spectacularly restored Cutty Sark, the last of the great tea clippers. Greenwich's covered market is one of London’s best and attracts people from all over the capital.
There are fantastic transport links with Blackheath Station giving access to London Bridge, Charing Cross and Victoria amongst others with access to the DLR, bus, riverboat, foot tunnel and cable car all within the area. The area is minutes from Canary Wharf, the City and central London; Just one of the reasons why it's increasingly popular with young professionals and commuters. The O2 is also close by.
The popular Brooklands, (0.34 miles) and John Ball Primary Schools, (0.49 miles) are both close by as are several highly sought-after Independent Schools including; Blackheath Preparatory School, The Pointer School, Heath House Preparatory School, Blackheath High Junior School, Blackheath High Seniors School, Colfes (1.1 miles) and Eltham College (2.2miles).
Mortgage Calculator
Fill in the details below to estimate your monthly repayments:
Approximate monthly repayment:
For more information, please contact Winkworth's mortgage partner, Trinity Financial, on +44 (0)20 7267 9399 and speak to the Trinity team.
Stamp Duty Calculator
Fill in the details below to estimate your stamp duty
The above calculator above is for general interest only and should not be relied upon
Meet the Team
As one of the oldest estate agents in Blackheath, ranked no 1 for both sales and lettings, our local knowledge and expertise is second to none. Our recently refurbished flagship office is found in the heart of the Village, directly opposite Blackheath Station, where you can call in for advice seven days a week.
See all team members