Skip to main content

MyWinkworth

Sold

Picture No. 13
Picture No. 25
Picture No. 29
Picture No. 15
Picture No. 28
Picture No. 16
Picture No. 21
Picture No. 19
Picture No. 20
Picture No. 17
Picture No. 18
Picture No. 24
Picture No. 26
Picture No. 22
Picture No. 23
Picture No. 14
Picture No. 27
6/14

The Gardeners, Surley Row, Emmer Green, Reading, RG4

3 bedroom house in Surley Row

£575,000 Freehold

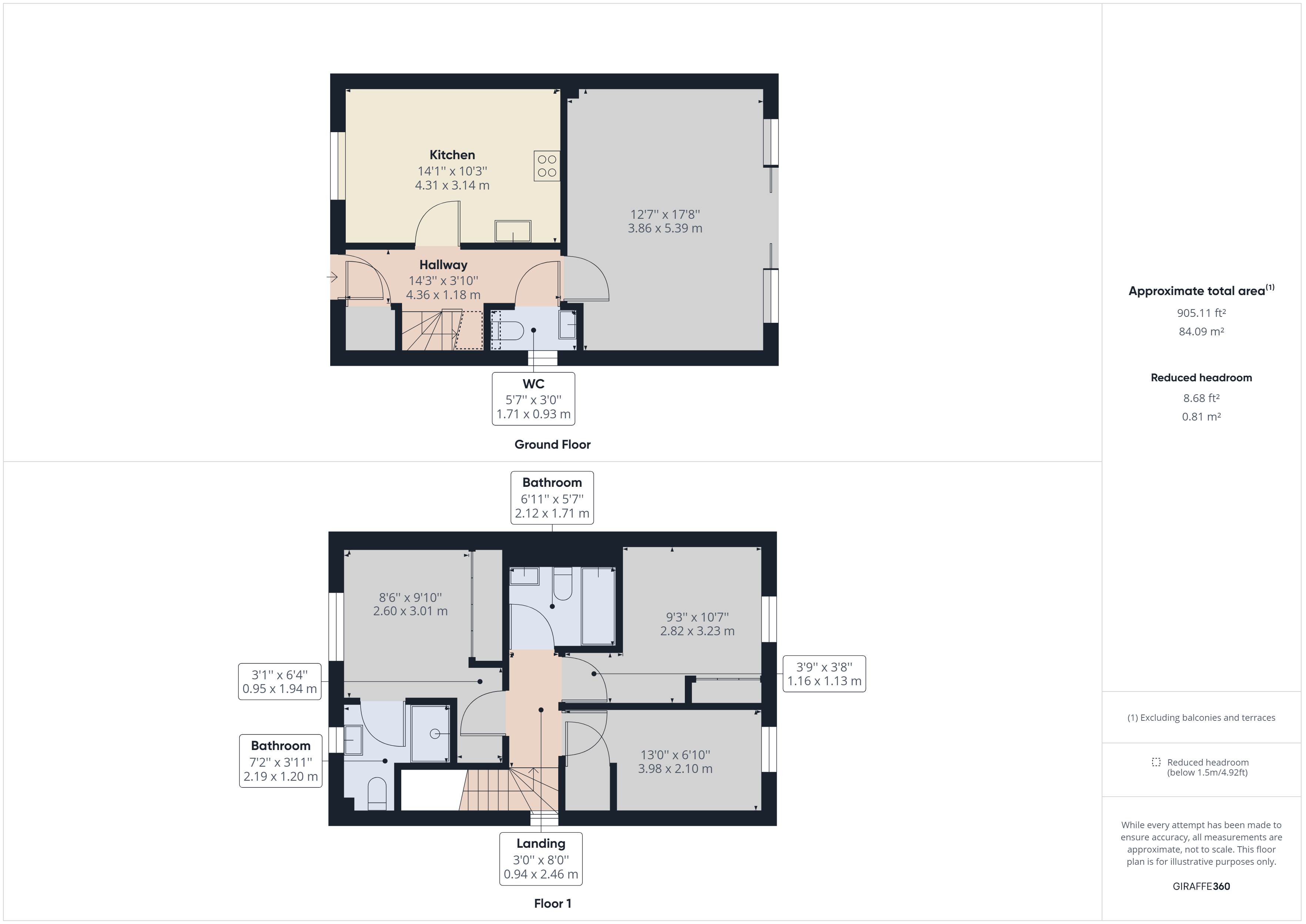
  • Bedrooms 3
  • Bathrooms 2
  • Reception rooms 1
  • Floorplan

PICTURES AND VIDEOS

KEY FEATURES

  • Nascot Homes Presents The Gardeners
  • A Bespoke Development of Just 7 Luxury Homes
  • Three Bedroom Semi Detached
  • Generous Plots with Landscaped Gardens
  • Contemporary Fitted Kitchens with Stone Worktops
  • Bosch Integrated Appliances
  • Designer Bathrooms
  • 10 Year Builders Warranty

KEY INFORMATION

  • Tenure: Freehold

Description

Nascot Homes are proud to present this selection of seven stylish homes each on generous plots offering the very best of modern living in this convenient location. The Gardeners is an easy walk to the centre of the Thames side suburb of Caversham. Buyers will find an excellent range of restaurants, bars, cafes and shops close by and Reading Station with its direct link to London Paddington in under 25 minutes and on the Elizabeth Line (Crossrail) linking Reading with Canary wharf and the City of London is less than a mile away. Each of these energy efficient homes will be finished to the highest of standards with contemporary high spec. kitchens complete with composite stone worktops and a range of integrated Bosch appliances. The bathrooms feature premium sanitaryware by Roca, thermostatically controlled Hansgrohe showers and heated mirrors. Each of these delightful homes will have ultra efficient air source heat pumps providing heating and hot water with underfloor heating on the ground floors and radiators upstairs. Each ample garden will be thoughtfully landscaped with high quality turf and generous patio areas. The Gardeners provides the best in luxury living in a superb setting less than an hour from the centre of London. To book your tour and for further information contact Winkworth in Reading on 0118 4022300 or by email at [email protected]

Location

The Gardeners is set on the site of the former Gardeners Arms Public House opposite Scott Close. Surley Row is on the Caversham/Emmer Green border and accessed from Rotherfield Way in Caversham to the south and St. Barnabas Road to the north. Highdown Secondary School can be found off Surley Row 400 metres away. Emmer Green is located on the northern edge of Caversham on the South Oxfordshire border. Reading town centre is easily accessible as is Caversham with its great selection of bars, restaurants, shops including a large Waitrose and the banks of the River Thames. Reading mainline train station with its fast connections to London (25 minutes to London Paddington) is close by and the number and can be easily reached via the number 24 bus. The area is serviced by two excellent primary schools in The Hill and Emmer Green Primary (recently rated outstanding by Ofsted) and Highdown school and sixth forms is the local secondary comprehensive. There are some excellent public schools within close reach including, Queen Anne's Caversham, Shiplake College and The Oratory. Abbey Rugby club with its 5 tiers of men's rugby and women's and several junior teams is also located in Emmer Green.
Introduction text for the mortgage calculator

Mortgage Calculator

Fill in the details below to estimate your monthly repayments:

Approximate monthly repayment:

For more information, please contact Winkworth's mortgage partner, Trinity Financial, on +44 (0)20 7267 9399 and speak to the Trinity team.

Stamp Duty Calculator

Fill in the details below to estimate your stamp duty

The above calculator above is for general interest only and should not be relied upon

6/14
Picture No. 13
Picture No. 25
Picture No. 29
Picture No. 15
Picture No. 28
Picture No. 16
Picture No. 21
Picture No. 19
Picture No. 20
Picture No. 17
Picture No. 18
Picture No. 24
Picture No. 26
Picture No. 22
Picture No. 23
Picture No. 14
Picture No. 27

Meet the Team

Located just 36 miles from Central London and 24 miles from Oxford, Reading's geographical placement is perfect for living and working or commuting. Michael and James are established professionals who have years of combined experience and local knowledge and can offer you a friendly approach and unparalleled service.

See all team members

Got a question about this property?

This site is protected by reCAPTCHA and the Google Privacy Policy and Terms of Service apply.

More Properties like this

Virtual Tour

Sulhamstead, Reading, Berkshire, RG7

Offers in excess of £1,750,000 Freehold

Virtual Tour

Ashford Hill Road, Headley, Thatcham, Hampshire, RG19

Offers in excess of £1,750,000 Freehold

Video Tour

Under Offer

Sheffield Close, Pangbourne, Reading, Berkshire, RG8

Offers over £1,700,000 Freehold

Virtual Tour

New Instruction

Sonning Eye, Reading, Oxfordshire, RG4

£1,700,000

Video Tour

Under Offer

Part Lane, Riseley, Reading, Berkshire, RG7

Offers in excess of £1,500,000 Freehold

Virtual Tour

Dewe Lane, Burghfield, Reading, Berkshire, RG30

£1,500,000 Freehold

Online Valuations Aren’t Worth The Paper They’re Printed On.

When online valuations don’t give you the whole picture - try Winkworth’s expert service. Get a free property appraisal. Accurate valuations from our local property experts. No obligation to list with Winkworth. Choose a time convenient for you with our online booking system.

Fill in your details and someone will be in touch soon:

You have provisionally booked a valuation for . Please confirm your details below

We don't have date info available for this property, but if you fill in your details below, someone will be in touch to arrange a date soon

Please fill in the required fields below marked with *

This site is protected by reCAPTCHA and the Google Privacy Policy and Terms of Service apply.