Skip to main content

MyWinkworth

Sold

Picture No. 01
Picture No. 09
Picture No. 11
Picture No. 02
Picture No. 03
Picture No. 04
Picture No. 05
Picture No. 06
Picture No. 07
Picture No. 08
Picture No. 10
6/14

The Crescent, Morton, Bourne, PE10

3 bedroom house in Morton

£210,000 Freehold

  • Bedrooms 3
  • Bathrooms 2
  • Reception rooms 2
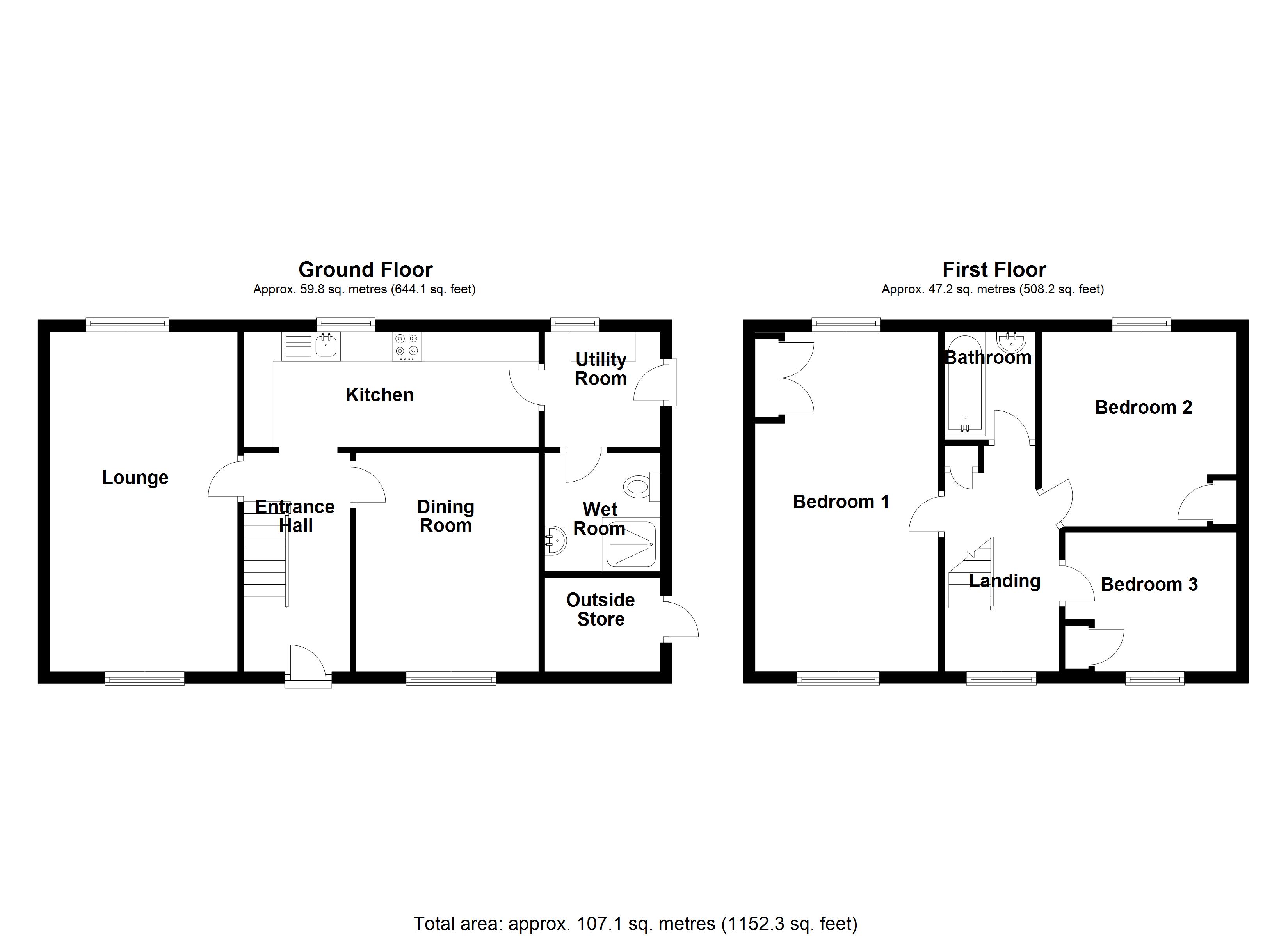
  • Floorplan

PICTURES AND VIDEOS

KEY FEATURES

  • Three Bedroom Ex-Council Semi
  • Large rear garden
  • Detached Workshop/Garage
  • Kitchen & Utility Room
  • Quiet Village Location
  • EPC Rating - TBC

KEY INFORMATION

  • Tenure: Freehold

Description

We are delighted to offer for sale this spacious three bedroom semi detached family home with fantastic rear garden offering huge potential. The property is offered for sale with no ongoing chain and indeed of modernisation benefiting from, entrance hall, lounge, separate dining room, kitchen with utility room off, shower room, three bedrooms and bathroom. Outside there is a gated driveway providing ample off road parking to the side. The rear garden extends to over 100ft in length being established and mainly laid to lawn with mature shrubs and trees. Please call 01778 392807 for an early internal viewing to avoid disappointment.

Rooms and Accommodations

  • Entrance Hall
  • With stairs leading to the first floor and door to.
  • Lounge
  • 4.93m x 3.20m (16'2" x 10'6")
  • With feature fireplace, laminate flooring, radiator and upvc double glazed windows to the front and rear.
  • Dining Room
  • 3.86m x 3.23m (12'8" x 10'7")
  • With upvc double glazed window to the front, radiator and power points.
  • Kitchen
  • 4.93m x 1.93m (16'2" x 6'4")
  • With fitted units comprising, single drainer sink with cupboard below, excellent range of wall and base units, space for electric cooker, space and plumbing for washing machine, space for fridge and freezer, part tiled walls, radiator, upvc double glazed window to the rear and door to.
  • Utility Room
  • 1.93m x 1.88m (6'4" x 6'2")
  • With fitted cupboards, upvc double glazed window, radiator, door to the rear and door to.
  • Wet Room
  • With shower, low level wc, wash hand basin, part tiled walls, upvc double glazed window and radiator.
  • First Floor Landing
  • With upvc double glazed window to the front, built in airing cupboard housing replacement combi boiler supplying hot water and central heating.
  • Bedroom One
  • 4.93m x 3.28m (16'2" x 10'9")
  • With built in wardrobes, radiator, power points and upvc double glazed windows to the front and rear.
  • Bedroom Two
  • 3.40m x 3.10m (11'2" x 10'2")
  • With built in wardrobe, radiator and upvc double glazed window to the rear.
  • Bedroom Three
  • 3.15m x 2.20m (10'4" x 7'3")
  • With upvc double glazed window to the front, built in wardrobe and radiator.
  • Bathroom
  • With panelled bath with shower attachment, wash hand basin, part tiled walls, radiator and upvc double glazed frosted window.
  • Outside
  • To the side there is a gated driveway proving amole off road parking. There is a lawned front garden with pathway to the front door with a brick built workshop/store to the side. The rear garden measures over 100ft in length and is mainly lawned with mature trees and shrubs. There is also a detached garage/workshop
Introduction text for the mortgage calculator

Mortgage Calculator

Fill in the details below to estimate your monthly repayments:

Approximate monthly repayment:

For more information, please contact Winkworth's mortgage partner, Trinity Financial, on +44 (0)20 7267 9399 and speak to the Trinity team.

Stamp Duty Calculator

Fill in the details below to estimate your stamp duty

The above calculator above is for general interest only and should not be relied upon

6/14
Picture No. 01
Picture No. 09
Picture No. 11
Picture No. 02
Picture No. 03
Picture No. 04
Picture No. 05
Picture No. 06
Picture No. 07
Picture No. 08
Picture No. 10

Meet the Team

Our team are here to support and advise our customers when they need it most. We understand that buying, selling, letting or renting can be daunting and often emotionally meaningful. We are there, when it matters, to make the journey as stress-free as possible.

See all team members

Got a question about this property?

This site is protected by reCAPTCHA and the Google Privacy Policy and Terms of Service apply.

More Properties like this

Under Offer

Clarks Close, Morton, Bourne, Lincolnshire, PE10

£695,000 Freehold

Swallow Hill, Thurlby, Bourne, Lincolnshire, PE10

£685,000 Freehold

High Street, Horbling, Sleaford, Lincolnshire, NG34

£675,000 Freehold

Saxon Way, Bourne, PE10

£550,000 Freehold

Under Offer

Mill Drove, Bourne, Lincolnshire, PE10

Offers in excess of £550,000 Freehold

Under Offer

Stephenson Way, Bourne, PE10

£550,000 Freehold

Online Valuations Aren’t Worth The Paper They’re Printed On.

When online valuations don’t give you the whole picture - try Winkworth’s expert service. Get a free property appraisal. Accurate valuations from our local property experts. No obligation to list with Winkworth. Choose a time convenient for you with our online booking system.

Fill in your details and someone will be in touch soon:

You have provisionally booked a valuation for . Please confirm your details below

We don't have date info available for this property, but if you fill in your details below, someone will be in touch to arrange a date soon

Please fill in the required fields below marked with *

This site is protected by reCAPTCHA and the Google Privacy Policy and Terms of Service apply.