Skip to main content

MyWinkworth

Sold

Picture No. 01
Picture No. 10
Picture No. 13
Picture No. 03
Picture No. 04
Picture No. 05
Picture No. 06
Picture No. 07
Picture No. 08
Picture No. 20
Picture No. 14
Picture No. 15
Picture No. 16
Picture No. 17
Picture No. 18
Picture No. 11
Picture No. 09
Picture No. 12
Picture No. 02
Picture No. 19
6/14

The Beeches, Beechfield Gardens, Spalding, Lincolnshire, PE11

4 bedroom house in Beechfield Gardens

Offers in excess of £550,000 Freehold

  • Bedrooms 4
  • Bathrooms 2
  • Reception rooms 3
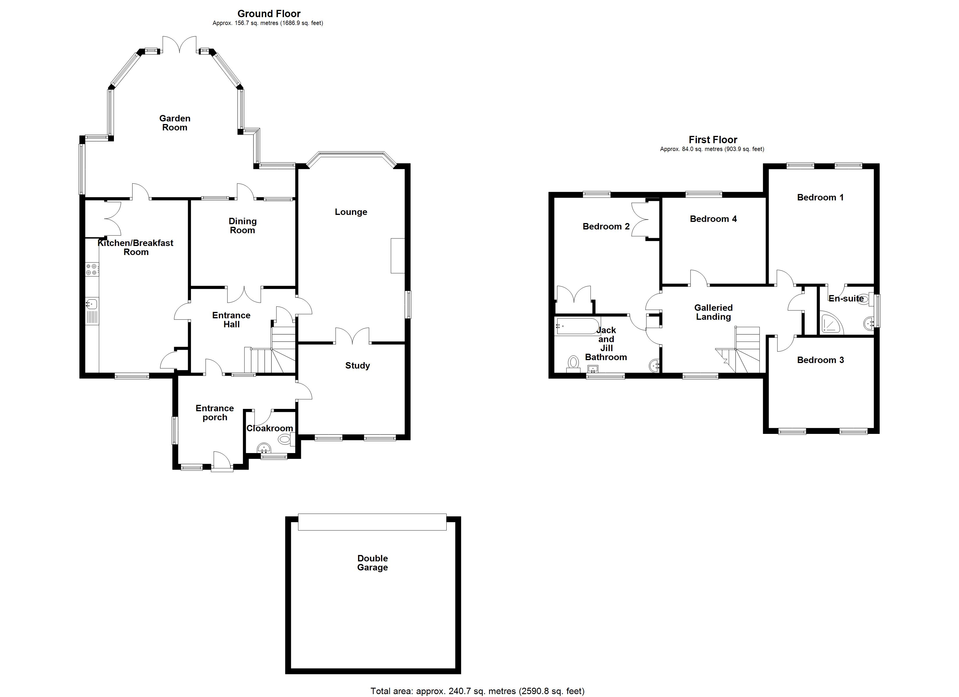
  • Floorplan

PICTURES AND VIDEOS

KEY FEATURES

  • Four Bedroom Detached Home
  • Sought After Location
  • Detached Double Garage
  • Approximately 0.4 Acres
  • Excellent Family Accomodation
  • South East Facing Rear Garden

KEY INFORMATION

  • Tenure: Freehold
  • Council Tax Band: E
  • Local Authority: South Holland

Description

Winkworth are delighted to bring to the market this impressive four bedroom detached family home located in this exclusive development of only two other homes in one of Spalding most sought after locations. The property is of a fantastic plot of approximately 0.4 acres with a wonderful established south east facing lawned rear garden with a wide variety of shrubs and trees offering lots of privacy and to the front a gated driveway with detached double garage with further garden area behind. The accommodation is set over two floors with extended entrance hall, lounge dining room and study, quality garden room with glass roof and kitchen/breakfast room. One the first floor the master bedroom benefits from and en-suite shower room, there are three further bedrooms and a family bathroom. The town centre is within a short walk with all of Spalding’s amenities as is the train station and Grammar schools making this home a must view and we would strongly recommend an early viewing to avoid disappointment.

Rooms and Accommodations

  • Entrance Porch
  • With wood effect flooring, windows to the side, door to the study and entrance hall and door leading to.
  • Downstairs Cloakroom
  • With low level wc, wash hand basin and frosted window.
  • Entrance Hall
  • With stairs leading to the first floor, amtico flooring, under stairs storage cupboard, telephone point and door leading to.
  • Lounge
  • 6.2m x 3.86m
  • With attractive feature fireplace, bay window overlooking the rear garden with further window to the side, radiator and power points.
  • Dining Room
  • 3.76m x 3.12m
  • With windows and door leaing to the garden room, radiator and power points.
  • Study
  • 3.86m x 3.2m
  • With two windows overlooking the front, radiator, power points, telephone point and double opening doors to the lounge.
  • Kitchen/Breakfast Room
  • 6.25m x 3.78m
  • With fitted units comprising, sink with cupboard below, good range of wall and base units, fitted larder cupboard, built in double oven and gas hob with extractor canopy above, space and plumbing for dishwasher, space for fridge freezer, space and plumbing for washing machine, tiled flooring, water softener, window to the rear and door leading to.
  • Garden Room
  • Being half brick with windows and french doors onto the rear garden, glass roof, amtico flooring, TV point, power and light.
  • First Floor Galleried Landing
  • With built in airing cupboard housing pressurized tank, window overlooking the front and door to.
  • Bedroom One
  • 4.3m x 3.86m
  • With two windows overlooking the rear garden, radiator, power points, TV point and door to.
  • En-Suite Shower Room
  • With corner shower cubicle, low level wc, wash hand basin set in unit with cupboards below, heated towel rail, tiled walls and frosted window.
  • Bedroom Two
  • 4.2m x 3.76m
  • With fitted wardrobes, radiator, power points, TV points, window overlooking the rear and door to the jack and jill bathroom.
  • Bedroom Three
  • 3.89m x 3.07m
  • With two windows overlooking the front, radiator, TV point and power points.
  • Bedroom Four
  • 3.73m x 3.12m
  • With window overlooking the rear, radiator, TV points and power points.
  • Jack & Jill Bathroom
  • With panelled bath with wall mounted shower and glass screen, low level wc, wash hand basin, tiled walls, heated towel rail and frosted window.
  • Outside
  • The property is approached via electric gates which leads to a generous block paved driveway providing ample off road parking. There is a DETACHED DOUBLE GARAGE with electric roller doors. To the rear of the garage there is a lawned private garden surrounded by mature trees and shrubs. To the rear there is a stunning south east facing with large paved patio leading onto an established lawned garden with a wide variety of plants shrubs and trees, there is also a summerhouse, outside tap and outside power.
Introduction text for the mortgage calculator

Mortgage Calculator

Fill in the details below to estimate your monthly repayments:

Approximate monthly repayment:

For more information, please contact Winkworth's mortgage partner, Trinity Financial, on +44 (0)20 7267 9399 and speak to the Trinity team.

Stamp Duty Calculator

Fill in the details below to estimate your stamp duty

The above calculator above is for general interest only and should not be relied upon

6/14
Picture No. 01
Picture No. 10
Picture No. 13
Picture No. 03
Picture No. 04
Picture No. 05
Picture No. 06
Picture No. 07
Picture No. 08
Picture No. 20
Picture No. 14
Picture No. 15
Picture No. 16
Picture No. 17
Picture No. 18
Picture No. 11
Picture No. 09
Picture No. 12
Picture No. 02
Picture No. 19

Meet the Team

Our team are here to support and advise our customers when they need it most. We understand that buying, selling, letting or renting can be daunting and often emotionally meaningful. We are there, when it matters, to make the journey as stress-free as possible.

See all team members

Got a question about this property?

This site is protected by reCAPTCHA and the Google Privacy Policy and Terms of Service apply.

More Properties like this

Under Offer

Clarks Close, Morton, Bourne, Lincolnshire, PE10

£695,000 Freehold

Swallow Hill, Thurlby, Bourne, Lincolnshire, PE10

£685,000 Freehold

High Street, Horbling, Sleaford, Lincolnshire, NG34

£675,000 Freehold

Saxon Way, Bourne, PE10

£550,000 Freehold

Under Offer

Mill Drove, Bourne, Lincolnshire, PE10

Offers in excess of £550,000 Freehold

Under Offer

Stephenson Way, Bourne, PE10

£550,000 Freehold

Online Valuations Aren’t Worth The Paper They’re Printed On.

When online valuations don’t give you the whole picture - try Winkworth’s expert service. Get a free property appraisal. Accurate valuations from our local property experts. No obligation to list with Winkworth. Choose a time convenient for you with our online booking system.

Fill in your details and someone will be in touch soon:

You have provisionally booked a valuation for . Please confirm your details below

We don't have date info available for this property, but if you fill in your details below, someone will be in touch to arrange a date soon

Please fill in the required fields below marked with *

This site is protected by reCAPTCHA and the Google Privacy Policy and Terms of Service apply.