Studio Way, Borehamwood, Hertfordshire, WD6
3 bedroom house in Borehamwood
£540,000 Freehold
- 3
- 2
- 1
-
1242 sq ft
115 sq m -
PICTURES AND VIDEOS
















KEY FEATURES
- Three Bedrooms
- 1242 Square Feet
- Two Bathrooms
- Guest Cloakroom
- Integral Garage and Additional Parking Space
- NHBC Warranty
- Quiet Location
KEY INFORMATION
- Tenure: Freehold
- Council Tax Band: E
- Local Authority: Hertsmere Council
Description
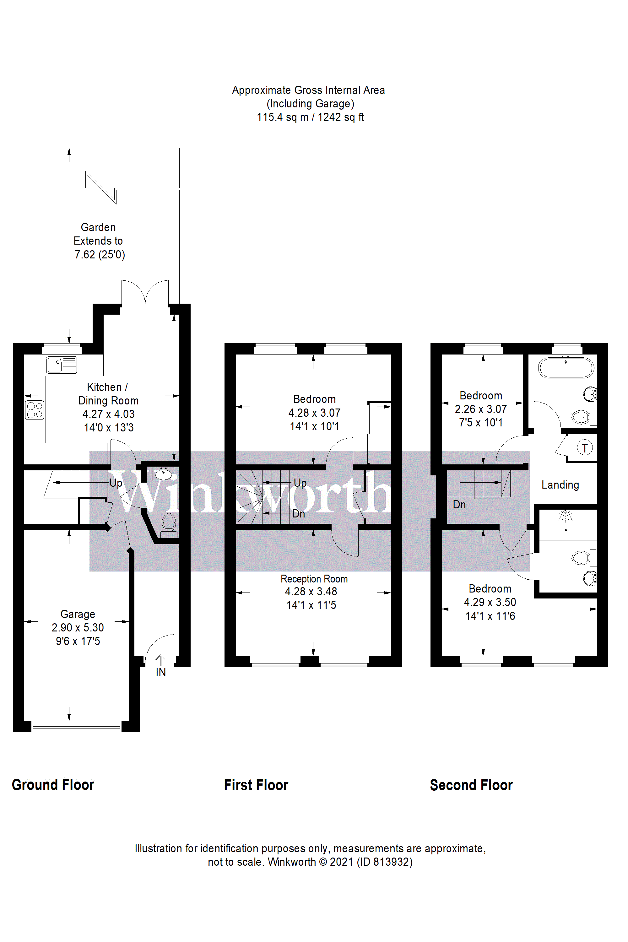
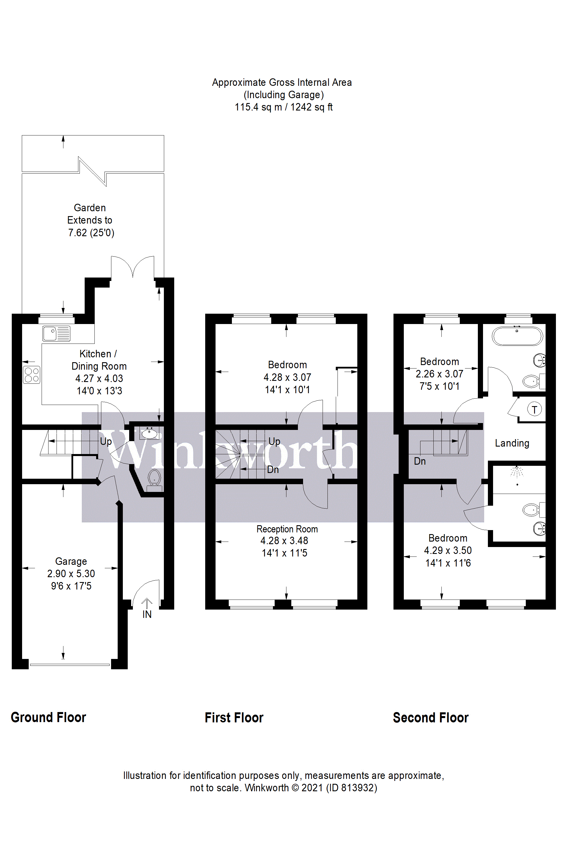
Arranged over three floors the accommodation totals cica 1250 square feet and comprises kitchen /diner, guest wc, and integral garage on the ground floor, reception and double bedroom on the first floor and master bedroom with ensuite shower room, third bedroom and family bathroom on the upper floor.
To the rear is low maintenance, paved and secluded garden and nearby an additional allocated parking space
Constructed approx. nine years ago by the highly regarded developers Linden Homes is this three bedroom family town house.
Arranged over three floors the accommodation totals circa 1250 square feet and comprises kitchen /diner, guest wc, and integral garage on the ground floor, reception and double bedroom on the first floor and master bedroom with ensuite shower room, third bedroom and family bathroom on the upper floor.
To the rear is low maintenance, paved and secluded garden and nearby an additional allocated parking space
Rooms and Accommodations
- 1242 Square Feet
- Two Bathrooms
- Guest Cloakroom
- Integral Garage and Additional Parking Space
- NHBC Warranty
- Quiet Location
Marketed by
Winkworth Borehamwood & Elstree
Properties for sale in Borehamwood & ElstreeArrange a Viewing
Fill in the form below to arrange your property viewing.
Mortgage Calculator
Fill in the details below to estimate your monthly repayments:
Approximate monthly repayment:
For more information, please contact Winkworth's mortgage partner, Trinity Financial, on +44 (0)20 7267 9399 and speak to the Trinity team.
Stamp Duty Calculator
Fill in the details below to estimate your stamp duty
The above calculator above is for general interest only and should not be relied upon
Meet the Team
We currently have a team of eight staff members consisting of sales, lettings, management & marketing. Collectively the team have over 60 years worth of experience. The office is located on the main thorough fare of the town centre with an attractive contemporary main office interior.
See all team members