Skip to main content

MyWinkworth

New Instruction

Picture No. 01
Picture No. 03
Picture No. 04
Picture No. 06
Picture No. 08
Picture No. 09
Picture No. 10
Picture No. 11
Picture No. 12
Picture No. 13
Picture No. 14
Picture No. 15
Picture No. 16
Picture No. 17
Picture No. 02
Picture No. 07
Picture No. 05
6/14

Station Road, Corby Glen, Grantham, Lincolnshire, NG33

4 bedroom house in Corby Glen

£375,000 Freehold

  • Bedrooms 4
  • Bathrooms 2
  • Reception rooms 3
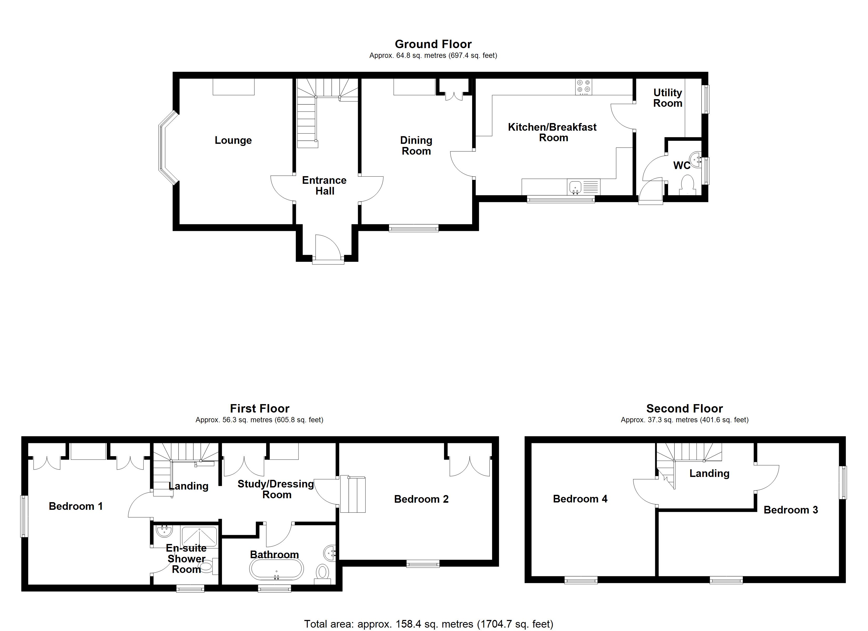
  • Floorplan

PICTURES AND VIDEOS

KEY FEATURES

  • Stone Built Semi-Detached Villa
  • Four Bedrooms
  • Three Reception Rooms
  • Master with En Suite
  • EPC To Be Confirmed
  • Council Tax Band D

KEY INFORMATION

  • Tenure: Freehold
  • Council Tax Band: D

Description

Winkworth are delighted to offer for sale this well-appointed four-bedroom stone-built semi-detached villa, situated in the popular village of Corby Glen. Positioned just off the main road, the property enjoys easy access to local amenities and nearby towns, while benefitting from far-reaching views over open countryside.
The accommodation is generously proportioned, featuring a spacious lounge, formal dining room, and a kitchen/breakfast room—ideal for modern family living. A sweeping gravel driveway provides ample off-road parking, and the large gardens offer plenty of space for outdoor entertaining or growing families.
This unique home offers the best of both worlds: village living with excellent connectivity and a generous plot.

Rooms and Accommodations

  • Entrance Hall
  • With turning staircase to the first floor, tiled flooring, access to the Cellar and door leading to:
  • Lounge
  • 4.45m x 3.76m
  • With stripped wooden flooring, attractive feature fireplace with woodburning stove, upvc double glazed bay window with shutters to the side, radiator and picture rail.
  • Dining Room
  • 4.45m x 3.68m
  • With stripped wooden flooring, upvc double glazed window to the front, original built in storage cupboard, attractive feature fireplace, radiator, power points and door leading to:
  • Kitchen/Breakfast Room
  • 4.75m x 3.38m
  • With modern fitted units comprising, ceramic sink with cupboard below, excellent range of wall and base units, range cooker with extractor above, integrated dishwasher, part tiled walls, granite tiled flooring, upvc double glazed window to the front and door leading to:
  • Utility Room
  • 3.38m x 1.96m
  • With fitted worksurface, space and plumbing for washing machine and tumble dryer, window to the side and door to the front, Granite tiled flooring and door leading to:
  • Downstairs Cloakroom
  • With low level wc, wash hand basin, Granite tiled flooring and frosted window.
  • First Floor Landing
  • With stairs leading to the second floor and door leading to:
  • Bedroom One
  • 4.27m x 3.78m
  • With fitted wardrobes, stripped wooden flooring, upvc double glazed window to the side, radiator, power points and door leading to:
  • En-Suite Shower Room
  • With fully tiled walk in shower cubicle, low level wc, wash hand basin, radiator and frosted window.
  • Study/Dressing Room
  • 3.76m x 2.2m
  • With attractive feature fireplace, built in storage cupboard, door to the bathroom plus door and steps leading down to:
  • Bedroom Two
  • 4.72m x 3.18m
  • With wooden flooring, upvc double glazed window to the front, built in airing cupboard, radiator and power points.
  • Family Bathroom
  • With freestanding bath with shower attachment, low level wc, wash hand basin, part tiled walls, heated towel rail and frosted window.
  • Second Floor
  • With door leading to:
  • Bedroom Three
  • With Velux window and further upvc double glazed window, radiator and power points.
  • Bedroom Four
  • With Velux window and further upvc double glazed window, radiator and power points.
  • Outside
  • To the front there is a large gravelled driveway providing ample off road parking which leads to a pleasant walled side garden providing a great place to sit and relax. The garden is mainly to the front with a generous lawned area well screened by conifer trees extending further alongside the river with views across open fields.

Marketed by

Winkworth Bourne

Properties for sale in Bourne

Arrange a Viewing

Fill in the form below to arrange your property viewing.

This site is protected by reCAPTCHA and the Google Privacy Policy and Terms of Service apply.
Introduction text for the mortgage calculator

Mortgage Calculator

Fill in the details below to estimate your monthly repayments:

Approximate monthly repayment:

For more information, please contact Winkworth's mortgage partner, Trinity Financial, on +44 (0)20 7267 9399 and speak to the Trinity team.

Stamp Duty Calculator

Fill in the details below to estimate your stamp duty

The above calculator above is for general interest only and should not be relied upon

6/14
Picture No. 01
Picture No. 03
Picture No. 04
Picture No. 06
Picture No. 08
Picture No. 09
Picture No. 10
Picture No. 11
Picture No. 12
Picture No. 13
Picture No. 14
Picture No. 15
Picture No. 16
Picture No. 17
Picture No. 02
Picture No. 07
Picture No. 05

Meet the Team

Our team are here to support and advise our customers when they need it most. We understand that buying, selling, letting or renting can be daunting and often emotionally meaningful. We are there, when it matters, to make the journey as stress-free as possible.

See all team members

Got a question about this property?

This site is protected by reCAPTCHA and the Google Privacy Policy and Terms of Service apply.

More Properties like this

Under Offer

Swallow Hill, Thurlby, Bourne, Lincolnshire, PE10

£685,000 Freehold

High Street, Horbling, Sleaford, Lincolnshire, NG34

£625,000 Freehold

Lound, Bourne, PE10

Offers in excess of £600,000 Freehold

New Instruction

Northorpe Lane, Thurlby, Bourne, Lincolnshire, PE10

£599,950 Freehold

Saxon Way, Bourne, PE10

£550,000 Freehold

Under Offer

Main Road, Dowsby, Bourne, PE10

£550,000 Freehold

Online Valuations Aren’t Worth The Paper They’re Printed On.

When online valuations don’t give you the whole picture - try Winkworth’s expert service. Get a free property appraisal. Accurate valuations from our local property experts. No obligation to list with Winkworth. Choose a time convenient for you with our online booking system.

Fill in your details and someone will be in touch soon:

You have provisionally booked a valuation for . Please confirm your details below

We don't have date info available for this property, but if you fill in your details below, someone will be in touch to arrange a date soon

Please fill in the required fields below marked with *

This site is protected by reCAPTCHA and the Google Privacy Policy and Terms of Service apply.