New Instruction
Shearman Road, Blackheath, London, SE3
4 bedroom house
Guide Price £950,000 Freehold
- 4
- 1
- 1
PICTURES AND VIDEOS



















KEY FEATURES
- "Gough Cooper" style house
- detached
- three/four bedroom
- stunning extended kitchen diner
- off street parking
- excellent condition
- close to Blackheath Village
KEY INFORMATION
- Tenure: Freehold
- Council Tax Band: F
- Local Authority: Lewisham
Description
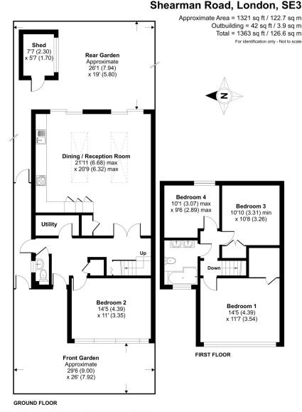
The property is in excellent condition throughout and briefly comprises; a versatile front reception room or additional bedroom, the kitchen/ reception room is a magnificent open space with skylights adding to the sense of space, there is underfloor heating and from there you have access onto the low maintenance garden. Finally on the ground floor you'll find the separate utility room and WC.
The first floor offers three generously sized double bedrooms, the master measuring 14'5x11'7 and there is also the beautiful and recently refurbished family bathroom.
This is a stunning home and your earliest viewing is highly recommended.
The property sits just off the leafy Lee Park, SE3 and a few minutes’ walk from Blackheath Village with its array of boutique shops, farmers market, restaurants, bars and station. The heath is a 12 minute walk and the fabulous Royal Greenwich Park is just 1 mile with Greenwich town centre beyond. Greenwich maintains a quaint rural village feel and is steeped in history with the old Royal Naval Hospital, the Royal Observatory, the National Maritime Museum, and the spectacularly restored Cutty Sark. Greenwich's covered market is one of London’s best and attracts people from all over the capital.
There are fantastic transport links with Blackheath Station giving access to London Bridge, Charing Cross and Victoria amongst others with access to the DLR, bus, riverboat, foot tunnel and cable car all within the area. The area is minutes from Canary Wharf, the City and central London, just one of the reasons why it's increasingly popular with young professionals and commuters. The O2 is also close by as are local shops and amenities including Sainsbury's and Marks and Spencer’s food, within a very short walk.
Close by are the Ofsted “Outstanding” John Ball and St Margarets Primary Schools as are several highly sought-after Independent Schools including; Blackheath Preparatory School, The Pointer School, Heath House Preparatory School, Blackheath High Junior School, Blackheath High Seniors School, Colfes (1.4 miles) and Eltham College (2.4 miles).
Local Authority: Lewisham
Tax Band: F
N.B. These details have been provided by the vendor. Any interested party should have these checked by a solicitor as part of the purchase process.
Utilities
- Electricity Supply: Mains Supply
- Water Supply: Mains Supply
- Sewerage: Mains Supply
- Heating: Gas, Under Floor Heating
- Broadband: Cable
Rights & Restrictions
- Listed Property: No
- Restrictions: No
- Easements, servitudes or wayleaves: No
- Public right of way: No
Risks
- Flood Risk: There has not been flooding in the last 5 years
Marketed by
Winkworth Blackheath
Properties for sale in BlackheathArrange a Viewing
Fill in the form below to arrange your property viewing.
Mortgage Calculator
Fill in the details below to estimate your monthly repayments:
Approximate monthly repayment:
For more information, please contact Winkworth's mortgage partner, Trinity Financial, on +44 (0)20 7267 9399 and speak to the Trinity team.
Stamp Duty Calculator
Fill in the details below to estimate your stamp duty
The above calculator above is for general interest only and should not be relied upon
Meet the Team
As one of the oldest estate agents in Blackheath, ranked no 1 for both sales and lettings, our local knowledge and expertise is second to none. Our recently refurbished flagship office is found in the heart of the Village, directly opposite Blackheath Station, where you can call in for advice seven days a week.
See all team members