Skip to main content

MyWinkworth

Sold

Reception
Exterior
Kitchen/Diner
Kitchen
Bedroom
Study
Bedroom
Hallway
Bathroom
Exterior
Picture No.17
Kitchen/Diner
6/14

Shardcroft Avenue, London, SE24

2 bedroom flat/apartment in London

£699,950 Share of Freehold

  • Bedrooms 2
  • Bathrooms 1
  • Reception rooms 1
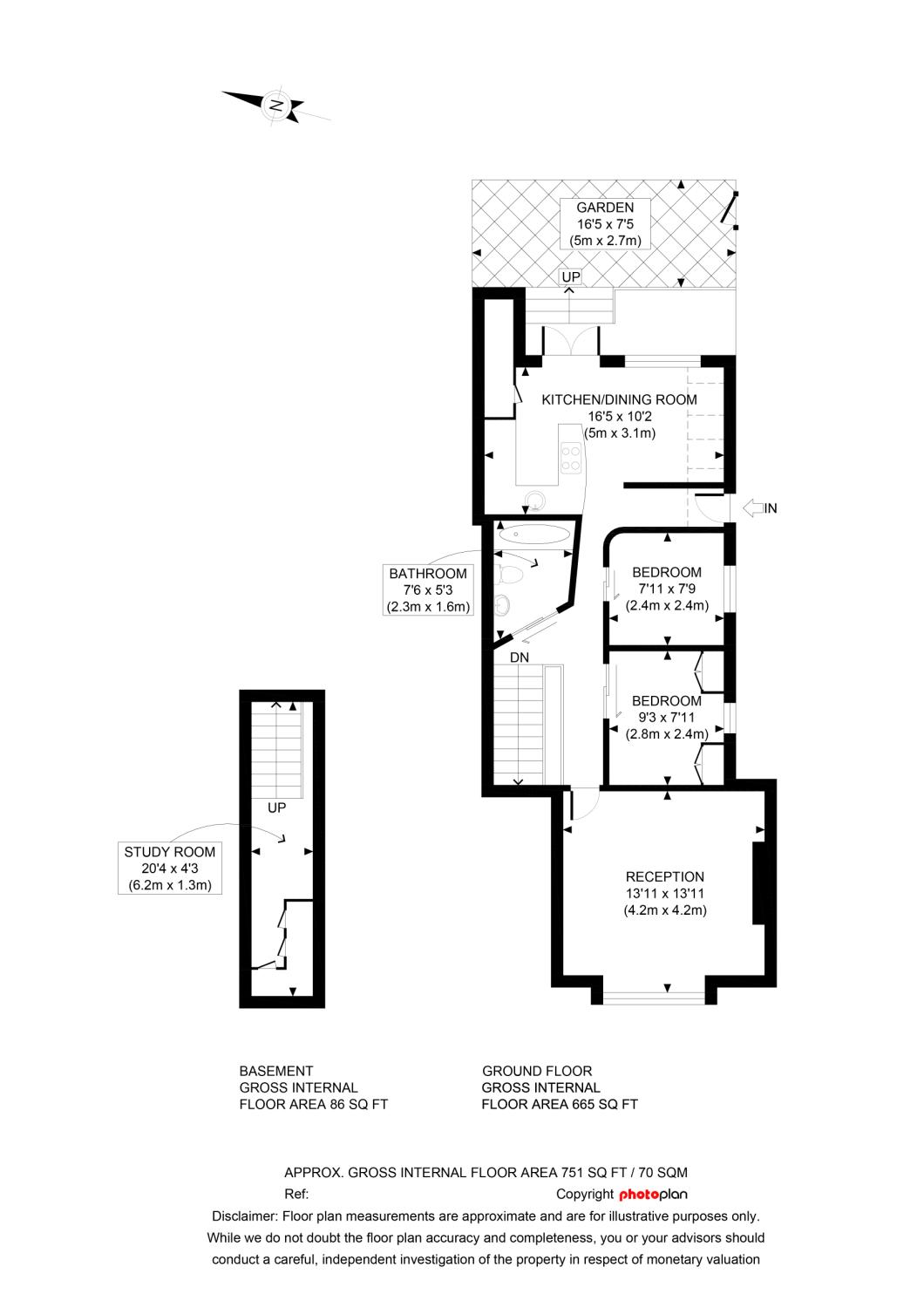
  • Dimensions 751 sq ft
    69 sq m
  • Floorplan

PICTURES AND VIDEOS

KEY FEATURES

  • Ground floor Victorian conversion
  • End of terrace
  • Own front door
  • Fully refurbished
  • Two double bedrooms
  • Large reception
  • Kitchen diner
  • Study
  • Utility cupboard
  • Private garden

KEY INFORMATION

  • Tenure: Share of Freehold
  • Council Tax Band: C
  • Local Authority: Lambeth

Description

We are delighted to present this stunning two double bedroom end of terrace Victorian conversion with a private garden.

Ideally situated in the heart of Herne Hill within walking distance of the station, bars, restaurants and shops as well as the lovely Brockwell Park and its iconic Art Deco style Lido.

The property comprises a beautiful kitchen diner with marble worktops, a built in seating area for dining and French doors that lead to a tiled patio and a mature, landscaped garden which also benefits from side access.

Off the unusually wide and spacious hallway you will find two double bedrooms (one with fitted wardrobes), a modern family bathroom and a splendid reception to front with original wood floor, a charming fireplace and plantation shutters.

The property also benefits from a study with useful storage that has been created in the basement and a utility cupboard which is fully plumbed for a washing machine.

Sole agent. Early viewing highly recommended!

The property comprises a beautiful kitchen diner with marble worktops, a built in seating area for dining and French doors that lead to a tiled patio and a mature, landscaped garden which also benefits from side access.

Off the unusually wide and spacious hallway you will find two double bedrooms (one with fitted wardrobes), a modern family bathroom and a splendid reception to front with original wood floor, a charming fireplace and plantation shutters.

The property also benefits from a study with useful storage that has been created in the basement and a utility cupboard which is fully plumbed for a washing machine.

Sole agent. Early viewing highly recommended!
Introduction text for the mortgage calculator

Mortgage Calculator

Fill in the details below to estimate your monthly repayments:

Approximate monthly repayment:

For more information, please contact Winkworth's mortgage partner, Trinity Financial, on +44 (0)20 7267 9399 and speak to the Trinity team.

Stamp Duty Calculator

Fill in the details below to estimate your stamp duty

The above calculator above is for general interest only and should not be relied upon

6/14
Reception
Exterior
Kitchen/Diner
Kitchen
Bedroom
Study
Bedroom
Hallway
Bathroom
Exterior
Picture No.17
Kitchen/Diner

Meet the Team

Our team at Winkworth Herne Hill Estate Agents are here to support and advise our customers when they need it most. We understand that buying, selling, letting or renting can be daunting and often emotionally meaningful. We are there, when it matters, to make the journey as stress-free as possible.

See all team members

Got a question about this property?

This site is protected by reCAPTCHA and the Google Privacy Policy and Terms of Service apply.

More Properties like this

Ferndene Road, London, SE24

Offers in excess of £1,000,000 Share of Freehold

Thurlow Park Road, London, SE21

Offers in excess of £700,000 Leasehold

Deronda Road, London, SE24

Offers in excess of £700,000 Leasehold

Holmewood Gardens, London, SW2

Offers in excess of £700,000 Leasehold

Lambert Road, London, SW2

Offers in excess of £675,000 Share of Freehold

Lowden Road, London, SE24

Offers in excess of £650,000 Freehold

Online Valuations Aren’t Worth The Paper They’re Printed On.

When online valuations don’t give you the whole picture - try Winkworth’s expert service. Get a free property appraisal. Accurate valuations from our local property experts. No obligation to list with Winkworth. Choose a time convenient for you with our online booking system.

Fill in your details and someone will be in touch soon:

You have provisionally booked a valuation for . Please confirm your details below

We don't have date info available for this property, but if you fill in your details below, someone will be in touch to arrange a date soon

Please fill in the required fields below marked with *

This site is protected by reCAPTCHA and the Google Privacy Policy and Terms of Service apply.