Skip to main content

MyWinkworth

Front
Lounge
Lounge
Lounge
Kitchen
Kitchen
Kitchen
Kitchen
Conservatory
Bedroom 1
Bedroom 2
Bedroom 3
Bathroom
Rear
Garden
Garden
6/14

Rosebery Avenue, Poringland, Norwich, Norfolk, NR14

3 bedroom house in Poringland

Guide Price £325,000 Freehold

  • Bedrooms 3
  • Bathrooms 1
  • Reception rooms 3
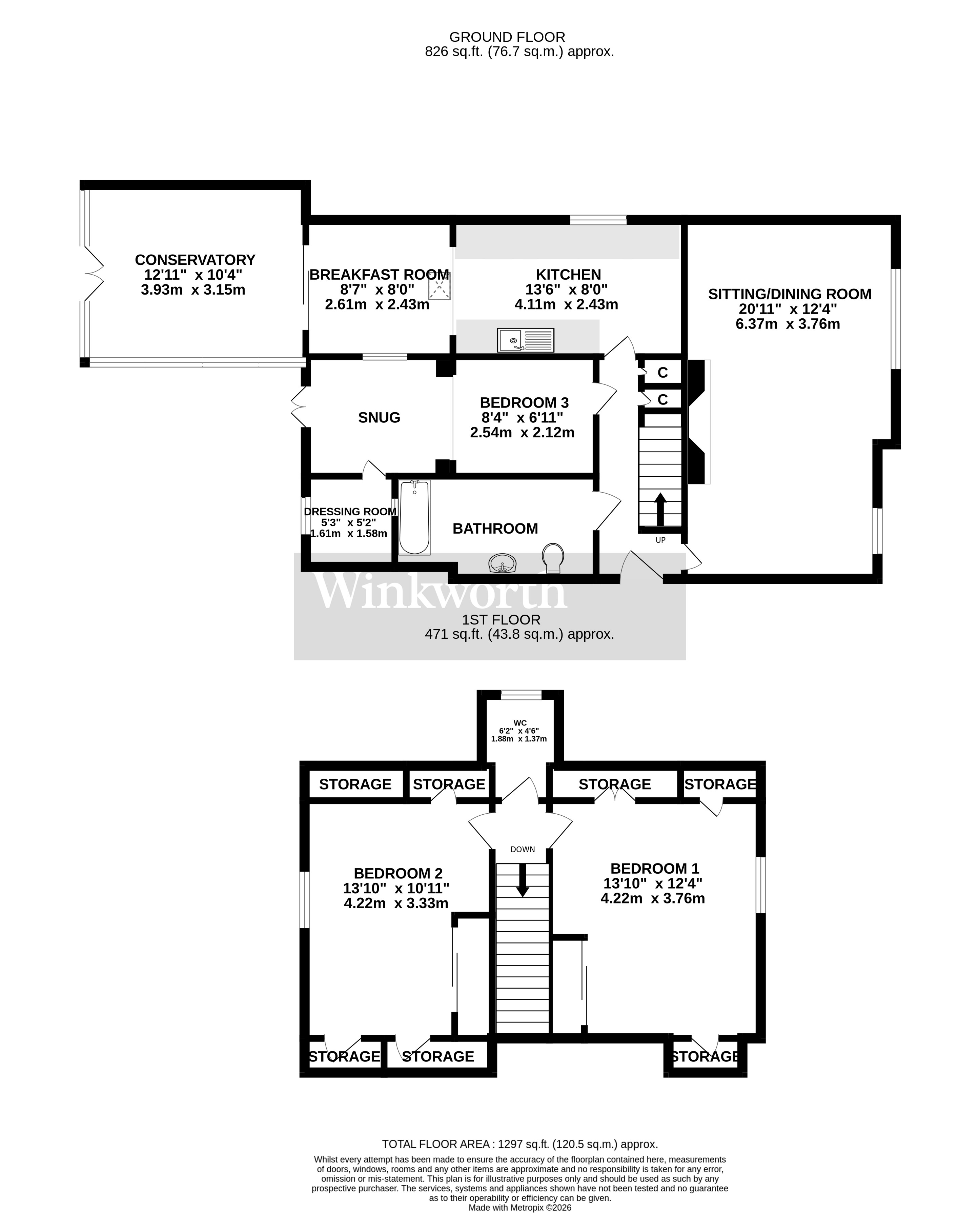
  • Dimensions 1297 sq ft
    120 sq m
  • Floorplan

PICTURES AND VIDEOS

KEY FEATURES

  • Guide Price £325,000 - £350,000
  • Spacious Three-Bedroom Chalet-Style Family Home
  • Extended And Carefully Maintained By Current Owner
  • Quiet Cul-De-Sac Position In Desirable Location
  • Well-Proportioned And Versatile Living Accommodation
  • Generous Full-Width Lounge With Picture Windows
  • Ground-Floor Bedroom With Snug And Dressing Room
  • Potential Home Office Or Flexible Living Space
  • Established Residential Area Close To Amenities
  • Much-Loved Home With Excellent Natural Light

KEY INFORMATION

  • Tenure: Freehold
  • Council Tax Band: C
  • Local Authority: South Norfolk Council

Description

A spacious three-bedroom detached chalet-style home, originally built in the 1960s and thoughtfully extended over many years by the present owner, creating a much-loved and well-proportioned family residence.

The property is quietly positioned in a tucked-away cul-de-sac within a highly desirable and popular area, and close proximity to local amenities.

Accommodation begins with a large and welcoming entrance hall. The lounge is generously sized, spanning the full width of the home and benefiting from two east picture windows that flood the room with natural light. A ground-floor bedroom opens into a comfortable snug area, complemented by a handy dressing room that could also serve as a potential home office.

The spacious, family-friendly kitchen features a skylight and breakfast area, with a glass-block wall adding further light and an enhanced sense of space. To the rear, the conservatory boasts a high glazed ceiling and enjoys attractive views over the private, green garden, centred around a beautiful oak tree.

On the first floor, the home is further enhanced by two large double bedrooms, along with a convenient WC.

Externally, the property sits comfortably within its plot, enjoying an attractive frontage screened by high hedging. A long driveway provides parking for numerous vehicle, with ample space for EV charging if required.

The rear garden is particularly secluded and features a variety of mature planting, including Acer and Oak trees, all combining to afford the home an excellent level of privacy and tranquillity.

Discover Life in Poringland;

Where Village Charm Meets Contemporary Convenience!

Perfectly positioned just five miles south of Norwich, Poringland is a flourishing village that effortlessly balances countryside calm with everyday connectivity. This is a community that’s constantly evolving, yet remains deeply rooted in the beauty and tranquillity of its rural setting.

At the heart of the village lies a newly unveiled Tesco Express, bringing with it a fresh wave of modern convenience. Just moments away, a fully revamped petrol station ensures smooth travel for commuters and weekend explorers alike, it’s the little details that make village life here effortlessly easy.

Everyday life is well-catered for with a range of local amenities including a pharmacy, doctors’ surgery, community centre, hair salons, a popular café, takeaways, and two well-regarded public houses. For those working from home, the village offers high-speed broadband options, while for those commuting, Norwich city centre is easily accessible by car or regular bus links.

Poringland is particularly popular with families, thanks to its strong educational offering. Poringland Primary School and Nursery is rated Good by Ofsted and enjoys an excellent local reputation. For older students, Framingham Earl High School sits just a few minutes away and provides a well-rounded secondary education.

Dining is a true pleasure here. Moments from your doorstep sits Caistor Hall, a Georgian country house now home to the Michelin-recommended restaurant by Mark Poynton. Its seasonal tasting menus draw food lovers from far and wide, all seeking that rare combination of exceptional cuisine and timeless surroundings.

And for something a little more laid-back yet equally special, The Wildebeest in Stoke Holy Cross offers contemporary dishes crafted with local flair, perfect for Sunday lunches, date nights, and everything in between.

On the edge of the village, the gentle rise of Stoke Hill provides panoramic views over the Norfolk countryside, ideal for reflective walks and golden-hour moments.

Poringland is more than a place to live. It’s a lifestyle, rural yet refined, peaceful yet well-connected. Whether you’re raising a family, downsizing in style, or seeking a countryside escape without compromising on quality, this vibrant village is ready to welcome you home.

Additional Information:

Tenure - Freehold
Council Tax Band - C
Local Authority - South Norfolk Council

We have been advised that the property is connected to mains water, electricity, and gas central heating.

Winkworth wishes to inform prospective buyers and tenants that these particulars are a guide and act as information only. All our details are given in good faith and believed to be correct at the time of printing but they don’t form part of an offer or contract. No Winkworth employee has authority to make or give any representation or warranty in relation to this property. All fixtures and fittings, whether fitted or not are deemed removable by the vendor unless stated otherwise and room sizes are measured between internal wall surfaces, including furnishings. The services, systems and appliances have not been tested, and no guarantee as to their operability or efficiency can be given.

Marketed by

Winkworth Poringland

Properties for sale in Poringland

Arrange a Viewing

Fill in the form below to arrange your property viewing.

This site is protected by reCAPTCHA and the Google Privacy Policy and Terms of Service apply.
Introduction text for the mortgage calculator

Mortgage Calculator

Fill in the details below to estimate your monthly repayments:

Approximate monthly repayment:

For more information, please contact Winkworth's mortgage partner, Trinity Financial, on +44 (0)20 7267 9399 and speak to the Trinity team.

Stamp Duty Calculator

Fill in the details below to estimate your stamp duty

The above calculator above is for general interest only and should not be relied upon

6/14
Front
Lounge
Lounge
Lounge
Kitchen
Kitchen
Kitchen
Kitchen
Conservatory
Bedroom 1
Bedroom 2
Bedroom 3
Bathroom
Rear
Garden
Garden

Meet the Team

With over 100 years of combined experience, our Poringland team offer unrivalled local knowledge and a genuine passion for property. Since opening in 2018, we’ve proudly supported more local schools, events and community initiatives than any other agent in the area — because community isn’t just part of what we do, it’s who we are. As market leaders, we’re committed to delivering exceptional service and care to every customer. Whether you’re buying, selling, renting, lettings or simply exploring your next move, pop into our office for a coffee and a warm welcome.

See all team members

Got a question about this property?

This site is protected by reCAPTCHA and the Google Privacy Policy and Terms of Service apply.

More Properties like this

Main Road, Filby, Great Yarmouth, Norfolk, NR29

OIRO £2,500,000 Freehold

Under Offer

Yarmouth Road, Ditchingham, Bungay, NR35

Guide Price £900,000 Freehold

Under Offer

Cranes Road, Hethel, Norwich, Norfolk, NR14

Guide Price £850,000 Freehold

New Instruction

Low Road, North Tuddenham, Dereham, Norfolk, NR20

Guide Price £800,000 Freehold

New Instruction

Green Fall, Poringland, Norwich, Norfolk, NR14

Offers in excess of £800,000 Freehold

Under Offer

Rectory Lane, Poringland, Norwich, Norfolk, NR14

OIRO £775,000 Freehold

Online Valuations Aren’t Worth The Paper They’re Printed On.

When online valuations don’t give you the whole picture - try Winkworth’s expert service. Get a free property appraisal. Accurate valuations from our local property experts. No obligation to list with Winkworth. Choose a time convenient for you with our online booking system.

Fill in your details and someone will be in touch soon:

You have provisionally booked a valuation for . Please confirm your details below

We don't have date info available for this property, but if you fill in your details below, someone will be in touch to arrange a date soon

Please fill in the required fields below marked with *

This site is protected by reCAPTCHA and the Google Privacy Policy and Terms of Service apply.