Skip to main content

MyWinkworth

Picture No. 08
Picture No. 09
Picture No. 12
Picture No. 11
Picture No. 13
Picture No. 10
Picture No. 05
Picture No. 04
Picture No. 07
Picture No. 06
Picture No. 03
Picture No. 14
6/14

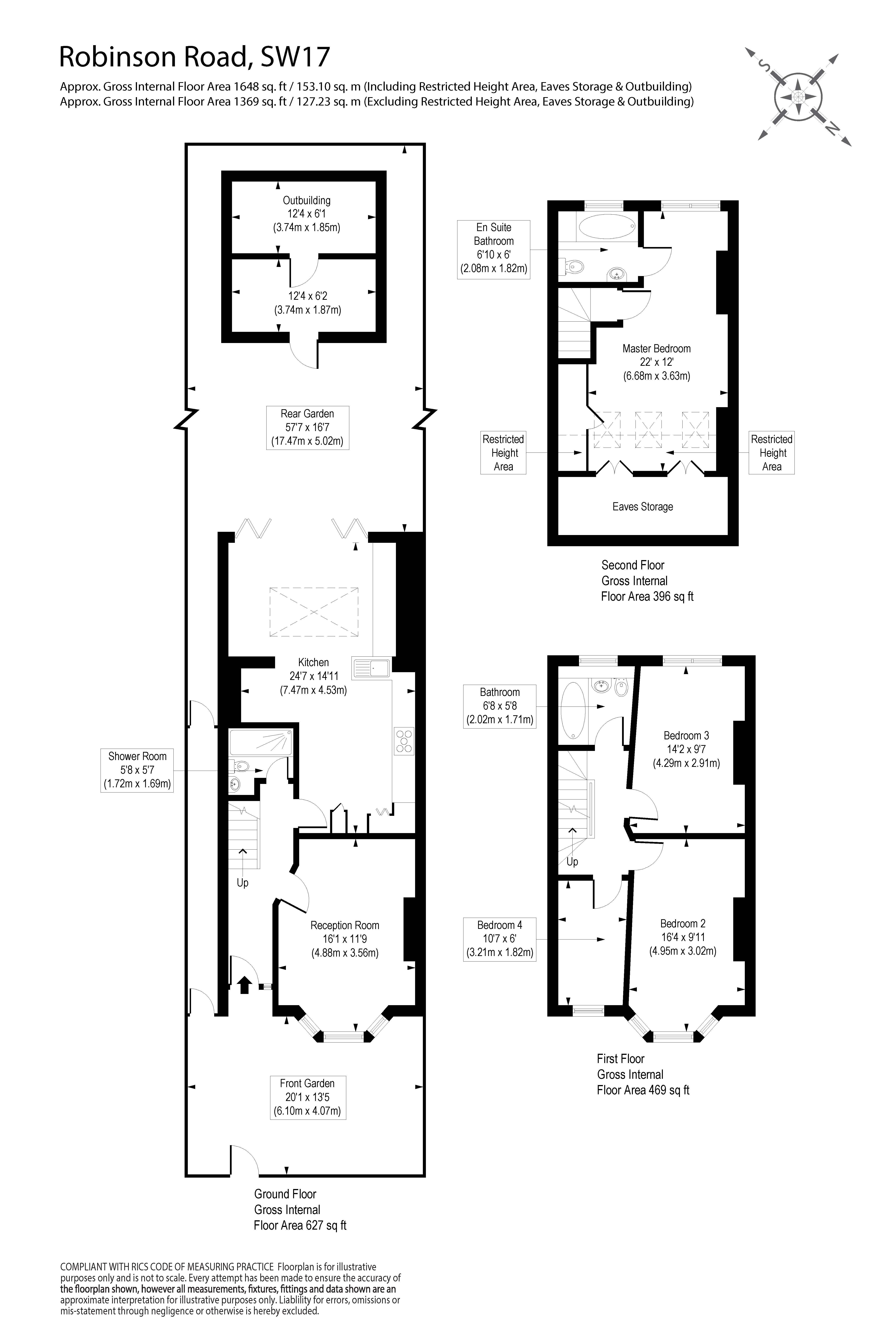
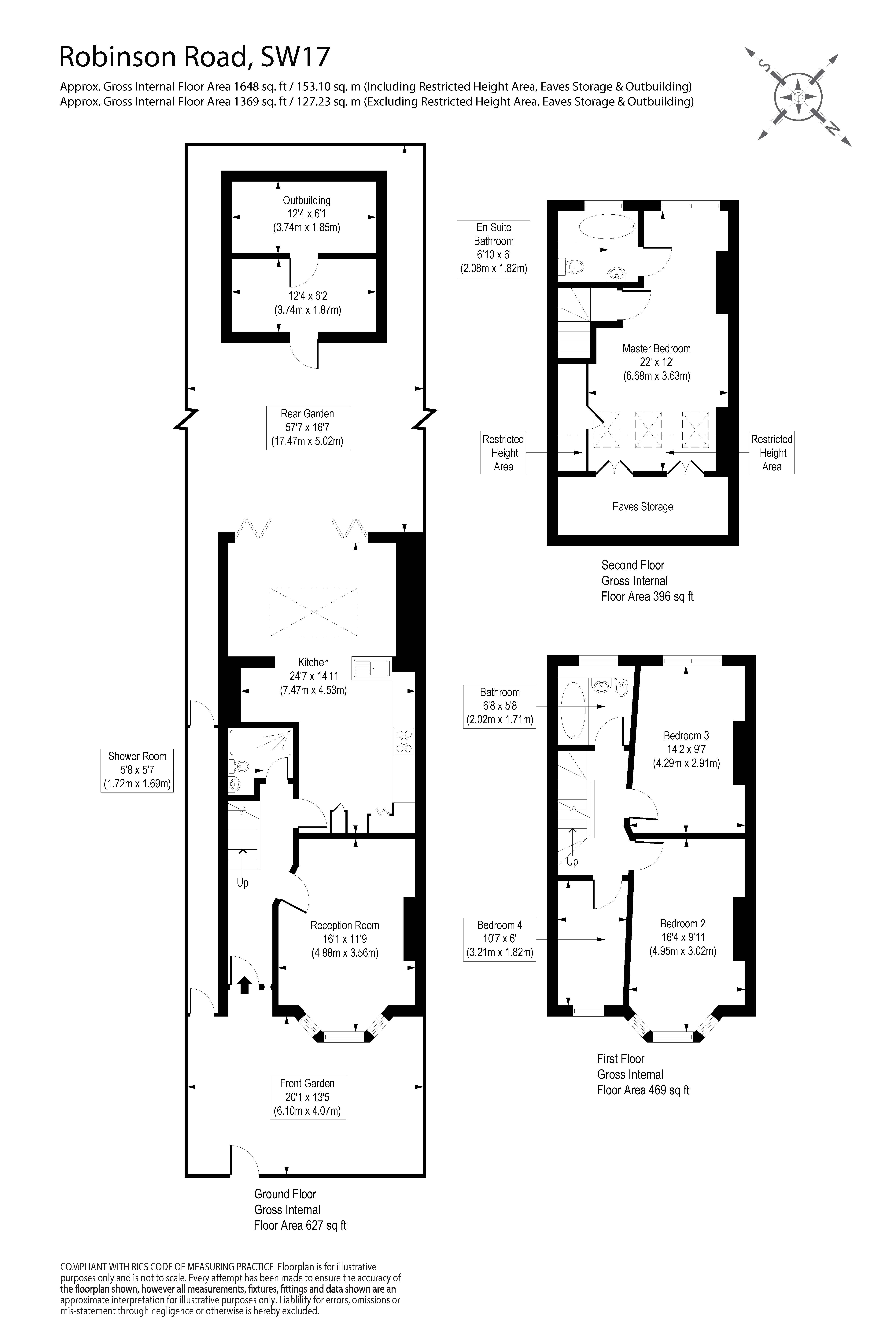
Robinson Road, London, SW17

4 bedroom house in London

£875,000 Freehold

  • Bedrooms 4
  • Bathrooms 2
  • Reception rooms 2
  • Dimensions 1648 sq ft
    153 sq m
  • Floorplan

PICTURES AND VIDEOS

KEY FEATURES

  • Chain Free
  • Freehold
  • 4 bedrooms
  • On-street parking
  • Private garden and patio space
  • Abundance of natual light
  • Ample storage options
  • Great decoration

KEY INFORMATION

  • Tenure: Freehold

Description

A spacious and well located period house with four double bedrooms and situated on a quiet residential road close to the station.

This charming house has been extended into the rear and loft and is arranged across 1648 sqft. Featuring a welcoming reception room with a feature fireplace, hard-wood flooring and single-glazed windows. The large open plan kitchen at the rear is well-equipped with a variety of wall and base units, integrated appliances, a breakfast bar, and floor-to-ceiling sliding doors leading to a generous private garden. A large and well built out-house in the garden is ideal for a home office or gym. The property also features four large bedrooms, all generously-sized, with ample storage, wooden flooring, and an abundance of natural light. The family bathrooms include stylish three-piece suite and tiled splashbacks.

Robinson Road, located in the heart of Tooting SW17, is a popular residential street known for its charming period properties and strong community feel. Just a short walk from Tooting Broadway Underground Station (0.6miles), the area offers excellent transport links into Central London via the Northern Line. Residents benefit from easy access to a vibrant selection of shops, cafes, and restaurants along Tooting High Street, as well as the bustling Tooting Market. The area is also well-served by local schools, parks, and healthcare facilities, making it a desirable location for professionals, families, and investors alike.

Marketed by

Winkworth Tooting

Properties for sale in Tooting

Arrange a Viewing

Fill in the form below to arrange your property viewing.

This site is protected by reCAPTCHA and the Google Privacy Policy and Terms of Service apply.
Introduction text for the mortgage calculator

Mortgage Calculator

Fill in the details below to estimate your monthly repayments:

Approximate monthly repayment:

For more information, please contact Winkworth's mortgage partner, Trinity Financial, on +44 (0)20 7267 9399 and speak to the Trinity team.

Stamp Duty Calculator

Fill in the details below to estimate your stamp duty

The above calculator above is for general interest only and should not be relied upon

6/14
Picture No. 08
Picture No. 09
Picture No. 12
Picture No. 11
Picture No. 13
Picture No. 10
Picture No. 05
Picture No. 04
Picture No. 07
Picture No. 06
Picture No. 03
Picture No. 14

Meet the Team

Our team at Winkworth Tooting Estate Agents are here to support and advise our customers when they need it most. We understand that buying, selling, letting or renting can be daunting and often emotionally meaningful. We are there, when it matters, to make the journey as stress-free as possible.

See all team members

Got a question about this property?

This site is protected by reCAPTCHA and the Google Privacy Policy and Terms of Service apply.

More Properties like this

Atkinson Close, London, SW20

£4,000,000 Freehold

Under Offer

Graveney Road, London, SW17

£1,050,000

Under Offer

Noyna Road, London, SW17

£1,000,000 Freehold

Under Offer

Fairlight Road, London, SW17

£940,000 Freehold

Under Offer

Fircroft Road, London, SW17

£900,000 Freehold

Under Offer

Ansell Road, London, SW17

£900,000 Freehold

Online Valuations Aren’t Worth The Paper They’re Printed On.

When online valuations don’t give you the whole picture - try Winkworth’s expert service. Get a free property appraisal. Accurate valuations from our local property experts. No obligation to list with Winkworth. Choose a time convenient for you with our online booking system.

Fill in your details and someone will be in touch soon:

You have provisionally booked a valuation for . Please confirm your details below

We don't have date info available for this property, but if you fill in your details below, someone will be in touch to arrange a date soon

Please fill in the required fields below marked with *

This site is protected by reCAPTCHA and the Google Privacy Policy and Terms of Service apply.