Skip to main content

MyWinkworth

Sold

Exterior Front
Reception Room
Principal Bedroom
Kitchen/Dining Room
Kitchen
Family Bathroom
Bedroom Two
Bedroom Three
Garden
Dining Room
6/14

Perran Road, London, SW2

4 bedroom house in London

£795,000 Freehold

  • Bedrooms 4
  • Bathrooms 1
  • Reception rooms 2
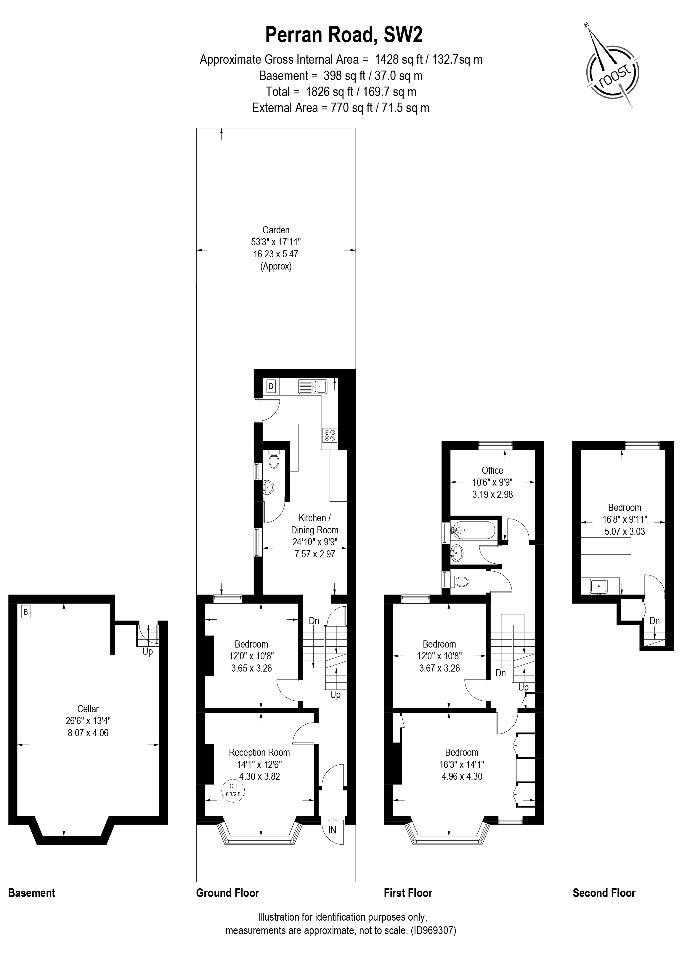
  • Dimensions 1428 sq ft
    132 sq m
  • Floorplan

PICTURES AND VIDEOS

KEY FEATURES

  • Victorian Terrace House
  • Two Reception Rooms
  • Kitchen/Dining Room
  • Downstairs WC
  • Large Basement
  • Four Double Bedrooms
  • Family Bathroom and a Separate WC
  • 50ft. Garden
  • Freehold
  • Lambeth Council Tax Band: E
  • Chain Free

KEY INFORMATION

  • Tenure: Freehold
  • Council Tax Band: E
  • Local Authority: Lambeth

Description

A fantastic opportunity to purchase a spacious, four double bedroom, Victorian house which is ideally located on a surprisingly quiet residential street in Tulse Hill, within walking distance of Tulse Hill Station, West Dulwich Station and the lovely Brockwell Park.

Available exclusively through Winkworth, the accommodation briefly comprises of: a welcoming hallway which leads onto a front reception room with a bay window, fireplace and high ceilings. The Second reception room has a window overlooking the side return/garden. The eat-in kitchen is located to the rear and is equipped with the usual appliances. There is also a downstairs WC with a wash hand basin. Access to the garden is granted through the kitchen/dining room onto the 50ft. garden. There is also a benefit of a large basement which has scope for further development STPP. Leading upstairs, there are three double bedrooms (one with fitted wardrobes) and a family bathroom with a separate a WC. On the top floor, there is a fourth double bedroom to the rear and there is potential for further development by adding a loft extension STPP. The property is offered chain free and early viewings are recommended!

Location

Tulse Hill
Introduction text for the mortgage calculator

Mortgage Calculator

Fill in the details below to estimate your monthly repayments:

Approximate monthly repayment:

For more information, please contact Winkworth's mortgage partner, Trinity Financial, on +44 (0)20 7267 9399 and speak to the Trinity team.

Stamp Duty Calculator

Fill in the details below to estimate your stamp duty

The above calculator above is for general interest only and should not be relied upon

6/14
Exterior Front
Reception Room
Principal Bedroom
Kitchen/Dining Room
Kitchen
Family Bathroom
Bedroom Two
Bedroom Three
Garden
Dining Room

Meet the Team

Our team at Winkworth Herne Hill Estate Agents are here to support and advise our customers when they need it most. We understand that buying, selling, letting or renting can be daunting and often emotionally meaningful. We are there, when it matters, to make the journey as stress-free as possible.

See all team members

Got a question about this property?

This site is protected by reCAPTCHA and the Google Privacy Policy and Terms of Service apply.

More Properties like this

Ferndene Road, London, SE24

Offers in excess of £1,500,000 Freehold

Kellett Road, London, SW2

Offers in excess of £1,400,000 Freehold

Under Offer

Romola Road, London, SE24

£1,350,000 Freehold

Endymion Road, London, SW2

Offers in excess of £1,300,000 Freehold

Mauleverer Road, London, SW2

£1,150,000 Freehold

Trinity Rise, London, SW2

£1,100,000 Freehold

Online Valuations Aren’t Worth The Paper They’re Printed On.

When online valuations don’t give you the whole picture - try Winkworth’s expert service. Get a free property appraisal. Accurate valuations from our local property experts. No obligation to list with Winkworth. Choose a time convenient for you with our online booking system.

Fill in your details and someone will be in touch soon:

You have provisionally booked a valuation for . Please confirm your details below

We don't have date info available for this property, but if you fill in your details below, someone will be in touch to arrange a date soon

Please fill in the required fields below marked with *

This site is protected by reCAPTCHA and the Google Privacy Policy and Terms of Service apply.