Norwich Road, Poringland, Norwich, Norfolk, NR14
3 bedroom house in Poringland
Guide Price £400,000 Freehold
- 3
- 2
- 1
PICTURES AND VIDEOS












KEY FEATURES
- Guide Price £400,000 - £425,000
- Brand New Home
- Architecturally & Individually Designed
- Energy Efficient Brand New Detached Home
- Large Driveway & Garage
- Kitchen With Integrated Appliances
- Prime Village Position
- Ample Dining Space In The Kitchen & A Separate WC
- Bespoke Kitchens & Bathrooms
- Walking Distance Of Local Amenities & Schools
- Easy Reach Of Norwich's City Centre
KEY INFORMATION
- Tenure: Freehold
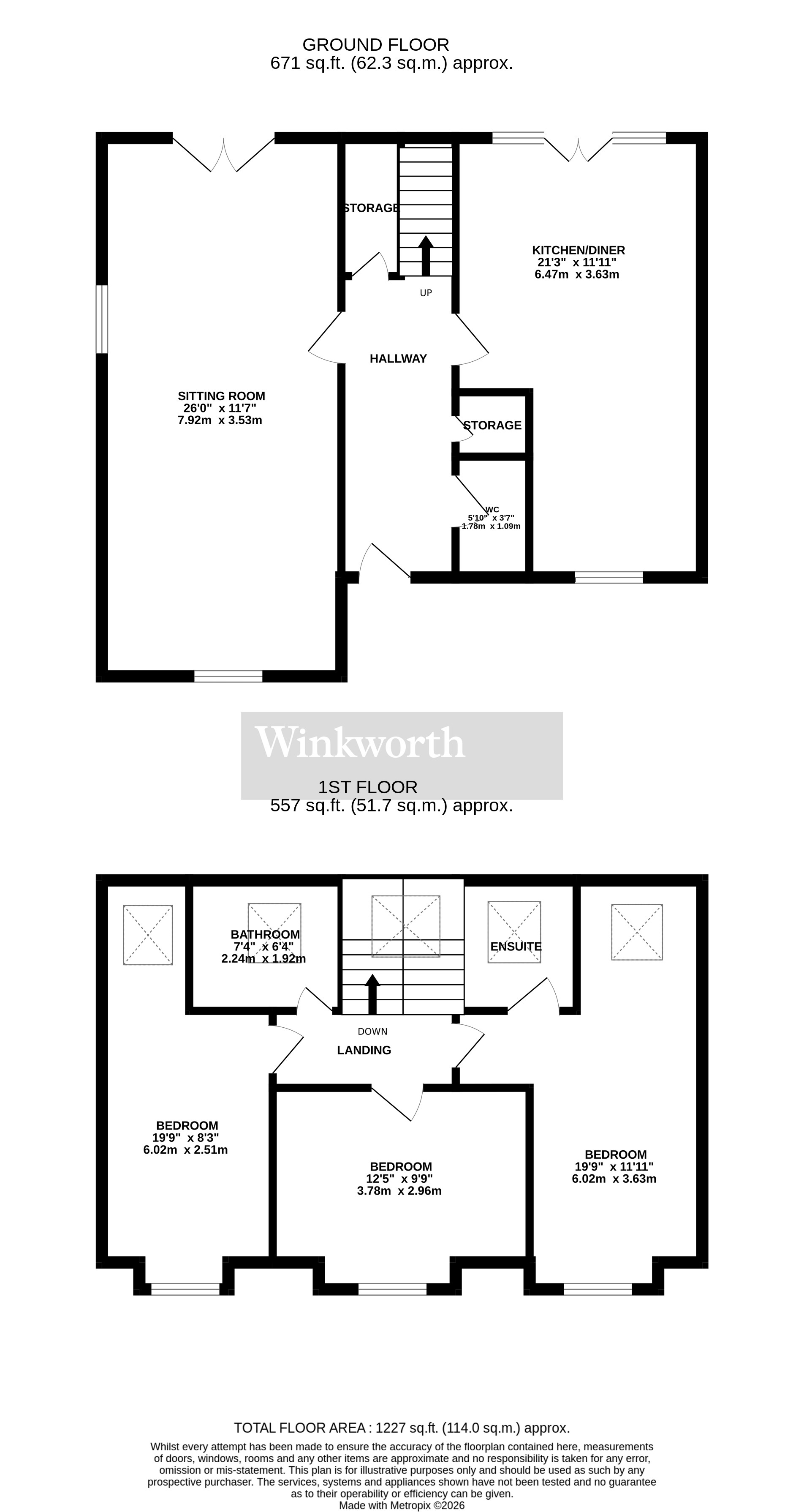
Description
This one-off property has been designed with modern living in mind and boasts exceptional high specifications throughout, creating a perfect blend of style and comfort.
As you step inside, you're greeted by a spacious and inviting open-plan kitchen diner, perfect for entertaining and family gatherings. The contemporary kitchen offers an abundance of space, natural light and ample worktop space, whilst seamlessly flowing into the dining area where light pours in through the windows and French doors. The separate living room offers a cozy retreat, ideal for relaxation. Designed with comfort in mind, this room is perfect for family movie nights or quiet evenings with a good book.
Upstairs, you will find three well-proportioned bedrooms, a modern family bathroom and the principal bedroom features an en-suite bathroom, elegantly designed with modern fixtures for a touch of luxury.
This exceptional home is a rare find, combining modern living with high-quality finishes, making it an ideal choice for families or professionals seeking a sophisticated lifestyle. Don’t miss the opportunity to make this exquisite property your own!
The thriving village of Poringland plays host to a selection of local amenities which include a supermarket, restaurant, shops and two pubs. Both the local primary and secondary schools are rated 'Good' by Ofsted and the village also benefits from two doctor surgeries, a private dental practice, a pharmacy and a community centre which features a library and cafe.
Council Tax Band - TBC
Local Authority - South Norfolk Council
We have been advised that the property is connected to mains water, electricity and gas.
Winkworth wishes to inform prospective buyers and tenants that these particulars are a guide and act as information only. All our details are given in good faith and believed to be correct at the time of printing, but they don’t form part of an offer or contract. No Winkworth employee has authority to make or give any representation or warranty in relation to this property. All fixtures and fittings, whether fitted or not are deemed removable by the vendor unless stated otherwise and room sizes are measured between internal wall surfaces, including furnishings. The services, systems and appliances have not been tested, and no guarantee as to their operability or efficiency can be given.
Marketed by
Winkworth Poringland
Properties for sale in PoringlandArrange a Viewing
Fill in the form below to arrange your property viewing.
Mortgage Calculator
Fill in the details below to estimate your monthly repayments:
Approximate monthly repayment:
For more information, please contact Winkworth's mortgage partner, Trinity Financial, on +44 (0)20 7267 9399 and speak to the Trinity team.
Stamp Duty Calculator
Fill in the details below to estimate your stamp duty
The above calculator above is for general interest only and should not be relied upon
Meet the Team
As the area's newest independent agent we bring with us 30 years of experience, and a love for what we do and the local community around us. Understanding the individual needs of our clients is paramount to who we are. Our newly built office is perfectly positioned within the Budgens complex. We have a modern and vibrant office that offers a warm welcome to our customers as well as providing the perfect setting to showcase our clients' homes. We would love to hear more about your plans to move so please pop in to the office for a coffee when passing. We look forward to meeting you.
See all team members