Skip to main content

MyWinkworth

New Instruction

Picture No. 25
Picture No. 08
Picture No. 22
Picture No. 07
Picture No. 26
Picture No. 15
Picture No. 13
Picture No. 19
Picture No. 05
Picture No. 11
Picture No. 16
Picture No. 17
Picture No. 21
Picture No. 20
Picture No. 12
Picture No. 06
Picture No. 23
Picture No. 24
Picture No. 09
Picture No. 10
Picture No. 04
Picture No. 14
6/14

Montpelier Row, Blackheath, London, SE3

4 bedroom house

Offers in excess of £1,250,000 Freehold

  • Bedrooms 4
  • Bathrooms 1
  • Reception rooms 2
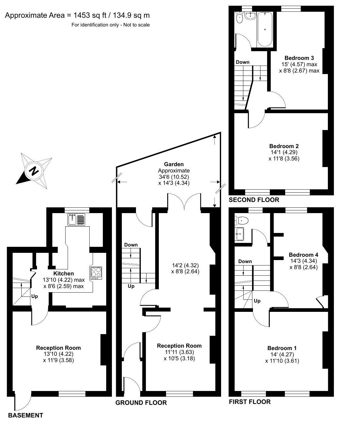
  • Floorplan

PICTURES AND VIDEOS

KEY FEATURES

  • four bedrooms
  • four storey
  • Georgian townhouse
  • two reception rooms
  • stunning views
  • seconds from Blackheath Station
  • Grade II listed

KEY INFORMATION

  • Tenure: Freehold
  • Council Tax Band: G
  • Local Authority: Lewisham

Description

A four bedroom, four storey Georgian home positioned in one of Blackheath’s most iconic terraces with enviable heath-fronting setting and far-reaching views across the open heath.



Set back from the road, the property is entered at hall floor level. Here, a generous double reception room enjoys excellent proportions, attractive wooden flooring and a large sash window framing the uninterrupted heath views, with French doors opening directly onto the rear garden. The kitchen and separate dining room occupy the lower level, the latter providing access to the front, an ideal arrangement for both everyday living and entertaining.

The upper two floors accommodate four well-balanced bedrooms, served by a tiled family bathroom and additional WC. Externally, the walled rear garden has been paved for ease of maintenance and offers a private retreat.

While the house would now benefit from modernisation, it presents a rare and exciting opportunity for an incoming purchaser to refurbish and create a truly special home, tailored entirely to their own taste and requirements, all within a distinguished Georgian setting overlooking the heath. Opportunities to acquire a four-bedroom house in such a prime position are exceptionally rare, particularly one offering such compelling value and scope.

Montpelier Row is a prestigious and sought after address nestled on the edge and directly facing the heath. It is in the heart of Blackheath Village with its array of boutique shops, farmers market, restaurants, bars and station. The fabulous Royal Greenwich Park is just over the heath with Greenwich town centre beyond. Greenwich is steeped in history from the old Royal Naval hospital, the Royal Observatory, the National Maritime museum, and the spectacularly restored Cutty Sark. Greenwich's covered market is one of London’s best and attracts people from all over the capital.

There are fantastic transport links with Blackheath Station giving access to London Bridge, Charing Cross and Victoria amongst others with access to the, DLR, bus, riverboat, foot tunnel and cable car all within the area. The area is minutes from Canary Wharf, the City and central London; Just one of the reasons why it's increasingly popular with young professionals and commuters. The O2 is also within easy reach.

Close by are several highly sought-after Independent Schools including; Blackheath Preparatory School, The Pointer School, Heath House Preparatory School, Blackheath High Junior School, Blackheath High Seniors School, Colfes (1.5 miles) and Eltham College (2.5 miles) as are the very sought after All Saints and John Ball primary schools.

Marketed by

Winkworth Blackheath

Properties for sale in Blackheath

Arrange a Viewing

Fill in the form below to arrange your property viewing.

This site is protected by reCAPTCHA and the Google Privacy Policy and Terms of Service apply.
Introduction text for the mortgage calculator

Mortgage Calculator

Fill in the details below to estimate your monthly repayments:

Approximate monthly repayment:

For more information, please contact Winkworth's mortgage partner, Trinity Financial, on +44 (0)20 7267 9399 and speak to the Trinity team.

Stamp Duty Calculator

Fill in the details below to estimate your stamp duty

The above calculator above is for general interest only and should not be relied upon

6/14
Picture No. 25
Picture No. 08
Picture No. 22
Picture No. 07
Picture No. 26
Picture No. 15
Picture No. 13
Picture No. 19
Picture No. 05
Picture No. 11
Picture No. 16
Picture No. 17
Picture No. 21
Picture No. 20
Picture No. 12
Picture No. 06
Picture No. 23
Picture No. 24
Picture No. 09
Picture No. 10
Picture No. 04
Picture No. 14

Meet the Team

As one of the oldest estate agents in Blackheath, ranked no 1 for both sales and lettings, our local knowledge and expertise is second to none. Our recently refurbished flagship office is found in the heart of the Village, directly opposite Blackheath Station, where you can call in for advice seven days a week.

See all team members

Got a question about this property?

This site is protected by reCAPTCHA and the Google Privacy Policy and Terms of Service apply.

More Properties like this

Video Tour

Montpelier Row, Blackheath, London, SE3

Guide Price £3,000,000 Freehold

Video Tour

Shooters Hill Road, Blackheath, London, SE3

OIRO £2,500,000 Freehold

Video Tour

Shooters Hill Road, Blackheath, London, SE3

OIRO £2,250,000 Freehold

Video Tour

Under Offer

Manor Way, Blackheath, London, SE3

£2,250,000 Freehold

Virtual Tour

Under Offer

Westcombe Park Road, Blackheath, London, SE3

Guide Price £2,000,000 Freehold

North Park, Eltham, London, SE9

£2,000,000 Freehold

Online Valuations Aren’t Worth The Paper They’re Printed On.

When online valuations don’t give you the whole picture - try Winkworth’s expert service. Get a free property appraisal. Accurate valuations from our local property experts. No obligation to list with Winkworth. Choose a time convenient for you with our online booking system.

Fill in your details and someone will be in touch soon:

You have provisionally booked a valuation for . Please confirm your details below

We don't have date info available for this property, but if you fill in your details below, someone will be in touch to arrange a date soon

Please fill in the required fields below marked with *

This site is protected by reCAPTCHA and the Google Privacy Policy and Terms of Service apply.