Skip to main content

MyWinkworth

Sold

Picture No. 04
Picture No. 09
Picture No. 06
Picture No. 12
Picture No. 11
Picture No. 13
Picture No. 05
Picture No. 07
Picture No. 14
Picture No. 08
Picture No. 10
6/14

Lucerne Road, London, N5

2 bedroom maisonette in London

£875,000 Share of Freehold

  • Bedrooms 2
  • Bathrooms 1
  • Reception rooms 1
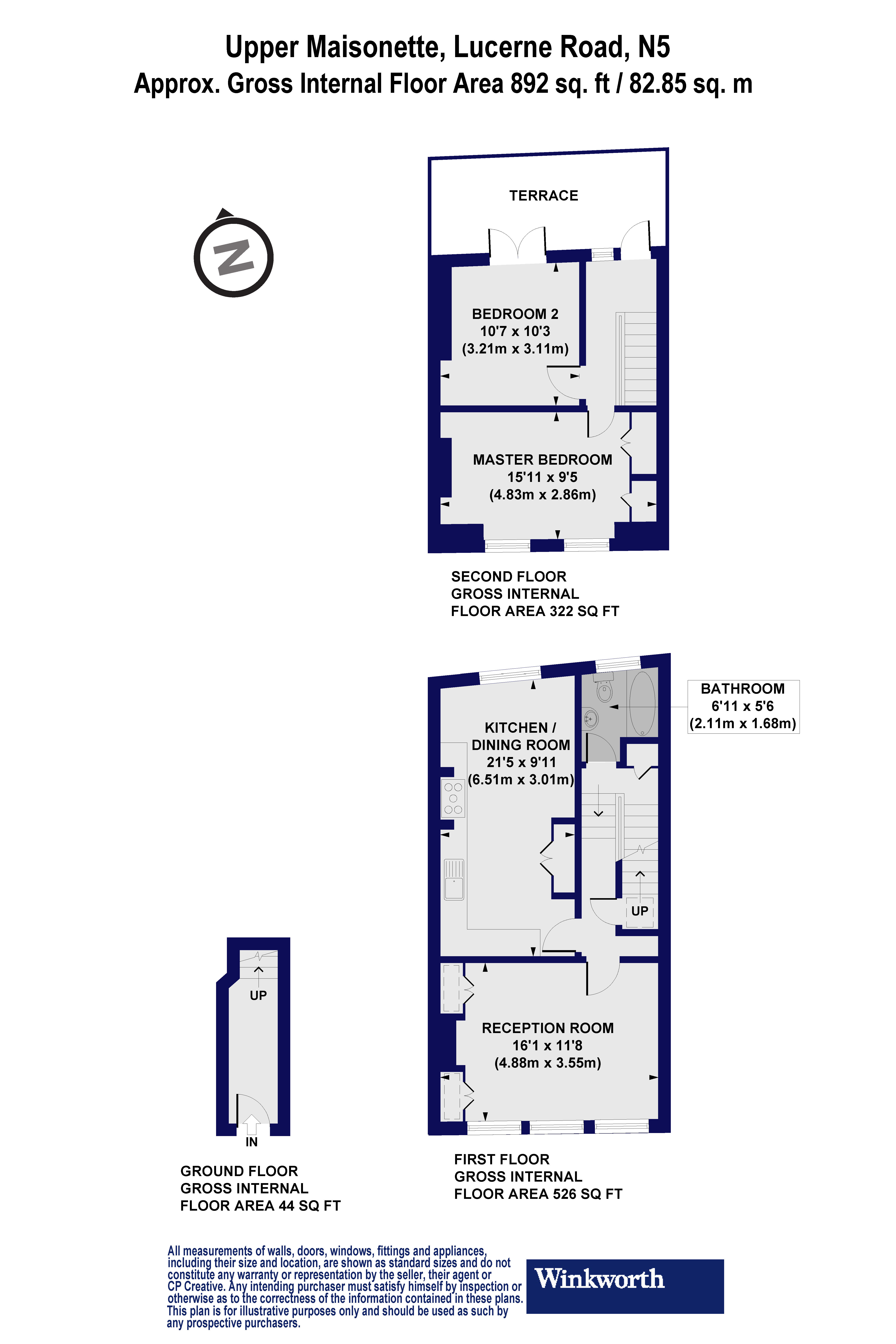
  • Floorplan

PICTURES AND VIDEOS

KEY INFORMATION

  • Tenure: Share of Freehold
  • Council Tax Band: E
  • Local Authority: Islington Council

Description

A sensational, two double bedroom maisonette positioned on a beautiful, tree lined street in Highbury, N5. Standing close to 900 sqft, after entering through your own front door on the raised ground floor, you are welcomed into a stunning, south facing living room spanning the full width of the building. The rear of the first floor occupies a spacious kitchen with ample dining space creating the perfect entertaining area. Both bedrooms on the top floor are genuine doubles, while the property is completed with a peaceful terrace overlooking neighbouring gardens and a modern family bathroom.
Lucerne Road is set moments from Highbury Fields and the cafes and independent shops on Highbury Barn. The high street shops, bars and restaurants on Upper Street are within easy reach whilst there is also a fantastic selection of transport links. Arsenal offers the closest underground links on the Piccadilly line whilst Highbury and Islington provides the Victoria line and overground services. Easy access to Moorgate is facilitated from Drayton Park and a selection of superb bus links offer easy access across London.
Introduction text for the mortgage calculator

Mortgage Calculator

Fill in the details below to estimate your monthly repayments:

Approximate monthly repayment:

For more information, please contact Winkworth's mortgage partner, Trinity Financial, on +44 (0)20 7267 9399 and speak to the Trinity team.

Stamp Duty Calculator

Fill in the details below to estimate your stamp duty

The above calculator above is for general interest only and should not be relied upon

6/14
Picture No. 04
Picture No. 09
Picture No. 06
Picture No. 12
Picture No. 11
Picture No. 13
Picture No. 05
Picture No. 07
Picture No. 14
Picture No. 08
Picture No. 10

Meet the Team

From our office on Highbury Park, we pride ourselves on our unrivalled local knowledge. Many of the team here at Winkworth Highbury Estate Agents live locally and whether it's sales, lettings or property management, we're always striving to provide an unparalleled service and tailor it to your exacting needs.

See all team members

Got a question about this property?

This site is protected by reCAPTCHA and the Google Privacy Policy and Terms of Service apply.

More Properties like this

Under Offer

Alexandra Grove, London, N4

Offers over £1,150,000 Share of Freehold

Under Offer

Mountgrove Road, London, N5

Offers in excess of £1,150,000 Leasehold

Under Offer

Wilberforce Road, Highbury, London, N4

£1,100,000 Leasehold

Under Offer

Aberdeen Road, London, N5

£1,000,000 Leasehold

Benwell Road, London, N7

£875,000 Leasehold

St. Thomas's Road, London, N4

Offers in excess of £800,000 Share of Freehold

Online Valuations Aren’t Worth The Paper They’re Printed On.

When online valuations don’t give you the whole picture - try Winkworth’s expert service. Get a free property appraisal. Accurate valuations from our local property experts. No obligation to list with Winkworth. Choose a time convenient for you with our online booking system.

Fill in your details and someone will be in touch soon:

You have provisionally booked a valuation for . Please confirm your details below

We don't have date info available for this property, but if you fill in your details below, someone will be in touch to arrange a date soon

Please fill in the required fields below marked with *

This site is protected by reCAPTCHA and the Google Privacy Policy and Terms of Service apply.