Skip to main content

MyWinkworth

Under Offer

Picture No. 09
Picture No. 02
Picture No. 10
Picture No. 03
Picture No. 11
Picture No. 07
Picture No. 04
Picture No. 08
Picture No. 06
Picture No. 01
Picture No. 05
6/14

Longridge Road, Bourne, Lincolnshire, PE10

3 bedroom house in Bourne

Offers in excess of £250,000 Freehold

  • Bedrooms 3
  • Bathrooms 2
  • Reception rooms 2
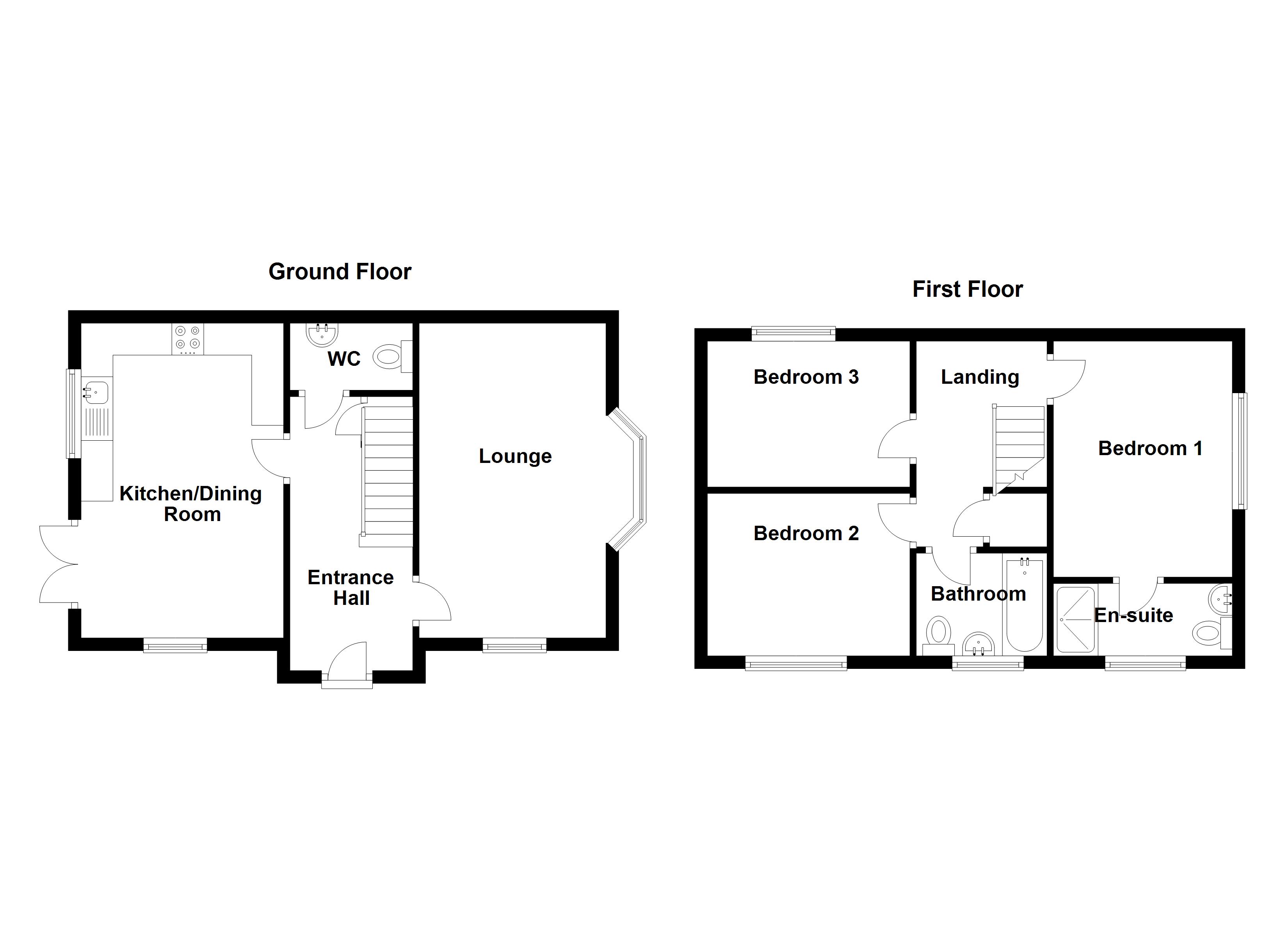
  • Floorplan

PICTURES AND VIDEOS

KEY INFORMATION

  • Tenure: Freehold
  • Council Tax Band: C
  • Local Authority: South Kesteven

Description

A superbly presented three bedroom detached home offered for sale with no ongoing chain. The property is located on the popular Elsea Park development benefiting from, entrance hall with cloakroom off, lounge with bay window and lovely modern fitted kitchen/dining room. On the first floor there is a master bedroom with en-suite, two further bedrooms and family bathroom. The property also benefits from gas central heating to radiators and upvc double glazed windows. Outside there is a driveway to the side providing off road parking and to the rear a fully enclosed part walled garden. Please call 01778 392807 for more information.

Rooms and Accommodations

  • Entrance Hall
  • Downstairs Cloakroom
  • Lounge
  • 4.85m x 3.48m
  • Kitchen/Dining Room
  • 4.85m x 3.12m
  • First Floor Landing
  • Bedroom One
  • 3.56m x 2.95m
  • En-Suite Shower Room
  • Bedroom Two
  • 3.18m x 2.4m
  • Bedroom Three
  • 3.18m x 2.36m
  • Family Bathroom
  • Agents Note
  • BUYER IDENTITY CHECK
    Please note that prior to acceptance of any offer, Waldeck Snarey & Brown ( Bourne) LLP t/a Winkworth are required to verify the identity of the buyer to comply with the requirements of the Money
    Laundering, Terrorist Financing and Transfer of Funds (Information on the Payer) Regulations 2017. We are most grateful for your assistance with this.
Introduction text for the mortgage calculator

Mortgage Calculator

Fill in the details below to estimate your monthly repayments:

Approximate monthly repayment:

For more information, please contact Winkworth's mortgage partner, Trinity Financial, on +44 (0)20 7267 9399 and speak to the Trinity team.

Stamp Duty Calculator

Fill in the details below to estimate your stamp duty

The above calculator above is for general interest only and should not be relied upon

6/14
Picture No. 09
Picture No. 02
Picture No. 10
Picture No. 03
Picture No. 11
Picture No. 07
Picture No. 04
Picture No. 08
Picture No. 06
Picture No. 01
Picture No. 05

Meet the Team

Our team are here to support and advise our customers when they need it most. We understand that buying, selling, letting or renting can be daunting and often emotionally meaningful. We are there, when it matters, to make the journey as stress-free as possible.

See all team members

Got a question about this property?

This site is protected by reCAPTCHA and the Google Privacy Policy and Terms of Service apply.

More Properties like this

Under Offer

Swallow Hill, Thurlby, Bourne, Lincolnshire, PE10

£685,000 Freehold

Lound, Bourne, PE10

£625,000 Freehold

High Street, Horbling, Sleaford, Lincolnshire, NG34

£625,000 Freehold

Saxon Way, Bourne, PE10

£550,000 Freehold

Under Offer

Mill Drove, Bourne, Lincolnshire, PE10

Offers in excess of £550,000 Freehold

Main Road, Dowsby, Bourne, PE10

£550,000 Freehold

Online Valuations Aren’t Worth The Paper They’re Printed On.

When online valuations don’t give you the whole picture - try Winkworth’s expert service. Get a free property appraisal. Accurate valuations from our local property experts. No obligation to list with Winkworth. Choose a time convenient for you with our online booking system.

Fill in your details and someone will be in touch soon:

You have provisionally booked a valuation for . Please confirm your details below

We don't have date info available for this property, but if you fill in your details below, someone will be in touch to arrange a date soon

Please fill in the required fields below marked with *

This site is protected by reCAPTCHA and the Google Privacy Policy and Terms of Service apply.