Skip to main content

MyWinkworth

New Instruction

Riverview House
Kitchen/Living Room
Kitchen/Living Room
Kitchen/Living Room
Bedroom
Bedroom
Shower Room
Shower Room
Shower Room
Outlook
Outlook
Riverview House
6/14

London Road, Old Basing, Hampshire, RG24

1 bedroom flat/apartment in Old Basing

£175,000 Leasehold

  • Bedrooms 1
  • Bathrooms 1
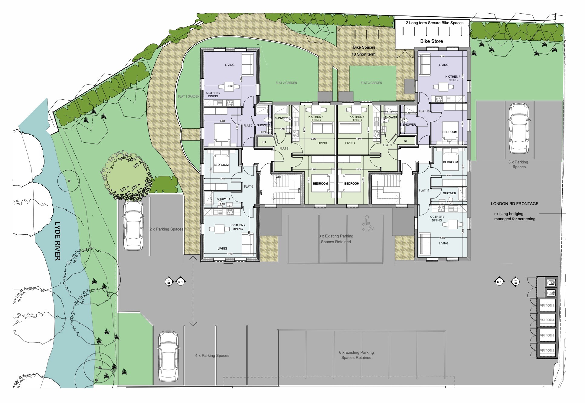
  • Floorplan

PICTURES AND VIDEOS

KEY FEATURES

  • New Apartment
  • Hallway
  • Kitchen/Living Room
  • Bedroom
  • Shower Room
  • One Allocated Parking Space
  • Communal Gardens

KEY INFORMATION

  • Tenure: Leasehold
  • Lease Length: 998 yrs left
  • Local Authority: Basingstoke & Deane Borough Council

Description

Winkworth Land and New Homes are delighted to announce this development by local builders 4DS Construction Ltd. Riverview House is a development of 17 apartments comprising eight new build and nine conversions within an established building. All will benefit from an allocated parking space and outside communal gardens.

Winkworth Land and New Homes are delighted to announce this development by local builders 4DS Construction Ltd.

Riverview House is a development of 17 apartments comprising eight new build and nine conversions within an established building. All will benefit from an allocated parking space and outside communal gardens.

Riverview House is located in Hatch to the southerly edge of the historic village of Old Basing, mentioned in the Domesday Book, site of a battle between the Vikings and Alfred (later king) and in 1645, a major battle of the English Civil War.

Property is all about location and transport links. Riverview House is ideal in this respect with Old Basing village bakery, coffee shop, Co-Op store, health centre/pharmacy, hairdressers and post office - along with four local hostelries - all under a ten-minute walk. Old Basing boasts easy 10 -minute vehicular access to Basingstoke as well as a convenient bus route; a stroll into the town takes a little over 40 minutes. For more extensive shopping, the Chineham Centre shopping complex is less than a ten-minute drive away

Old Basing also enjoys two schools - Old Basing Infant School & St. Marys CofE Junior School again, only a short walk.

Further transport links to the south and south-west, London and Reading are all excellent having easy access to both M3 & M4; the main-line rail station in the town provides 50 minute services to London Waterloo.

All the properties will be built to the ‘4DS Standard’; the highest level of finish. Your new home will be furnished with fitted appliances and floorcoverings throughout

Full floor plans, and CGI examples of finishes are available upon request.

To register your interest, please contact [email protected] or call on 01256 811730

Marketed by

Winkworth Basingstoke

Properties for sale in Basingstoke

Arrange a Viewing

Fill in the form below to arrange your property viewing.

This site is protected by reCAPTCHA and the Google Privacy Policy and Terms of Service apply.
Introduction text for the mortgage calculator

Mortgage Calculator

Fill in the details below to estimate your monthly repayments:

Approximate monthly repayment:

For more information, please contact Winkworth's mortgage partner, Trinity Financial, on +44 (0)20 7267 9399 and speak to the Trinity team.

Stamp Duty Calculator

Fill in the details below to estimate your stamp duty

The above calculator above is for general interest only and should not be relied upon

6/14
Riverview House
Kitchen/Living Room
Kitchen/Living Room
Kitchen/Living Room
Bedroom
Bedroom
Shower Room
Shower Room
Shower Room
Outlook
Outlook
Riverview House

Meet the Team

Our team at Winkworth Basingstoke Estate Agents are here to support and advise our customers when they need it most. We understand that buying, selling, letting or renting can be daunting and often emotionally meaningful. We are there, when it matters, to make the journey as stress-free as possible.

See all team members

Got a question about this property?

This site is protected by reCAPTCHA and the Google Privacy Policy and Terms of Service apply.

Online Valuations Aren’t Worth The Paper They’re Printed On.

When online valuations don’t give you the whole picture - try Winkworth’s expert service. Get a free property appraisal. Accurate valuations from our local property experts. No obligation to list with Winkworth. Choose a time convenient for you with our online booking system.

Fill in your details and someone will be in touch soon:

You have provisionally booked a valuation for . Please confirm your details below

We don't have date info available for this property, but if you fill in your details below, someone will be in touch to arrange a date soon

Please fill in the required fields below marked with *

This site is protected by reCAPTCHA and the Google Privacy Policy and Terms of Service apply.