Skip to main content

MyWinkworth

New Instruction

Front External
Through Lounge
Kitchen
Annex Kitchen
Annex
Annex Shower Room
Bedroom 1
Bedroom 2
Bedroom 3
Bathroom
Rear External
Rear External
6/14

Lodore Gardens, Kingsbury, London, NW9

5 bedroom house in Kingsbury

£650,000 Leasehold

  • Bedrooms 5
  • Bathrooms 2
  • Reception rooms 2
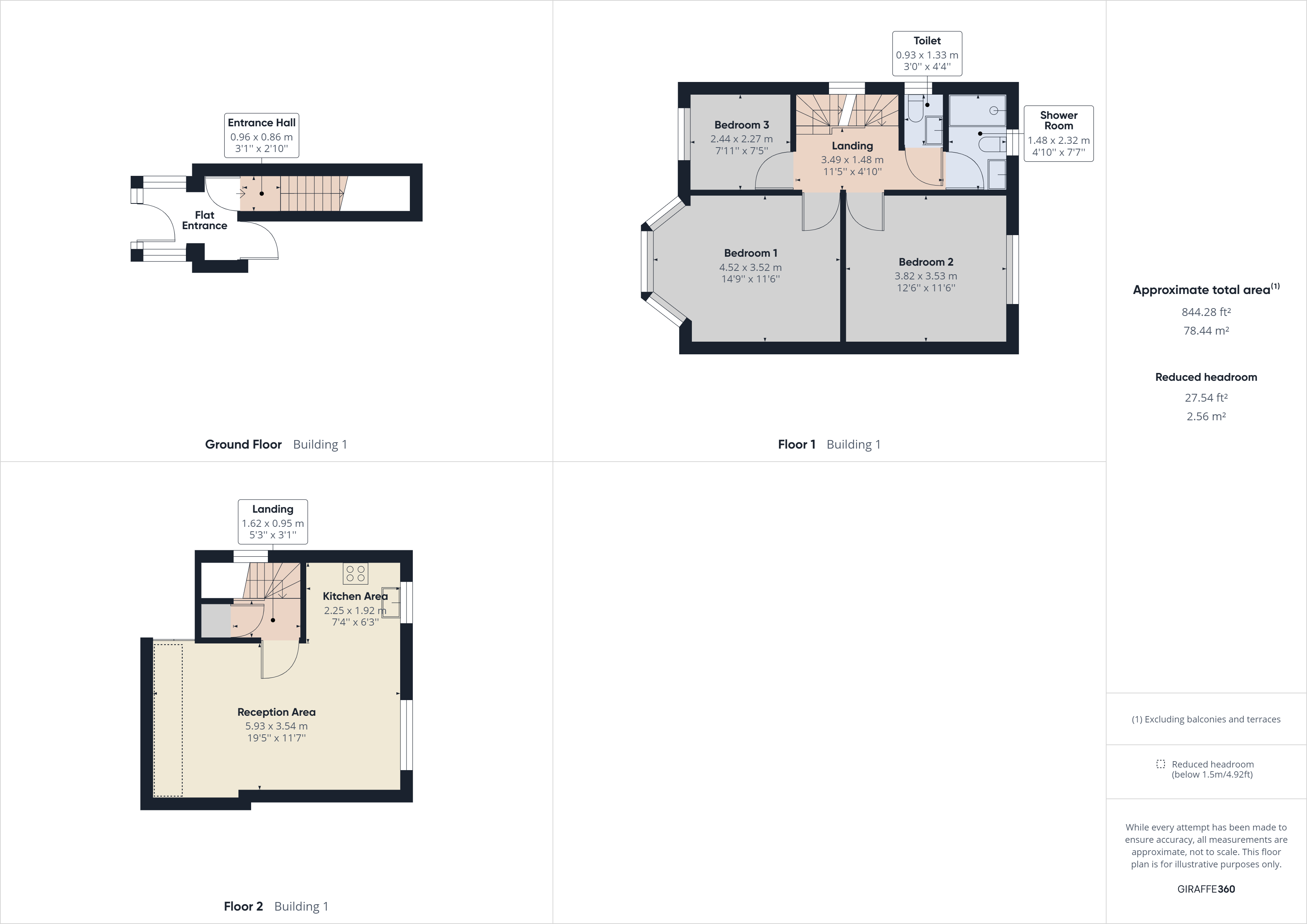
  • Dimensions 844 sq ft
    78 sq m
  • Floorplan

PICTURES AND VIDEOS

KEY FEATURES

  • FIVE BEDROOMS
  • LONG LEASE
  • ANNEXE
  • EXTENDED
  • OFF STREET PARKING
  • SCOPE FOR FURTHER EXTENSION (STPP)

KEY INFORMATION

  • Tenure: Leasehold
  • Lease Length: 903 yrs left
  • Council Tax Band: E
  • Local Authority: London Borough Of Brent

Description

This full-of-potential five-bedroom family home is perfectly located in the highly sought-after Lodore Gardens. The property offers a bright and spacious open-plan lounge and dining area, which flows seamlessly through French doors to the garden, along with a separate, fully equipped kitchen.
To the side, the home benefits from a self-contained annexe, created through an extension into the garage. This provides two ground-floor bedrooms and a shower room, making it ideal for multi-generational living or guest accommodation.
The first floor hosts three well-proportioned bedrooms alongside a modern family bathroom.
Additional advantages include off-street parking and excellent potential for further extensions (STPP), making this an attractive option for the growing modern family.
Please note: the photographs were taken prior to the current tenancy and may not reflect the property’s present appearance. The property will be sold with vacant possession.

Rooms and Accommodations

  • Porch
  • 1.2m x 1.6m
  • Reception Room
  • 3.94m x 3.43m
  • Reception Room
  • 4.67m x 3.28m
  • Kitchen
  • 2.9m x 1.83m
  • Bedroom 4
  • 3.94m x 2.95m
  • Bedroom 5
  • 3.89m x 2.44m
  • Shower Room
  • 1.75m x 1.37m
  • Landing
  • 2.46m x 0.94m
  • Bedroom 1
  • 4.85m x 3.25m
  • Bedroom 2
  • 4.17m x 3.3m
  • Bedroom 3
  • 2.95m x 1.78m
  • Bathroom
  • 1.75m x 1.73m

Marketed by

Winkworth Kingsbury

Properties for sale in Kingsbury

Arrange a Viewing

Fill in the form below to arrange your property viewing.

This site is protected by reCAPTCHA and the Google Privacy Policy and Terms of Service apply.
Introduction text for the mortgage calculator

Mortgage Calculator

Fill in the details below to estimate your monthly repayments:

Approximate monthly repayment:

For more information, please contact Winkworth's mortgage partner, Trinity Financial, on +44 (0)20 7267 9399 and speak to the Trinity team.

Stamp Duty Calculator

Fill in the details below to estimate your stamp duty

The above calculator above is for general interest only and should not be relied upon

6/14
Front External
Through Lounge
Kitchen
Annex Kitchen
Annex
Annex Shower Room
Bedroom 1
Bedroom 2
Bedroom 3
Bathroom
Rear External
Rear External

Meet the Team

Our team here at Winkworth Kingsbury Estate Agents have over 25 years' experience in the Kingsbury area - an area we know like the back of our hands. Our aim is to simply offer a service beyond all others. Our way is the Winkworth way, “We See Things Differently"

See all team members

Got a question about this property?

This site is protected by reCAPTCHA and the Google Privacy Policy and Terms of Service apply.

More Properties like this

Virtual Tour

Salmon Street, Kingsbury, London, NW9

£1,250,000 Freehold

Virtual Tour

Under Offer

Wembley Park Drive, Wembley, Middlesex, HA9

£1,200,000 Freehold

Under Offer

Queens Walk, Kingsbury, London, NW9

Offers in excess of £1,187,000 Freehold

Virtual Tour

New Instruction

Salmon Street, Kingsbury, London, NW9

£1,100,000 Freehold

Virtual Tour

Under Offer

Kenton Park Crescent, Harrow, Middlesex, HA3

Guide Price £950,000 Freehold

Virtual Tour

Green Lane, Edgware, Middlesex, HA8

OIRO £950,000 Freehold

Online Valuations Aren’t Worth The Paper They’re Printed On.

When online valuations don’t give you the whole picture - try Winkworth’s expert service. Get a free property appraisal. Accurate valuations from our local property experts. No obligation to list with Winkworth. Choose a time convenient for you with our online booking system.

Fill in your details and someone will be in touch soon:

You have provisionally booked a valuation for . Please confirm your details below

We don't have date info available for this property, but if you fill in your details below, someone will be in touch to arrange a date soon

Please fill in the required fields below marked with *

This site is protected by reCAPTCHA and the Google Privacy Policy and Terms of Service apply.