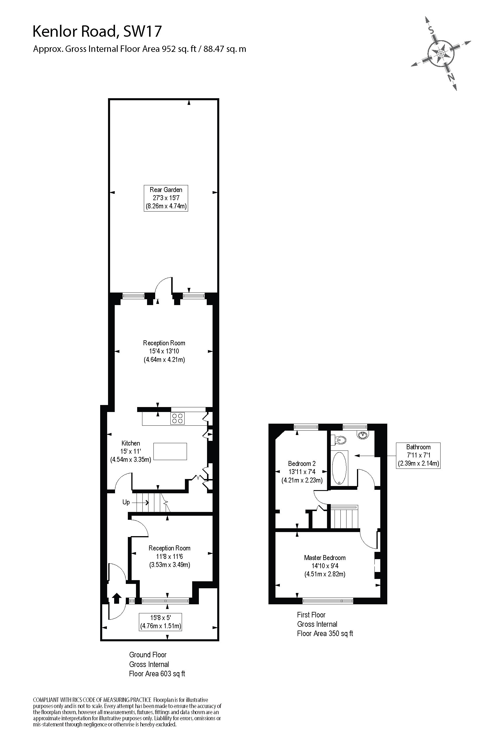
Kenlor Road, London, SW17
2 bedroom house in London
£675,000 Freehold
- 2
- 1
- 2
- 
                            
                            952 sq ft
 88 sq m
- 
                        
                        
PICTURES AND VIDEOS
 
                             
                             
                             
                             
                             
                             
                             
                             
                             
                             
                             
                             
                             
                            KEY FEATURES
- Two Double Bedrooms
- Kitchen Diner
- Garden
KEY INFORMATION
- Tenure: Freehold
Description
The reception room showcases double-glazed windows, original wood flooring, and a feature fireplace, creating a cozy yet elegant space. The kitchen preserves its original flooring and features a range of modern wall and base units, built-in cupboards, half-tiled walls, integrated appliances, a cast-iron central island workstation, and a charming period fireplace.
Beyond the kitchen lies a beautifully presented dining area with engineered wood flooring with underfloor heating, exposed brickwork, and ceiling beams. Striking floor-to-ceiling windows flood the room with light and provide views of the garden, while a matching door opens directly onto the rear garden — an ideal setting for relaxation or entertaining guests.
Upstairs, the property offers two spacious double bedrooms, each featuring double-glazed windows and painted original wood flooring. The bathroom is finished with tiled flooring and a half-tiled splashback, complemented by a modern three-piece bathroom suite with contemporary fixtures and fittings. This property also presents the potential for a loft conversion, subject to obtaining the necessary planning permissions.
Kenlor Road in SW17 enjoys a prime location close to the lively centre of Tooting Broadway while maintaining a more peaceful, residential feel. The street is lined with traditional period terraces, giving it plenty of charm and character. Just a short walk away is Tooting Broadway Underground station (0.4miles) on the Northern Line, providing fast links into central London, while Colliers Wood (0.5miles) is also within easy reach. For overground services, both Wimbledon, Tooting and Balham stations are nearby, offering further connections across the city. Excellent bus routes run along Tooting High Street, making travel around south London simple and convenient. With Tooting Market, an abundance of cafés and restaurants, and green spaces such as Tooting Bec Common close by, the area combines strong transport links with a vibrant local atmosphere.
Wandsworth Council Tax Band: D
Marketed by
Winkworth Tooting
Properties for sale in TootingArrange a Viewing
Fill in the form below to arrange your property viewing.
Mortgage Calculator
Fill in the details below to estimate your monthly repayments:
Approximate monthly repayment:
For more information, please contact Winkworth's mortgage partner, Trinity Financial, on +44 (0)20 7267 9399 and speak to the Trinity team.
Stamp Duty Calculator
Fill in the details below to estimate your stamp duty
The above calculator above is for general interest only and should not be relied upon
Meet the Team
Our team at Winkworth Tooting Estate Agents are here to support and advise our customers when they need it most. We understand that buying, selling, letting or renting can be daunting and often emotionally meaningful. We are there, when it matters, to make the journey as stress-free as possible.
See all team members 
                     
                                                 
                                                 
                                                 
                                                 
                                                