Skip to main content

MyWinkworth

New Instruction

Picture No. 10
Picture No. 16
Picture No. 17
Picture No. 26
Picture No. 25
Picture No. 09
Picture No. 03
Picture No. 12
Picture No. 05
Picture No. 13
Picture No. 28
Picture No. 07
Picture No. 11
Picture No. 02
Picture No. 27
Picture No. 18
Picture No. 21
Picture No. 24
Picture No. 04
Picture No. 06
Picture No. 08
Picture No. 14
Picture No. 15
6/14

Hyde Vale, Greenwich, London, SE10

4 bedroom house

£1,600,000 Freehold

  • Bedrooms 4
  • Bathrooms 2
  • Reception rooms 2
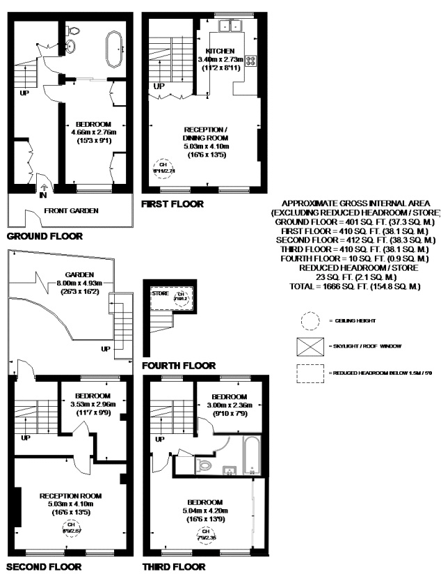
  • Floorplan

PICTURES AND VIDEOS

KEY FEATURES

  • four bedroom family home
  • Neo-Georgian
  • superb condition
  • circa 1,666 sq ft
  • outstanding West Greenwich location

KEY INFORMATION

  • Tenure: Freehold
  • Council Tax Band: G
  • Local Authority: Greenwich Council

Description

A beautifully presented four-bedroom mock Georgian style townhouse, arranged over four floors and extending to approximately 1,666 sq ft, positioned on one of West Greenwich’s most coveted roads.



The current owners have enhanced the house superbly, with tasteful finishes throughout including recently installed bespoke windows and bespoke radiator covers, feature radiators and double glazed timber-framed sash windows, creating a home that feels both elegant and effortlessly liveable and fitted cupboards in the entrance hall.

On the ground floor there is an excellent guest bedroom / additional reception (ideal for visiting family or older children wanting their own space), alongside a striking family bathroom with a roll-top bath and beautiful detailing.
The first floor is set up perfectly for day-to-day living and entertaining, with a generous kitchen and dining area offering excellent storage and worktop space, and a lovely sense of light and flow.
The second floor provides a spacious reception room, a calm and comfortable space to unwind, with a further bedroom that works perfectly as a nursery, home office or guest room.
On the top floor are two further bedrooms, including the principal bedroom with fitted wardrobes, served by a smart shower room with a bath.
Outside, the house enjoys a paved front garden, and to the rear a private garden with terrace seating and planting, plus steps up to an additional raised area – ideal for outdoor dining and summer evenings (the steps are communal with the adjoining property).

A genuinely impressive home in a prime Greenwich setting, beautifully presented and ready to move straight into.

Hyde Vale is one of the most sought after roads in West Greenwich and located extremely close to Greenwich Park and town centre. Greenwich is the home of Greenwich mean time and the meridian line and one of London’s prettiest locations. It maintains a quaint rural village feel and is steeped in history from the Old Royal Naval Hospital, the Royal Observatory, the National Maritime Museum, and the spectacularly restored Cutty Sark. Greenwich's covered market is one of London’s best and attracts people from all over the capital. There are fantastic transport links, including tube, DLR, mainline rail, bus, riverboat, foot tunnel and cable car. The area is mere minutes from canary wharf, the city and central London; just one of the reasons why it's increasingly popular with young professionals and commuters. The o2 is close by along with a huge selection of shops at Greenwich peninsula as are the bars, restaurants, boutique shops and farmers market of Blackheath village.

Local Authority: Greenwich
Tax Band: G

N.B. These details have been provided by the vendor. Any interested party should have these checked by a solicitor as part of the purchase process.

Marketed by

Winkworth Greenwich

Properties for sale in Greenwich

Arrange a Viewing

Fill in the form below to arrange your property viewing.

This site is protected by reCAPTCHA and the Google Privacy Policy and Terms of Service apply.
Introduction text for the mortgage calculator

Mortgage Calculator

Fill in the details below to estimate your monthly repayments:

Approximate monthly repayment:

For more information, please contact Winkworth's mortgage partner, Trinity Financial, on +44 (0)20 7267 9399 and speak to the Trinity team.

Stamp Duty Calculator

Fill in the details below to estimate your stamp duty

The above calculator above is for general interest only and should not be relied upon

6/14
Picture No. 10
Picture No. 16
Picture No. 17
Picture No. 26
Picture No. 25
Picture No. 09
Picture No. 03
Picture No. 12
Picture No. 05
Picture No. 13
Picture No. 28
Picture No. 07
Picture No. 11
Picture No. 02
Picture No. 27
Picture No. 18
Picture No. 21
Picture No. 24
Picture No. 04
Picture No. 06
Picture No. 08
Picture No. 14
Picture No. 15

Meet the Team

At Winkworth Greenwich Estate Agents our local know-how and expertise is second to none and we love being part of this vibrant area. Having worked in property for many years in Greenwich, our team of experts are well placed to help you with all your property needs seven days a week.

See all team members

Got a question about this property?

This site is protected by reCAPTCHA and the Google Privacy Policy and Terms of Service apply.

More Properties like this

Video Tour

Crooms Hill, Greenwich, London, SE10

Guide Price £2,750,000 Freehold

Video Tour

Georgette Place, Greenwich, London, SE10

Guide Price £2,500,000 Freehold

Video Tour

King George Street, Greenwich, London, SE10

£1,350,000 Freehold

Video Tour

Under Offer

King George Street, Greenwich, London, SE10

£950,000 Freehold

Video Tour

Dryden Road, Greenwich, London, SE10

Guide Price £900,000 Freehold

Woolwich Road, Greenwich, London, SE10

£850,000 Freehold

Online Valuations Aren’t Worth The Paper They’re Printed On.

When online valuations don’t give you the whole picture - try Winkworth’s expert service. Get a free property appraisal. Accurate valuations from our local property experts. No obligation to list with Winkworth. Choose a time convenient for you with our online booking system.

Fill in your details and someone will be in touch soon:

You have provisionally booked a valuation for . Please confirm your details below

We don't have date info available for this property, but if you fill in your details below, someone will be in touch to arrange a date soon

Please fill in the required fields below marked with *

This site is protected by reCAPTCHA and the Google Privacy Policy and Terms of Service apply.