Skip to main content

MyWinkworth

Picture No. 01
Picture No. 02
Picture No. 07
Picture No. 03
Picture No. 06
Picture No. 04
Picture No. 08
Picture No. 09
Picture No. 05
6/14

Hillborough Road, Westcliff-on-Sea, Essex, SS0

1 bedroom flat/apartment in Westcliff-on-Sea

£150,000 Leasehold

  • Bedrooms 1
  • Bathrooms 1
  • Reception rooms 1
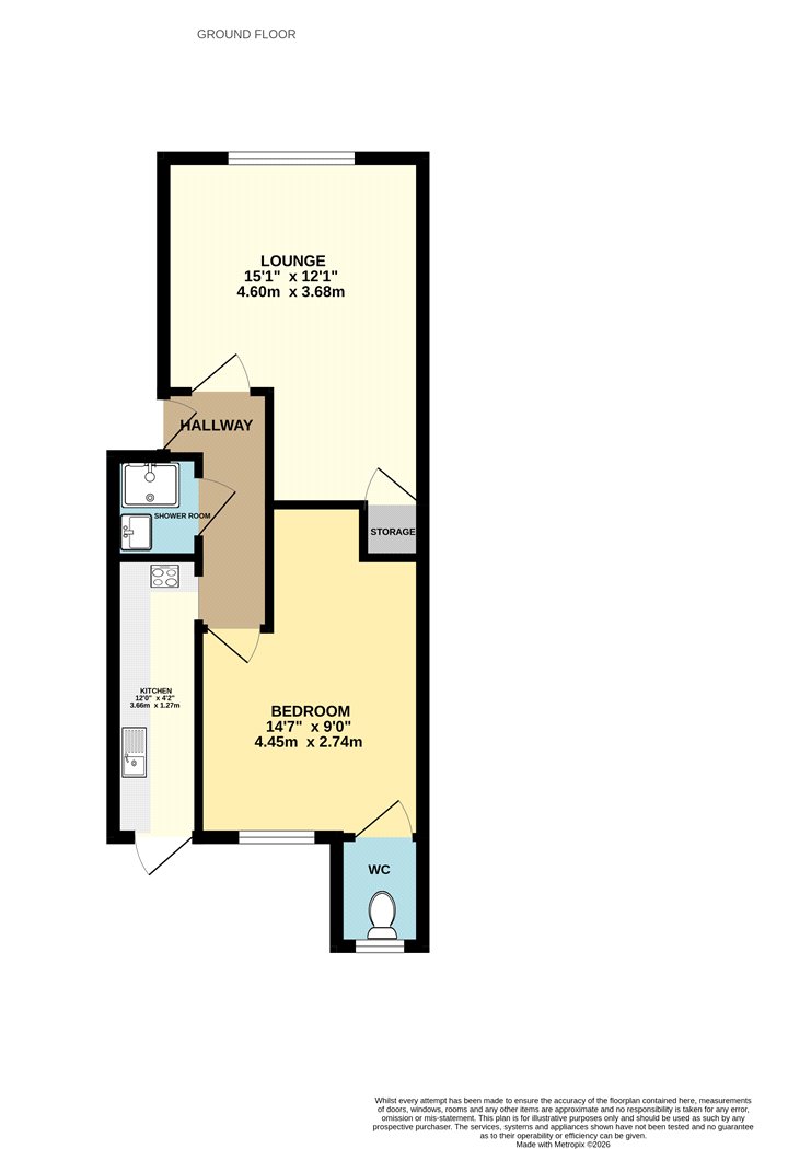
  • Floorplan

PICTURES AND VIDEOS

KEY FEATURES

  • Ground Floor Flat.
  • One Bedroom.
  • Lounge.
  • Kitchen.
  • Gas Central Heating(not tested).
  • No Onward Chain.

KEY INFORMATION

  • Tenure: Leasehold
  • Lease Length: 154 yrs left
  • Ground rent: £100.00 per annum
  • Service charge: £1320.00 per annum
  • Council Tax Band: A

Description

Ground Floor Apartment with 1 Bedroom. Affordable property boasting a private garden and modern features. Ideal for first-time buyers or investors. Don't miss out on this fantastic opportunity to own a charming property in a sought-after location. Contact us for a viewing today.

For sale is this one-bedroom ground floor apartment in Westcliff. This property features a spacious living area, a kitchen and a shower room with separate WC. There is a good size bedroom.

The apartment also benefits from a private garden, ideal for enjoying outdoor living. Situated in a sought-after area, the property offers easy access to local amenities, schools, and transport links.

Perfect for first-time buyers or investors. Don't miss the chance to make this apartment your own and enjoy the convenience and comfort it has to offer.

Contact us now to arrange a viewing.

Lounge: - 15' x 12'1.

Kitchen: -12' x 4'2.

Bedroom: -14'7 x 9' max.

Shower Room.

Separate WC. Rear Garden

Marketed by

Winkworth Leigh-on-Sea

Properties for sale in Leigh-on-Sea

Arrange a Viewing

Fill in the form below to arrange your property viewing.

This site is protected by reCAPTCHA and the Google Privacy Policy and Terms of Service apply.
Introduction text for the mortgage calculator

Mortgage Calculator

Fill in the details below to estimate your monthly repayments:

Approximate monthly repayment:

For more information, please contact Winkworth's mortgage partner, Trinity Financial, on +44 (0)20 7267 9399 and speak to the Trinity team.

Stamp Duty Calculator

Fill in the details below to estimate your stamp duty

The above calculator above is for general interest only and should not be relied upon

6/14
Picture No. 01
Picture No. 02
Picture No. 07
Picture No. 03
Picture No. 06
Picture No. 04
Picture No. 08
Picture No. 09
Picture No. 05

Meet the Team

Our team at Winkworth Leigh-on-Sea Estate Agents are here to support and advise our customers when they need it most. We understand that buying, selling, letting or renting can be daunting and often emotionally meaningful. We are there, when it matters, to make the journey as stress-free as possible.

See all team members

Got a question about this property?

This site is protected by reCAPTCHA and the Google Privacy Policy and Terms of Service apply.

More Properties like this

Video Tour

Broadway, Leigh-on-Sea, Essex, SS9

£550,000 Leasehold

London Road, Leigh On Sea, SS9

Guide Price £475,000 Leasehold

Westcliff Parade, Westcliff-on-Sea, Essex, SS0

£425,000 Leasehold

London Road, Leigh On Sea, SS9

Guide Price £400,000 Leasehold

Under Offer

Woodfield Road, Leigh-on-Sea, Essex, SS9

£325,000 Share of Freehold

Under Offer

London Road, Leigh On Sea, SS9

Guide Price £325,000 Leasehold

Online Valuations Aren’t Worth The Paper They’re Printed On.

When online valuations don’t give you the whole picture - try Winkworth’s expert service. Get a free property appraisal. Accurate valuations from our local property experts. No obligation to list with Winkworth. Choose a time convenient for you with our online booking system.

Fill in your details and someone will be in touch soon:

You have provisionally booked a valuation for . Please confirm your details below

We don't have date info available for this property, but if you fill in your details below, someone will be in touch to arrange a date soon

Please fill in the required fields below marked with *

This site is protected by reCAPTCHA and the Google Privacy Policy and Terms of Service apply.