Skip to main content

MyWinkworth

Sold

Reception Room
Exterior Front
Kitchen/Dining
Principal Bedroom
Bathroom
Bedroom Two
Kitchen/Dining
Patio Garden
Patio Garden
Principal Bedroom
6/14

Herne Hill Road, London, SE24

2 bedroom flat/apartment in London

£565,000 Leasehold

  • Bedrooms 2
  • Bathrooms 1
  • Reception rooms 1
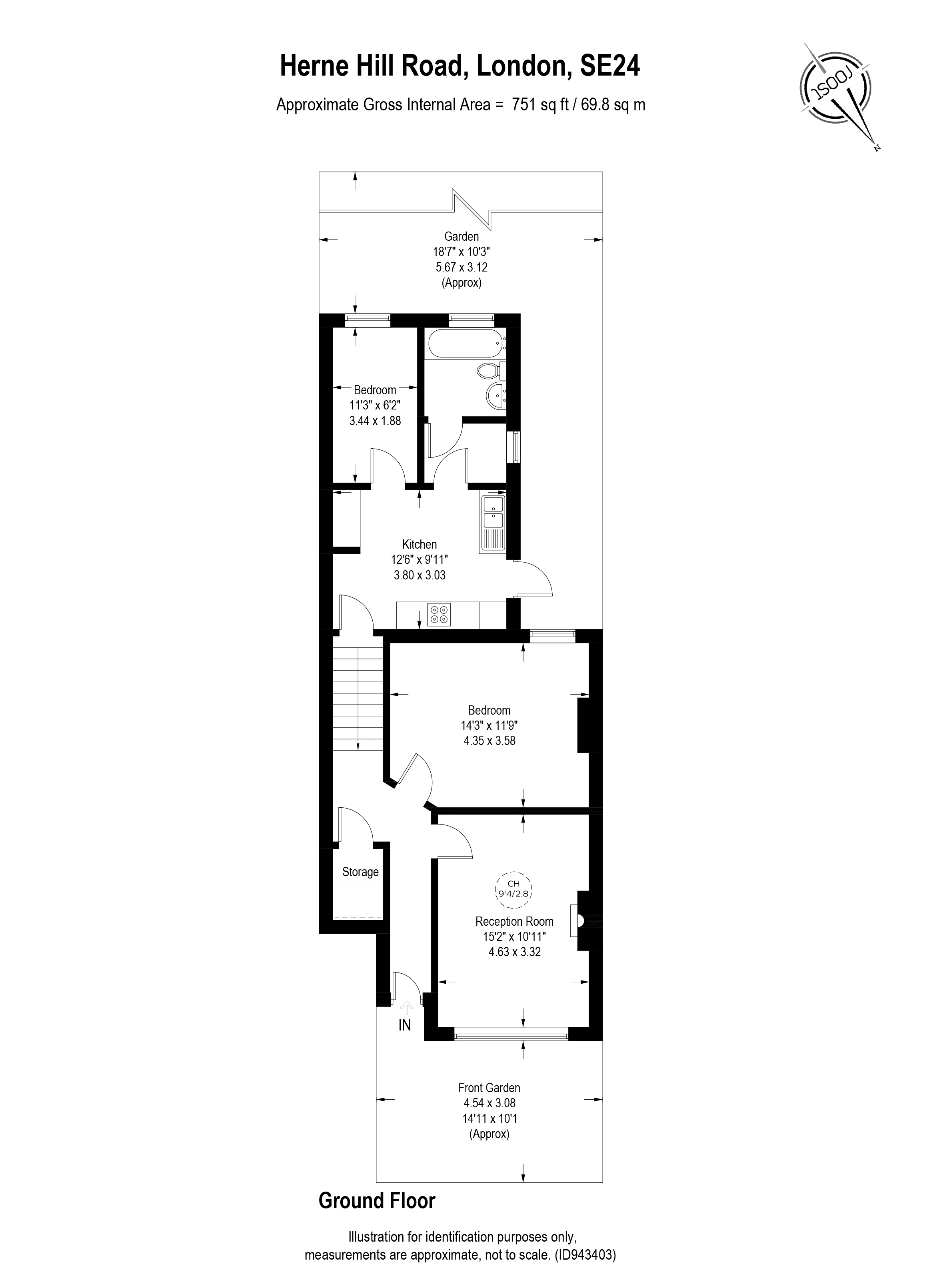
  • Dimensions 751 sq ft
    69 sq m
  • Floorplan

PICTURES AND VIDEOS

KEY FEATURES

  • Edwardian Era
  • Terraced Maisonette
  • Reception Rooms
  • Two Bedrooms
  • Modern Bathroom
  • Kitchen/Diner
  • Utility Room
  • South-West Facing Garden
  • Direct Access to Ruskin Park
  • Long Lease (951 years left)
  • Council Tax Band: C (Lambeth)
  • Sole Agent

KEY INFORMATION

  • Tenure: Leasehold
  • Lease Length: 948 yrs left
  • Ground rent: £25.00 per annum
  • Council Tax Band: C
  • Local Authority: Lambeth

Description

We are pleased to bring to the market this two bedroom Edwardian Terraced maisonette with a garden. Ideally located for the amenities of Herne Hill, Loughborough Junction, Dulwich Village, Denmark Hill, Brixton and the lovely Ruskin Park.

Available exclusively through Winkworth we are delighted to present this spacious split-level ground floor maisonette. The ground floor has its own private entrance (with fitted storage under the stairs) leading to a front reception room with a square bay window, wood floors and an original fireplace. Down some steps is the spacious kitchen/diner which is fitted with plenty of wall and base units and is equipped with the usual modern appliances. There is direct access to the south-west facing patio garden via the side return, perfect for summer entertaining. There is a handy utility room just off the kitchen which has plumbing for a washing machine/dryer. There are two double bedrooms (one being a small double), with the larger bedroom (on the upper level) benefiting from wooden floors and they both overlook the garden. The modern bathroom has a bath with a shower overhead, a wash hand basin and a WC.
Offered with a long lease in excess of 950 years, early viewings are recommended!

Location

Herne Hill
Introduction text for the mortgage calculator

Mortgage Calculator

Fill in the details below to estimate your monthly repayments:

Approximate monthly repayment:

For more information, please contact Winkworth's mortgage partner, Trinity Financial, on +44 (0)20 7267 9399 and speak to the Trinity team.

Stamp Duty Calculator

Fill in the details below to estimate your stamp duty

The above calculator above is for general interest only and should not be relied upon

6/14
Reception Room
Exterior Front
Kitchen/Dining
Principal Bedroom
Bathroom
Bedroom Two
Kitchen/Dining
Patio Garden
Patio Garden
Principal Bedroom

Meet the Team

Our team at Winkworth Herne Hill Estate Agents are here to support and advise our customers when they need it most. We understand that buying, selling, letting or renting can be daunting and often emotionally meaningful. We are there, when it matters, to make the journey as stress-free as possible.

See all team members

Got a question about this property?

This site is protected by reCAPTCHA and the Google Privacy Policy and Terms of Service apply.

More Properties like this

Thurlow Park Road, London, SE21

Offers in excess of £700,000 Leasehold

Deronda Road, London, SE24

Offers in excess of £700,000 Leasehold

Holmewood Gardens, London, SW2

Offers in excess of £700,000 Leasehold

Lambert Road, London, SW2

Offers in excess of £675,000 Share of Freehold

Brixton Water Lane, London, SW2

Offers in excess of £650,000 Share of Freehold

Lowden Road, London, SE24

Offers in excess of £650,000 Freehold

Online Valuations Aren’t Worth The Paper They’re Printed On.

When online valuations don’t give you the whole picture - try Winkworth’s expert service. Get a free property appraisal. Accurate valuations from our local property experts. No obligation to list with Winkworth. Choose a time convenient for you with our online booking system.

Fill in your details and someone will be in touch soon:

You have provisionally booked a valuation for . Please confirm your details below

We don't have date info available for this property, but if you fill in your details below, someone will be in touch to arrange a date soon

Please fill in the required fields below marked with *

This site is protected by reCAPTCHA and the Google Privacy Policy and Terms of Service apply.