Skip to main content

MyWinkworth

Sold

Reception Room
Kitchen Part Two
External
Garden Part Two
Kitchen Part One
Bedroom One
Bedroom Two
Bathroom
Garden Part One
6/14

Henslowe Road, East Dulwich, London, SE22

3 bedroom house

Offers in excess of £775,000 Freehold

  • Bedrooms 3
  • Bathrooms 1
  • Reception rooms 1
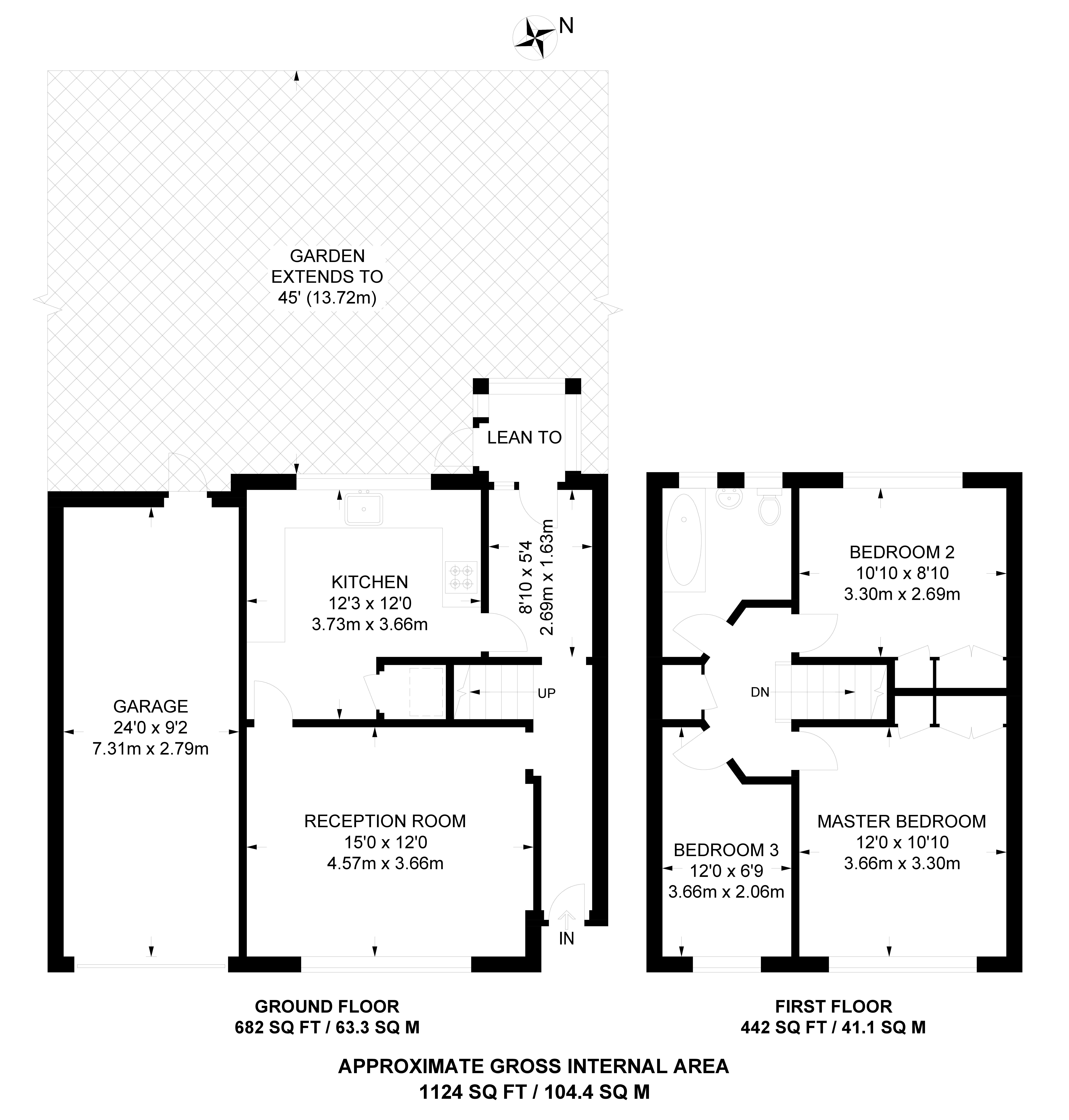
  • Floorplan

PICTURES AND VIDEOS

KEY FEATURES

  • Three Bedrooms
  • End of Terraced House
  • Large Reception Room
  • Fully Fitted Kitchen
  • Bathroom
  • Potential to Extend STPP
  • Garage
  • Chain Free

KEY INFORMATION

  • Tenure: Freehold

Description

A fantastic family home situated on a quiet residential street in SE22. This spacious end of terrace house is offered to the market chain free.

A fantastic family home situated on a quiet residential street in SE22. This spacious end-of-terrace house is offered to the market chain free. Comprising on the ground floor, large reception with engineered wood flooring. Spacious fully fitted kitchen with free-standing appliances and utility room. The property boasts a fantastic, large West-facing garden. The ground floor benefits from extension potential to the side and rear STPP. The first floor comprises two large double bedrooms, a spacious single bedroom, and a family bathroom. There is potential to extend further into the loft STPP, although precedent has already been set by neighbouring properties on the road. The property boasts fantastic potential for a family looking to put their footprint on a home in SE22 which they can grow into. The location offers fantastic access to both Dulwich Park and Peckham Rye Park. Multiple transport links are offered via Barry Road to central London via bus links. Transport links are provided via Honor Oak for the East London line, East Dulwich station for direct links to London Bridge or Peckham Rye for the overground.

Council Tax Band D
Introduction text for the mortgage calculator

Mortgage Calculator

Fill in the details below to estimate your monthly repayments:

Approximate monthly repayment:

For more information, please contact Winkworth's mortgage partner, Trinity Financial, on +44 (0)20 7267 9399 and speak to the Trinity team.

Stamp Duty Calculator

Fill in the details below to estimate your stamp duty

The above calculator above is for general interest only and should not be relied upon

6/14
Reception Room
Kitchen Part Two
External
Garden Part Two
Kitchen Part One
Bedroom One
Bedroom Two
Bathroom
Garden Part One

Meet the Team

Our team at Winkworth Dulwich Estate Agents are here to support and advise our customers when they need it most. We understand that buying, selling, letting or renting can be daunting and often emotionally meaningful. We are there, when it matters, to make the journey as stress-free as possible.

See all team members

Got a question about this property?

This site is protected by reCAPTCHA and the Google Privacy Policy and Terms of Service apply.

More Properties like this

Video Tour

Under Offer

Crystal Palace Road, East Dulwich, London, SE22

Offers in excess of £2,000,000 Freehold

Under Offer

Crystal Palace Road, East Dulwich, London, SE22

£2,000,000 Freehold

Video Tour

Under Offer

Overhill Road, East Dulwich, London, SE22

£2,000,000 Freehold

Under Offer

Friern Road, East Dulwich, London, SE22

Offers in excess of £1,800,000 Freehold

Under Offer

Ondine Road, Peckham Rye, London, SE15

Offers in excess of £1,800,000 Freehold

Under Offer

Bellenden Road, Peckham Rye, London, SE15

Offers in excess of £1,800,000 Freehold

Online Valuations Aren’t Worth The Paper They’re Printed On.

When online valuations don’t give you the whole picture - try Winkworth’s expert service. Get a free property appraisal. Accurate valuations from our local property experts. No obligation to list with Winkworth. Choose a time convenient for you with our online booking system.

Fill in your details and someone will be in touch soon:

You have provisionally booked a valuation for . Please confirm your details below

We don't have date info available for this property, but if you fill in your details below, someone will be in touch to arrange a date soon

Please fill in the required fields below marked with *

This site is protected by reCAPTCHA and the Google Privacy Policy and Terms of Service apply.