Skip to main content

MyWinkworth

Sold

Picture No. 01
Picture No. 06
Picture No. 04
Picture No. 02
Picture No. 10
Picture No. 08
Picture No. 05
Picture No. 07
Picture No. 09
Picture No. 11
Picture No. 03
6/14

Hamilton Road, Reading, RG1

3 bedroom house in Reading

Guide Price £575,000 Freehold

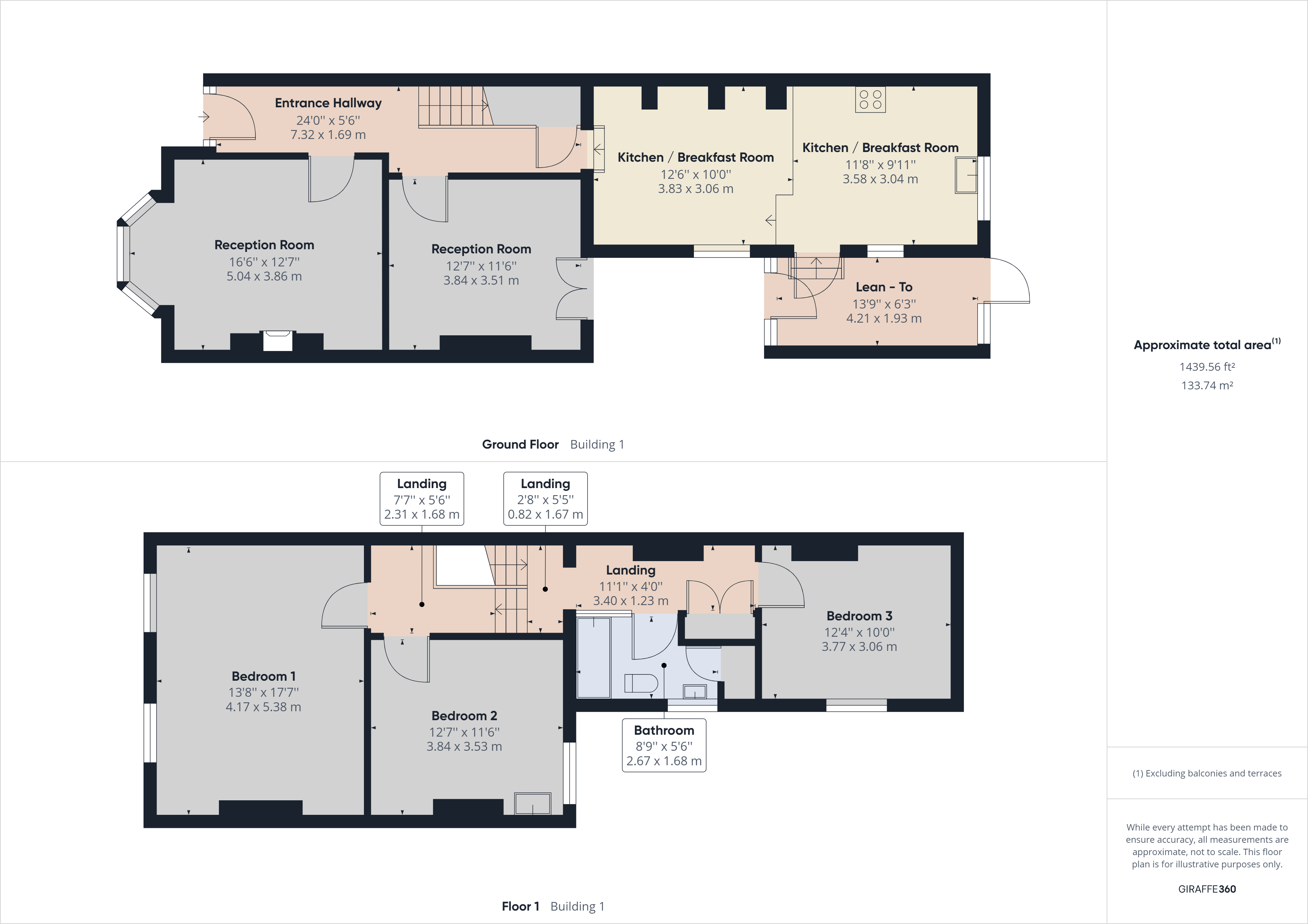
  • Bedrooms 3
  • Bathrooms 1
  • Reception rooms 2
  • Floorplan

PICTURES AND VIDEOS

KEY FEATURES

  • No Onward Chain
  • Offering A Wealth Of Charm & Character
  • Two Formal Reception Rooms
  • Large Kitchen/Diner
  • Three Double Bedrooms
  • Secluded Rear Garden
  • Prime University Address
  • Close Proximity To The Town Centre & The Train Station

KEY INFORMATION

  • Tenure: Freehold

Description

Offered to the market with no onward chain. A superb opportunity to acquire this classic bay fronted Victorian terrace situated in one of the University areas most desirable roads. Whilst retaining a wealth of charm and period features including high ceilings, sash windows and fireplaces with a great potential to improve and expand. The property is set back from the road in this prime residential address near to Whiteknights' Lake on the outskirts of the town centre. To the front of the property there is a tiled pathway that leads to a storm porch with an original front door and working bell that leads through to the entrance hall. There are two good sized reception rooms, the bay fronted sitting room has an open fireplace. To the rear of the property there is a large open plan kitchen/dining area with an adjoining lean-to out into the rear garden and outside w/c. On the first floor there are three well-proportioned double bedrooms which are complemented by a bathroom. The garden is secluded with mature shrub tree borders. Towards the back of the garden there is a brick air raid shelter/store shed and to the side a rear exit into a shared gated passageway onto Bulmershe Road. In addition to the property there is a garage located over the road in Waybrook Crescent.

Location

Located on this popular sought after road situated to the south east of Reading town centre. The Wokingham Road (A329) offers easy access to the the M4 and A329 motorways. Regarded as one of the most popular places to live in Reading being just over a mile from Reading Train Station and walking distance of the town centre. There is a multitude of local amenities including some great pubs, restaurants, take aways, shops and parks. The Royal Berkshire Hospital is also located in the area and there are some excellent schools including the highly acclaimed Reading Grammar School for boys, Kendrick girl's Grammar, Leighton Park, St Josephs and the Abbey public schools. There is a diverse range of property in the area including grand Victorian town houses, smaller terrace properties, classic Georgian buildings and modern homes and apartments. This diverse range of homes accommodates a diverse range of people, from students to young professionals, from families to doctors and hospital staff. The diversity, excellent local amenities and community and it's convenient location make the University area a great place to live.
Introduction text for the mortgage calculator

Mortgage Calculator

Fill in the details below to estimate your monthly repayments:

Approximate monthly repayment:

For more information, please contact Winkworth's mortgage partner, Trinity Financial, on +44 (0)20 7267 9399 and speak to the Trinity team.

Stamp Duty Calculator

Fill in the details below to estimate your stamp duty

The above calculator above is for general interest only and should not be relied upon

6/14
Picture No. 01
Picture No. 06
Picture No. 04
Picture No. 02
Picture No. 10
Picture No. 08
Picture No. 05
Picture No. 07
Picture No. 09
Picture No. 11
Picture No. 03

Meet the Team

Located just 36 miles from Central London and 24 miles from Oxford, Reading's geographical placement is perfect for living and working or commuting. Michael and James are established professionals who have years of combined experience and local knowledge and can offer you a friendly approach and unparalleled service.

See all team members

Got a question about this property?

This site is protected by reCAPTCHA and the Google Privacy Policy and Terms of Service apply.

More Properties like this

Virtual Tour

Sulhamstead, Reading, Berkshire, RG7

Offers in excess of £1,750,000 Freehold

Virtual Tour

Ashford Hill Road, Headley, Thatcham, Hampshire, RG19

Offers in excess of £1,750,000 Freehold

Virtual Tour

New Instruction

Oakside Way, Shinfield, Reading, Berkshire, RG2

£1,650,000 Freehold

Video Tour

Sheffield Close, Pangbourne, Reading, Berkshire, RG8

Offers over £1,650,000 Freehold

Video Tour

Under Offer

Part Lane, Riseley, Reading, Berkshire, RG7

Offers in excess of £1,500,000 Freehold

Virtual Tour

Dewe Lane, Burghfield, Reading, Berkshire, RG30

£1,500,000 Freehold

Online Valuations Aren’t Worth The Paper They’re Printed On.

When online valuations don’t give you the whole picture - try Winkworth’s expert service. Get a free property appraisal. Accurate valuations from our local property experts. No obligation to list with Winkworth. Choose a time convenient for you with our online booking system.

Fill in your details and someone will be in touch soon:

You have provisionally booked a valuation for . Please confirm your details below

We don't have date info available for this property, but if you fill in your details below, someone will be in touch to arrange a date soon

Please fill in the required fields below marked with *

This site is protected by reCAPTCHA and the Google Privacy Policy and Terms of Service apply.