Skip to main content

MyWinkworth

Sold

Front Exterior
Reception
Bedroom
Kitchen
Kitchen
Bathroom
Reception (2)
Garden
Bedroom
Bedroom (2)
Study
Bedroom (3)
6/14

Gunnersbury Avenue, London, W5

3 bedroom flat/apartment in London

£795,000 Share of Freehold

  • Bedrooms 3
  • Bathrooms 2
  • Reception rooms 2
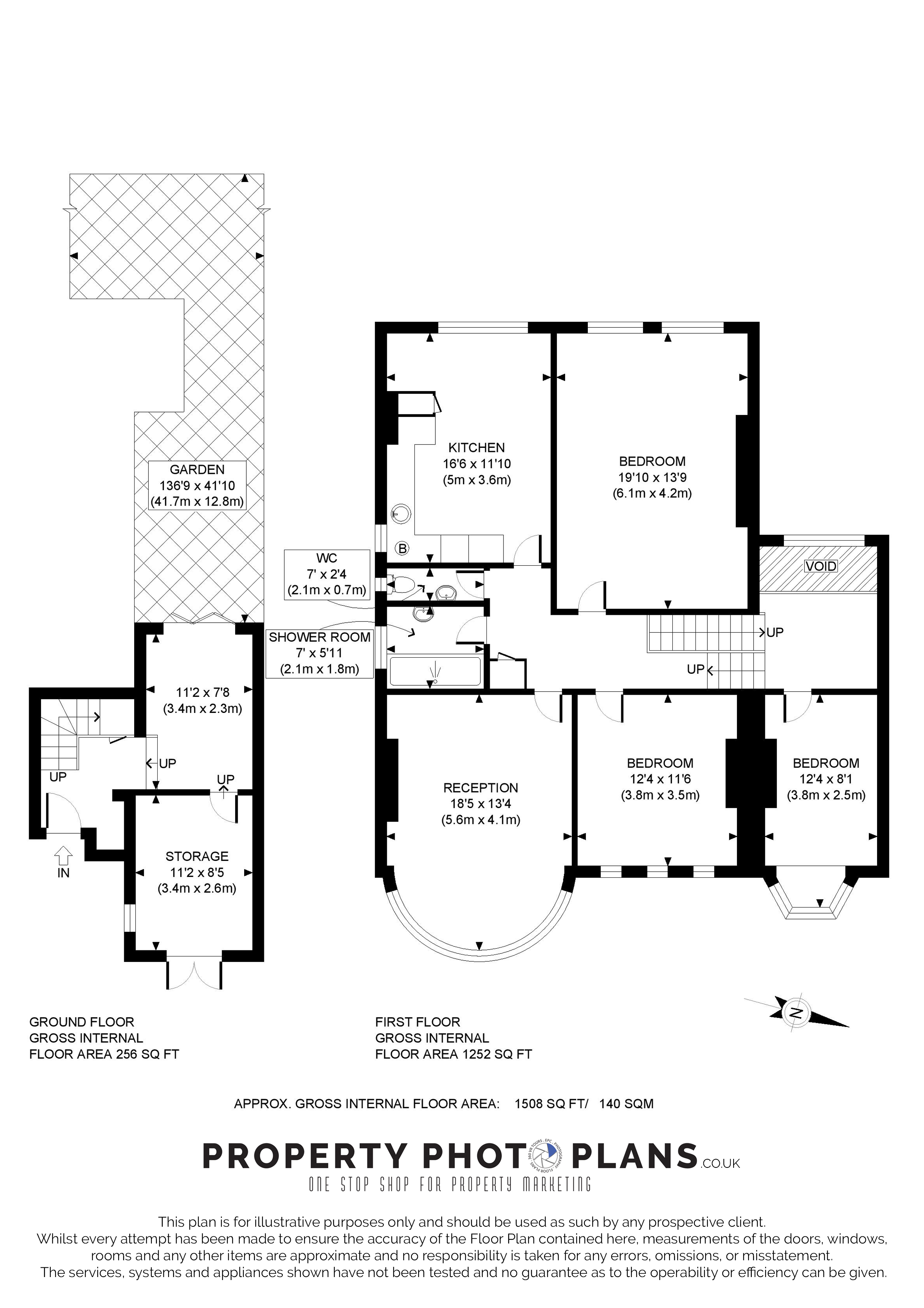
  • Floorplan

PICTURES AND VIDEOS

KEY FEATURES

  • Three bedrooms
  • Demised Loft
  • One reception
  • One kitchen
  • Private Garden
  • Additional WC
  • 1508 Sq. Ft/ 140 Sq. M
  • Off Street Parking
  • EPC Band rating: D
  • Council Tax band: E

KEY INFORMATION

  • Tenure: Share of Freehold
  • Lease Length: 983 yrs left
  • Council Tax Band: E
  • Local Authority: Ealing Council

Description

This attractive period conversion boasts an impressive 1500 sqft of living space, which is arranged over two floors. This unique apartment offers the living space and garden you would expect from a large family home. Accommodation is well balanced with three double bedrooms, a bright reception room with bay window and a separate eat in-kitchen overlooking the garden to the rear. The property comprises of two study spaces and an expansive private garden. In addition, the loft is demised to the flat (with the potential to further extend, STPP bring re-approved). It also has a garage and one allocated parking space on a private driveway. Offered to the market chain free viewing is highly recommended.

Council Tax band E
EPC rating C

Offering over 1500 sq. Ft. of living space and arranged over two floors of an attractive period property this is large three-bedroom period conversion with an expansive private garden and demised loft. A truly unique apartment with the living space and a garden you would expect from a large family home, accommodation is well balanced with three double bedrooms and a light and bright reception with bay window, a separate eat-in kitchen overlooking the garden to the rear . Offered to the market chain free viewing is highly recommended.

Location

Gunnersbury avenue is just over a mile from the shops, restaurants and amenities of Ealing Broadway. Acton Town and Ealing Common stations are both close by giving easy access to Central London via the Piccadilly and District Lines. (13 minutes walk Acton Common tube)
Introduction text for the mortgage calculator

Mortgage Calculator

Fill in the details below to estimate your monthly repayments:

Approximate monthly repayment:

For more information, please contact Winkworth's mortgage partner, Trinity Financial, on +44 (0)20 7267 9399 and speak to the Trinity team.

Stamp Duty Calculator

Fill in the details below to estimate your stamp duty

The above calculator above is for general interest only and should not be relied upon

6/14
Front Exterior
Reception
Bedroom
Kitchen
Kitchen
Bathroom
Reception (2)
Garden
Bedroom
Bedroom (2)
Study
Bedroom (3)

Meet the Team

Our handpicked team are knowledgeable and professional and really have their finger on the pulse keeping up with local market trends 'People buy people' has always been the unwritten strapline in the office. This is why so many clients or indeed anyone contacting the office will have such a positive experience.

See all team members

Got a question about this property?

This site is protected by reCAPTCHA and the Google Privacy Policy and Terms of Service apply.

More Properties like this

Virtual Tour

Castlebar Hill, London, UK, W5

£780,000 Share of Freehold

Under Offer

Woodgrange Avenue, London, W5

£650,000 Leasehold

Warwick Road, London, W5

£650,000 Leasehold

Under Offer

Byron Road, London, W5

£625,000 Share of Freehold

Under Offer

Relph Court, Kenneth Way, London, W5

£600,000 Leasehold

Mount Park Road, London, W5

£595,000 Share of Freehold

Online Valuations Aren’t Worth The Paper They’re Printed On.

When online valuations don’t give you the whole picture - try Winkworth’s expert service. Get a free property appraisal. Accurate valuations from our local property experts. No obligation to list with Winkworth. Choose a time convenient for you with our online booking system.

Fill in your details and someone will be in touch soon:

You have provisionally booked a valuation for . Please confirm your details below

We don't have date info available for this property, but if you fill in your details below, someone will be in touch to arrange a date soon

Please fill in the required fields below marked with *

This site is protected by reCAPTCHA and the Google Privacy Policy and Terms of Service apply.