Skip to main content

MyWinkworth

Sold

Picture No. 17
Picture No. 21
Picture No. 22
Picture No. 24
Picture No. 23
Picture No. 25
Picture No. 26
Picture No. 27
Picture No. 28
Picture No. 29
Picture No. 20
Picture No. 19
Picture No. 18
6/14

Great Leighs, Bourne, Lincolnshire, PE10

4 bedroom house in Bourne

Offers in excess of £350,000 Freehold

  • Bedrooms 4
  • Bathrooms 2
  • Reception rooms 3
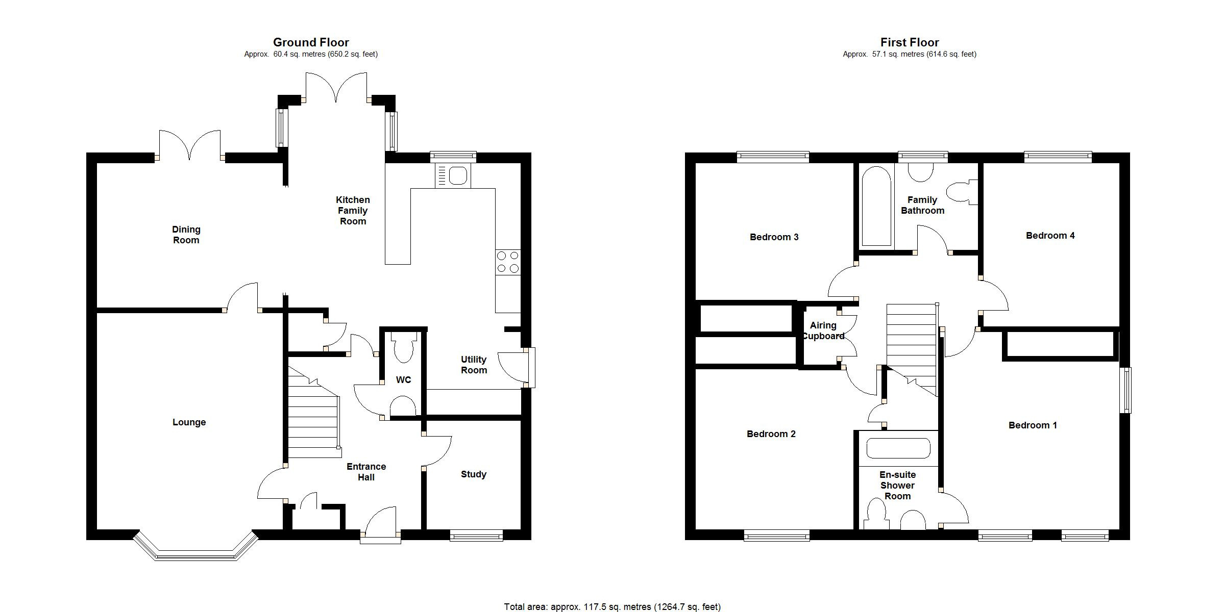
  • Floorplan

PICTURES AND VIDEOS

KEY FEATURES

  • Modern Four Bedroom Detached Home
  • Finished To A High Quality
  • Single Garage
  • Spacious Accommodation
  • EPC Rating C
  • Council Tax Band E

KEY INFORMATION

  • Tenure: Freehold
  • Council Tax Band: E
  • Local Authority: South Kesteven District Council

Description

REDUCED FOR A QUICK SALE! Winkworth Estate Agents are delighted to offer for sale this superbly presented four bedroom detached home built by David Wilson Homes located on the popular Elsea Park development giving easy access to Tesco supermarket and the A15 road links to Peterborough and its main line train station to London/Kings Cross. The property offers excellent family accommodation and benefits from, lounge, dining room and study, stunning kitchen/family room, en-suite to the master bedroom, three further double bedrooms, gas central heating to radiators and uPVC double glazed windows. We would strongly recommend an early internal viewing to avoid disappointment.

Rooms and Accommodations

  • Entrance Door Leading To:
  • Entrance Hall
  • With ceramic tiled flooring, stairs leading to the first floor, radiator, built-in cloaks cupboard, smoke alarm, power points and door leading through to:
  • Downstairs Cloakroom
  • Low level WC, wash hand basin, radiator, ceramic tiled flooring, extractor fan and radiator.
  • Lounge
  • 5.64m in to Bay x 3.66m
  • UPVC double glazed window overlooking the front, radiator, power points, telephone point and door leading through to:
  • Dining Room
  • 3.18m x 2.84m
  • UPVC double glazed French doors on to the rear garden, radiator, power points and archway leading through to:
  • Kitchen Family Room
  • 4.93m x 4.85m
  • Bright and spacious room with superb modern fitted units comprising one and half bowl sink unit with cupboard below, excellent range of wall and base units, built-in oven and hob with extractor above, integrated fridge freezer, integrated dishwasher, part tiled walls, ceramic tiled flooring, under stairs storage cupboard, radiator, TV point, UPVC double glazed windows and French doors on to rear garden and box archway leading through to:
  • Utility Room
  • 1.88m x 1.65m
  • Fitted work surface, space and plumbing for washing machine, space for tumble dryer, wall mounted boiler supplying hot water and central heating, radiator, ceramic tiled flooring and door leading to the side.
  • Study
  • 2.16m x 2.06m
  • UPVC double glazed window overlooking the front, radiator and power points.
  • First Floor Landing
  • Access to loft, built-in double airing cupboard housing hot water tank and radiator.
  • Bedroom One
  • 3.86m x 3.58m
  • With two UPVC double glazed windows overlooking the front and UPVC double glazed window overlooking the side, radiator, fitted wardrobes, TV point, power points and door leading through to:
  • Ensuite
  • Fitted suite comprising double shower cubicle with wall mounted shower, low level WC, wash hand basin, part tiled walls, extractor fan and heated towel rail.
  • Bedroom Two
  • 4.34m x 3.25m
  • UPVC double glazed window to the front, fitted wardrobes further over stairs storage cupboard, radiator and power points.
  • Bedroom Three
  • 3.35m x 3.18m
  • UPVC double glazed window to the rear, radiator and power points.
  • Bedroom Four
  • 3.15m x 2.97m
  • UPVC double glazed window overlooking the rear, radiator and power points.
  • Family Bathroom
  • Fitted suite with panelled bath with wall mounted shower and glass screen, low level WC, wash hand basin, par titled walls, heated towel rail, extractor fan and UPVC double glazed frosted glazed window.
  • Outside
  • To the front there is a paved driveway leading to the single garage with up and over door, power and light. There rear garden has a paved patio with steps leading up to raised wood decked area, laid to lawn garden being fully enclosed by fencing and side access.
Introduction text for the mortgage calculator

Mortgage Calculator

Fill in the details below to estimate your monthly repayments:

Approximate monthly repayment:

For more information, please contact Winkworth's mortgage partner, Trinity Financial, on +44 (0)20 7267 9399 and speak to the Trinity team.

Stamp Duty Calculator

Fill in the details below to estimate your stamp duty

The above calculator above is for general interest only and should not be relied upon

6/14
Picture No. 17
Picture No. 21
Picture No. 22
Picture No. 24
Picture No. 23
Picture No. 25
Picture No. 26
Picture No. 27
Picture No. 28
Picture No. 29
Picture No. 20
Picture No. 19
Picture No. 18

Meet the Team

Our team are here to support and advise our customers when they need it most. We understand that buying, selling, letting or renting can be daunting and often emotionally meaningful. We are there, when it matters, to make the journey as stress-free as possible.

See all team members

Got a question about this property?

This site is protected by reCAPTCHA and the Google Privacy Policy and Terms of Service apply.

More Properties like this

Under Offer

Swallow Hill, Thurlby, Bourne, Lincolnshire, PE10

Offers in excess of £900,000 Freehold

North Road, Gedney Hill, Spalding, Lincolnshire, PE12

£695,000 Freehold

Under Offer

Clarks Close, Morton, Bourne, Lincolnshire, PE10

£695,000 Freehold

New Instruction

Swallow Hill, Thurlby, Bourne, Lincolnshire, PE10

£685,000 Freehold

High Street, Horbling, Sleaford, Lincolnshire, NG34

£675,000 Freehold

Donington Road, Horbling, Sleaford, NG34

£570,000 Freehold

Online Valuations Aren’t Worth The Paper They’re Printed On.

When online valuations don’t give you the whole picture - try Winkworth’s expert service. Get a free property appraisal. Accurate valuations from our local property experts. No obligation to list with Winkworth. Choose a time convenient for you with our online booking system.

Fill in your details and someone will be in touch soon:

You have provisionally booked a valuation for . Please confirm your details below

We don't have date info available for this property, but if you fill in your details below, someone will be in touch to arrange a date soon

Please fill in the required fields below marked with *

This site is protected by reCAPTCHA and the Google Privacy Policy and Terms of Service apply.