Skip to main content

MyWinkworth

New Instruction

Picture No. 02
Picture No. 06
Picture No. 07
Picture No. 08
Picture No. 05
Picture No. 14
Picture No. 10
Picture No. 11
Picture No. 09
Picture No. 12
Picture No. 15
Picture No. 16
Picture No. 04
Picture No. 03
6/14

Galton Road, Sunningdale, Berkshire, SL5

3 bedroom house in Sunningdale

Guide Price £740,000 Freehold

  • Bedrooms 3
  • Bathrooms 1
  • Reception rooms 2
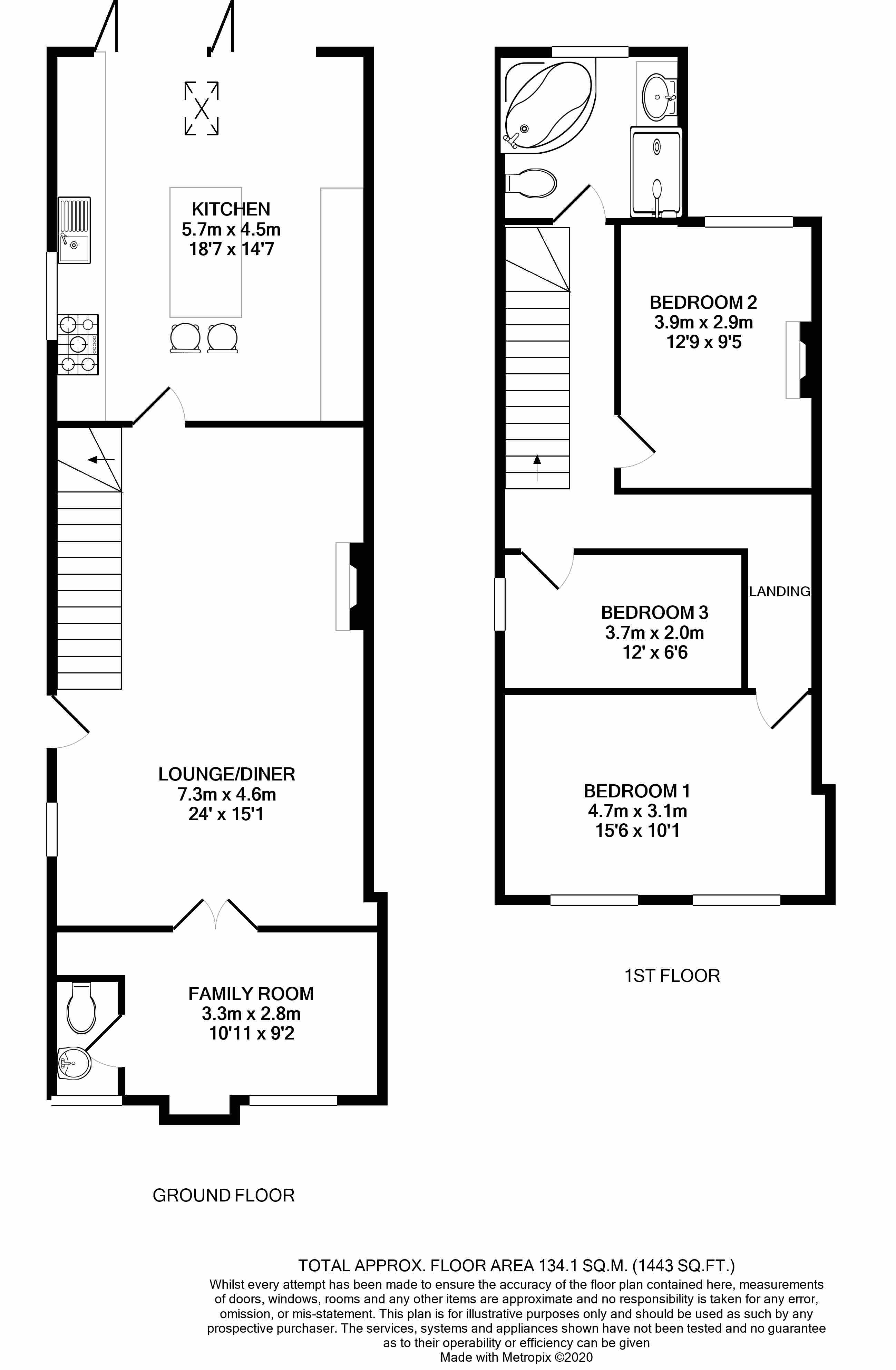
  • Floorplan

PICTURES AND VIDEOS

KEY INFORMATION

  • Tenure: Freehold
  • Local Authority: Windsor & Maidenhead

Description

A well proportioned and beautifully refurbished three-bedroom home situated in this sought after location in Sunningdale village moments from the well regarded Holy Trinity Primary school and the ever popular Charters School.

The property has been beautifully refurbished and extended by the current owners and consists of two / three receptions rooms to include formal reception room / dining room of approximately 24 ft offering fantastic reception space for family entertaining, separate family room / play room and the heart of the house a truly stunning kitchen / breakfast room with its high specification units and bi-fold doors leading to the rear garden and decked terrace.

The ground floor further benefits from cloakroom and excellent storage. To the first floor is three bedrooms and stunning family bathroom suite.
To the rear the property has a wonderful larger than average garden which is mainly laid to lawn with decked terrace. The garden is private with mature trees and shrub boarders. To the front there is a large paved driveway parking for ample cars.

Sunningdale is a short walk away and offers an excellent array of boutique shops, restaurants and mainline train with direct services to London and Reading. Berkshire and Surrey are renowned for their high standard of education, with the area being served by a good number of state and independent schools catering for boys and girls of all ages. Galton Road is in prime catchment for Charters School.

The nearby villages of Ascot, Sunninghill, Windlesham and Virginia Water all offer well regarded public houses, restaurants and sporting amenities including the world renowned Wentworth Golf Club, Sunningdale Golf Club and Ascot race course. Additional leisure facilities can be found at Foxhills, Queenwood and Royal Berkshire. Delightful walks can be enjoyed around Virginia Water Lake, Savill Gardens and Windsor Great Park.

Marketed by

Winkworth Sunningdale

Properties for sale in Sunningdale

Arrange a Viewing

Fill in the form below to arrange your property viewing.

This site is protected by reCAPTCHA and the Google Privacy Policy and Terms of Service apply.
Introduction text for the mortgage calculator

Mortgage Calculator

Fill in the details below to estimate your monthly repayments:

Approximate monthly repayment:

For more information, please contact Winkworth's mortgage partner, Trinity Financial, on +44 (0)20 7267 9399 and speak to the Trinity team.

Stamp Duty Calculator

Fill in the details below to estimate your stamp duty

The above calculator above is for general interest only and should not be relied upon

6/14
Picture No. 02
Picture No. 06
Picture No. 07
Picture No. 08
Picture No. 05
Picture No. 14
Picture No. 10
Picture No. 11
Picture No. 09
Picture No. 12
Picture No. 15
Picture No. 16
Picture No. 04
Picture No. 03

Meet the Team

At Winkworth Sunningdale Estate Agents, we recognise how important finding that perfect home is. That is why we ensure the service we offer, combined with our extensive local knowledge and understanding of what you need is exceptional. Whether you are buying, selling, renting or letting, our friendly, dedicated and professional team are always here to help.

See all team members

Got a question about this property?

This site is protected by reCAPTCHA and the Google Privacy Policy and Terms of Service apply.

More Properties like this

Wentworth Drive, Wentworth Estate, Virginia Water, Surrey, GU25

Guide Price £13,950,000 Freehold

Monks Road, Wentworth Estate, Virginia Water, GU25

Guide Price £4,500,000 Freehold

Callow Hill, Virginia Water, Surrey, GU25

Guide Price £4,300,000 Freehold

New Instruction

Charters Road, Sunningdale, Berkshire, SL5

Guide Price £2,100,000 Freehold

Callow Hill, Virginia Water, Surrey, GU25

Guide Price £1,850,000 Freehold

Under Offer

Wellington Avenue, Virginia Water, Surrey, GU25

Guide Price £1,795,000 Freehold

Online Valuations Aren’t Worth The Paper They’re Printed On.

When online valuations don’t give you the whole picture - try Winkworth’s expert service. Get a free property appraisal. Accurate valuations from our local property experts. No obligation to list with Winkworth. Choose a time convenient for you with our online booking system.

Fill in your details and someone will be in touch soon:

You have provisionally booked a valuation for . Please confirm your details below

We don't have date info available for this property, but if you fill in your details below, someone will be in touch to arrange a date soon

Please fill in the required fields below marked with *

This site is protected by reCAPTCHA and the Google Privacy Policy and Terms of Service apply.