Wellington Avenue, Virginia Water, Surrey, GU25
5 bedroom house in Virginia Water
Guide Price £1,795,000 Freehold
- 5
- 4
- 3
-
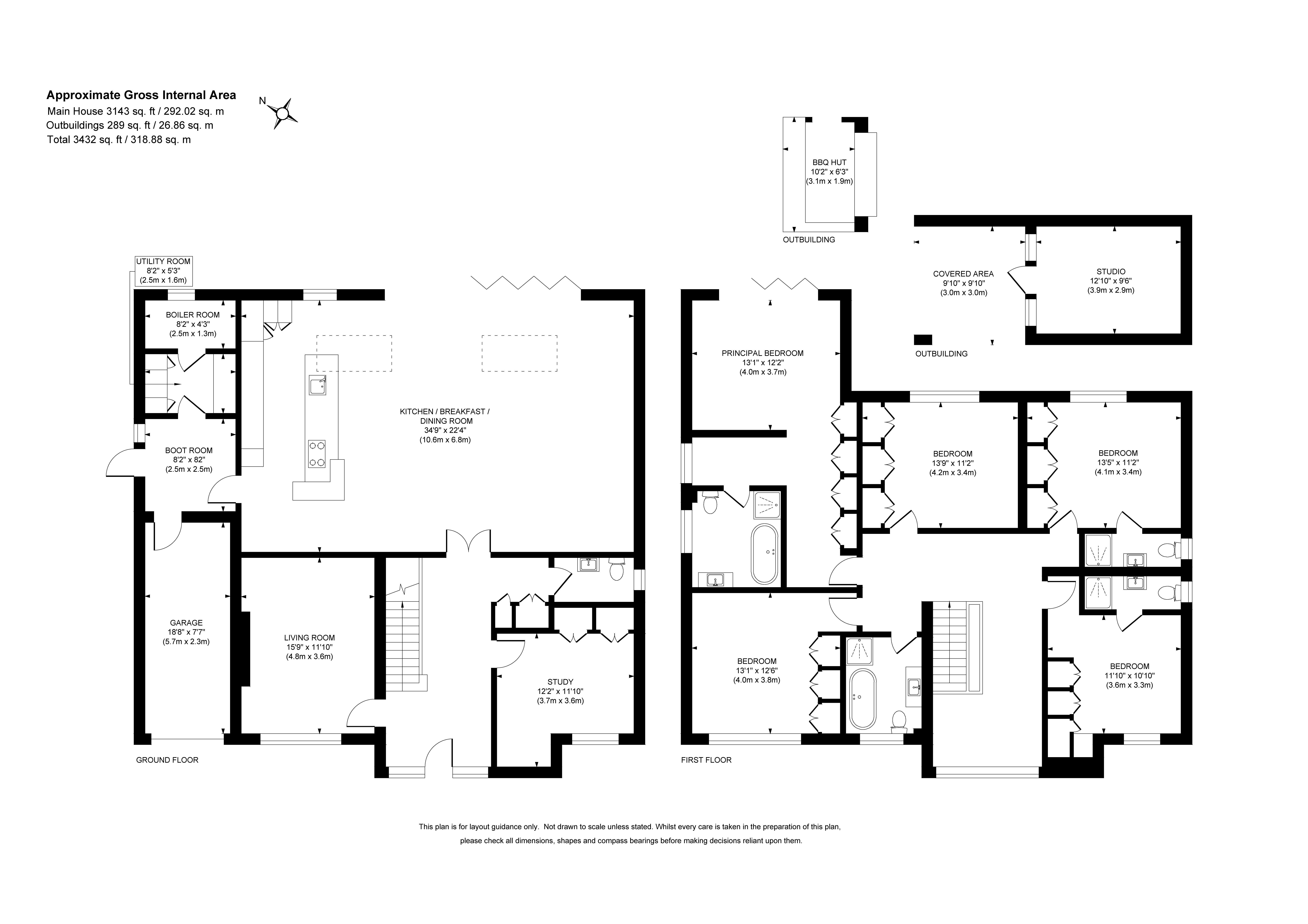
3600 sq ft
334 sq m -
PICTURES AND VIDEOS
























KEY INFORMATION
- Tenure: Freehold
- Council Tax Band: NA
- Local Authority: Runnymede Council
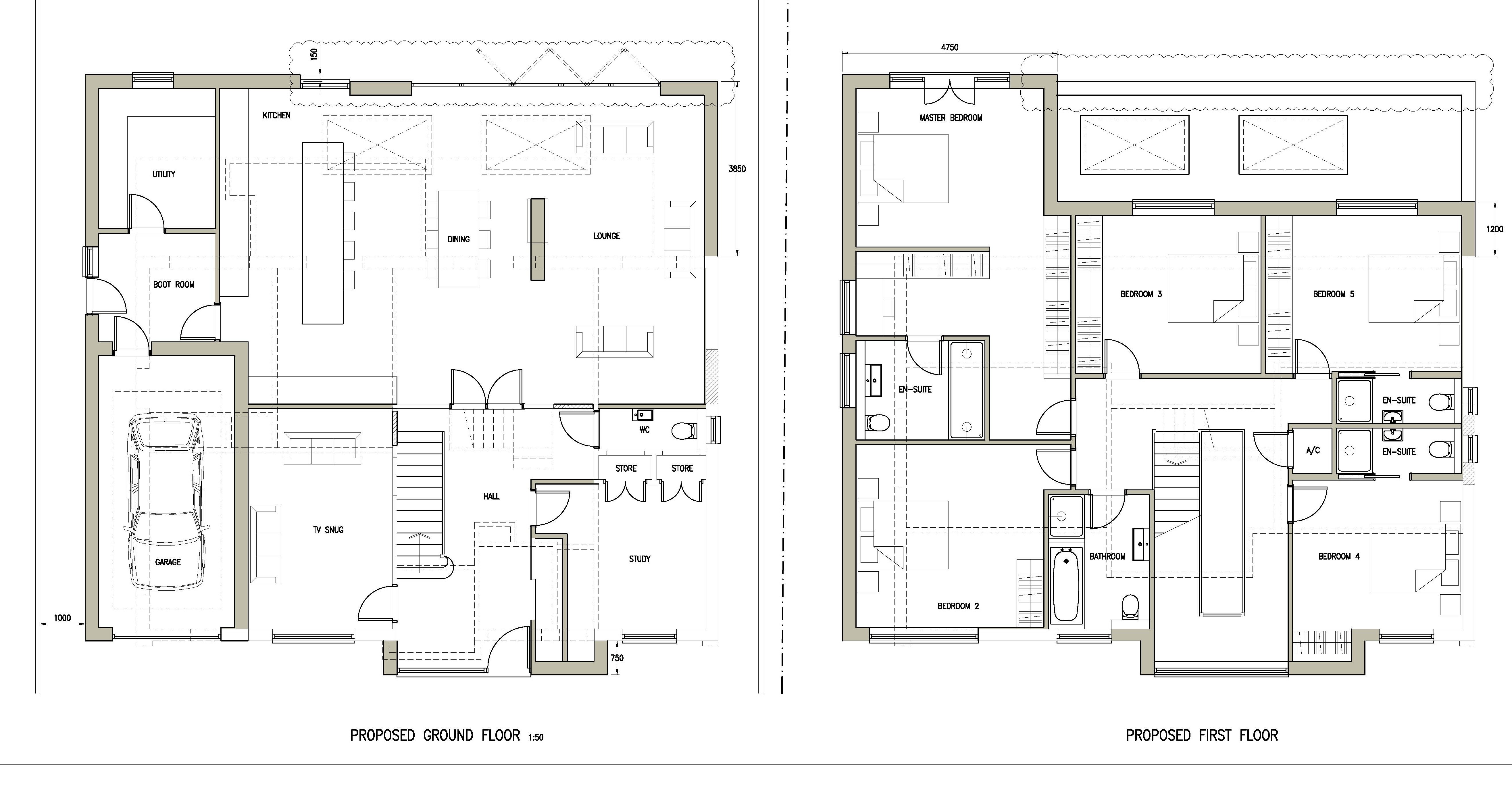
Description
The property boasts five bedrooms, four bathrooms and three reception rooms. There is high specification throughout with key highlights:
- Dramatic reception hallway with contemporary staircase and glass balcony
- Modern fitted kitchen with high quality integrated Neff appliances
- Triple glazing, heat recovery units, air-tight insulation, solar panels, EV charging points and air source heat pumps
- 10 year build warranty
The ground floor boasts a large open plan kitchen / dining / reception room, plus two further reception rooms, a utility room, boot room and guest cloakroom. There is also access to the integrated garage. To the first floor you will find five double bedrooms with three en suites and a family bathroom.
Wellington Avenue is a popular residential road in the heart of Virginia Water. The local shops, restaurants and mainline station to London Waterloo are just moments away and the M3 and M25 are both within close proximity, offering easy reach of London Heathrow. Virginia Water Lake and Windsor Great Park are also close by offering miles of walking trails and beautiful scenery. The nearby villages of Ascot, Sunningdale and Windlesham all offer well regarded public houses, restaurants and sporting amenities including Sunningdale Golf Club and Ascot Racecourse. Surrey and Berkshire are renowned for their high standard of education, with the area being served by a good number of state and independent schools catering for boys and girls of all ages.
Marketed by
Winkworth Sunningdale
Properties for sale in SunningdaleArrange a Viewing
Fill in the form below to arrange your property viewing.
Mortgage Calculator
Fill in the details below to estimate your monthly repayments:
Approximate monthly repayment:
For more information, please contact Winkworth's mortgage partner, Trinity Financial, on +44 (0)20 7267 9399 and speak to the Trinity team.
Stamp Duty Calculator
Fill in the details below to estimate your stamp duty
The above calculator above is for general interest only and should not be relied upon
Meet the Team
At Winkworth Sunningdale Estate Agents, we recognise how important finding that perfect home is. That is why we ensure the service we offer, combined with our extensive local knowledge and understanding of what you need is exceptional. Whether you are buying, selling, renting or letting, our friendly, dedicated and professional team are always here to help.
See all team members