Skip to main content

MyWinkworth

New Instruction

Picture No. 09
Picture No. 15
Picture No. 10
Picture No. 11
Picture No. 05
Picture No. 13
Picture No. 08
Picture No. 12
Picture No. 14
Picture No. 06
Picture No. 07
Picture No. 04
6/14

Finsbury Park Road, London, N4

3 bedroom maisonette in London

£900,000 Leasehold

  • Bedrooms 3
  • Bathrooms 1
  • Reception rooms 1
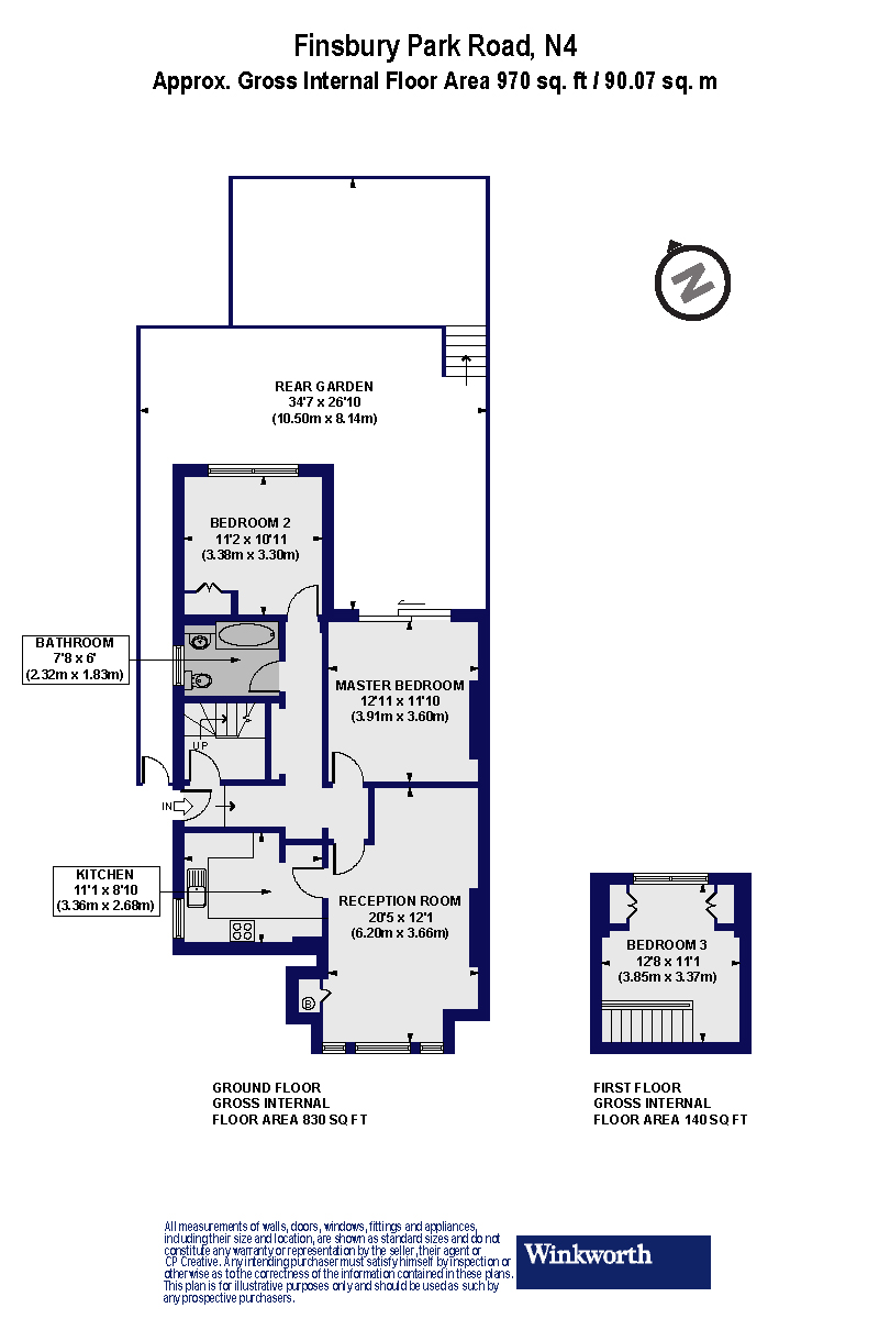
  • Floorplan

PICTURES AND VIDEOS

KEY INFORMATION

  • Tenure: Leasehold
  • Lease Length: 125 yrs left
  • Council Tax Band: D

Description

A beautiful three double bedroom, period conversion set on the ground and first floor of this handsome Victorian building in N4. Standing at 970 sqft, the property is offered to the market on a chain free basis and benefits from its own front door. Accommodation comprises of a wonderfully bright reception room, with a good-sized kitchen reassessed off to one side. All three bedrooms are genuine doubles, with two including built in storage, and the master having access to a spacious, private, east facing garden. The property is completed with a modern bathroom along with a long lease.
Finsbury Park Road is a beautiful treelined, no through road and is perfectly located for a selection of fantastic transport links as well as local shops. The village atmosphere at Highbury Barn and Mountgrove Road are just a short distance away along with numerous independent shops, cafes and restaurants. The green open spaces of both Clissold Park and Finsbury Park are both just moments from the property. An array of transport links offers effortless access across London with Arsenal and Finsbury Park Underground providing the closest underground links on the Piccadilly Line and Victoria Line. Numerous bus services located on Blackstock road offer routes to the City, West End and Angel and international transport is facilitated from St Pancras.

ACCESSIBILITY

  • Unsuitable For Wheelchairs

Utilities

  • Heating: Gas Central

Risks

  • Flood Risk: There has not been flooding in the last 5 years

Marketed by

Winkworth Highbury

Properties for sale in Highbury

Arrange a Viewing

Fill in the form below to arrange your property viewing.

This site is protected by reCAPTCHA and the Google Privacy Policy and Terms of Service apply.
Introduction text for the mortgage calculator

Mortgage Calculator

Fill in the details below to estimate your monthly repayments:

Approximate monthly repayment:

For more information, please contact Winkworth's mortgage partner, Trinity Financial, on +44 (0)20 7267 9399 and speak to the Trinity team.

Stamp Duty Calculator

Fill in the details below to estimate your stamp duty

The above calculator above is for general interest only and should not be relied upon

6/14
Picture No. 09
Picture No. 15
Picture No. 10
Picture No. 11
Picture No. 05
Picture No. 13
Picture No. 08
Picture No. 12
Picture No. 14
Picture No. 06
Picture No. 07
Picture No. 04

Meet the Team

From our office on Highbury Park, we pride ourselves on our unrivalled local knowledge. Many of the team here at Winkworth Highbury Estate Agents live locally and whether it's sales, lettings or property management, we're always striving to provide an unparalleled service and tailor it to your exacting needs.

See all team members

Got a question about this property?

This site is protected by reCAPTCHA and the Google Privacy Policy and Terms of Service apply.

More Properties like this

Under Offer

Mountgrove Road, London, N5

Offers in excess of £1,150,000 Leasehold

Under Offer

Benwell Road, London, N7

£875,000 Leasehold

Under Offer

Ronalds Road, London, N5

£870,000 Leasehold

Under Offer

Highbury Grove, London, N5

£725,000 Leasehold

Under Offer

Drayton Park, London, N5

Offers in excess of £625,000 Share of Freehold

Petherton Road, London, N5

Offers in excess of £600,000 Share of Freehold

Online Valuations Aren’t Worth The Paper They’re Printed On.

When online valuations don’t give you the whole picture - try Winkworth’s expert service. Get a free property appraisal. Accurate valuations from our local property experts. No obligation to list with Winkworth. Choose a time convenient for you with our online booking system.

Fill in your details and someone will be in touch soon:

You have provisionally booked a valuation for . Please confirm your details below

We don't have date info available for this property, but if you fill in your details below, someone will be in touch to arrange a date soon

Please fill in the required fields below marked with *

This site is protected by reCAPTCHA and the Google Privacy Policy and Terms of Service apply.