Eastfields Avenue, London, SW18
2 bedroom flat/apartment in London
Offers over £500,000 Leasehold
- 2
- 2
- 1
PICTURES AND VIDEOS








KEY FEATURES
- Two bedrooms
- Private Patio
- Allocated secure parking
- In-built air con throughout
KEY INFORMATION
- Tenure: Leasehold
- Lease Length: 976 yrs left
- Ground rent: £350.00 per annum
- Service charge: £5531.30 per annum
- Council Tax Band: F
Description
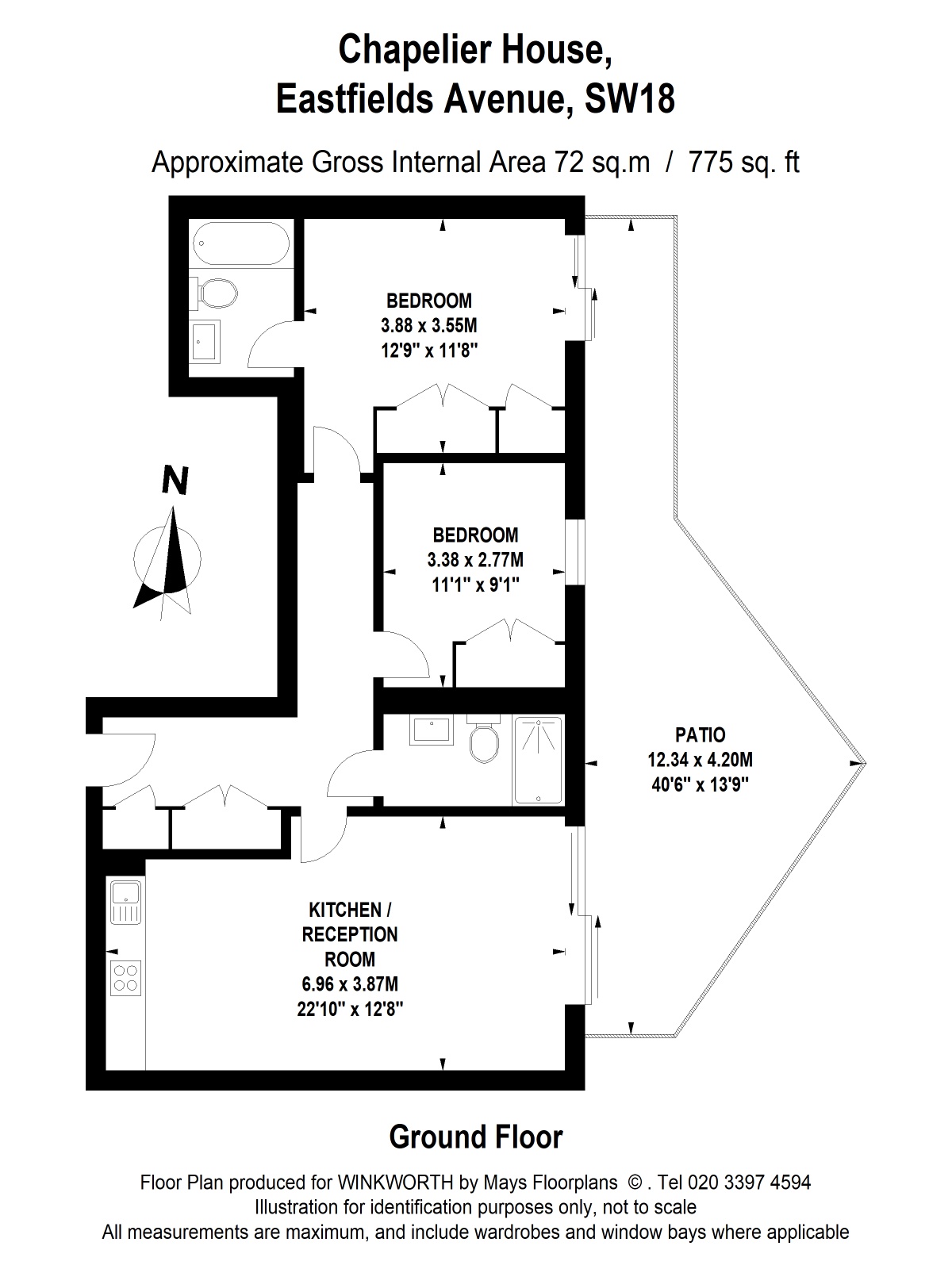
The property spans approximately 775 sq. ft. (72 sq. m.) and features a bright and spacious open-plan kitchen/reception room (22'10" x 12'8"). The kitchen is fitted with modern appliances and sleek cabinetry, seamlessly blending style and functionality.
There are two well-proportioned double bedrooms, the larger measuring 12'9" x 11'8", both offering ample natural light and storage options. The apartment is further complemented by a modern family bathroom and an ensuite shower room. A standout feature is the generous private patio (40'6" x 13'9").
This apartment is perfect for professionals, couples, or small families looking for stylish living in a vibrant riverside community.
Location
Residents are spoilt for choice with a wide selection of cafés, bars, and restaurants along the Thames Path, as well as easy access to the shops and amenities of Wandsworth Town and nearby Putney High Street.
Transport connections are outstanding, with Wandsworth Town (National Rail), Putney station and East Putney (District line) within easy reach, providing swift services into London Waterloo and Victoria. The Thames Clipper river bus service also operates from nearby Wandsworth Riverside Pier, offering a scenic and convenient commute into Central London and Canary Wharf. Local bus routes and cycle paths further enhance connectivity across the capital.
Marketed by
Winkworth Southfields
Properties for sale in SouthfieldsArrange a Viewing
Fill in the form below to arrange your property viewing.
Mortgage Calculator
Fill in the details below to estimate your monthly repayments:
Approximate monthly repayment:
For more information, please contact Winkworth's mortgage partner, Trinity Financial, on +44 (0)20 7267 9399 and speak to the Trinity team.
Stamp Duty Calculator
Fill in the details below to estimate your stamp duty
The above calculator above is for general interest only and should not be relied upon
Meet the Team
Our team at Winkworth Southfields Estate Agents are here to support and advise our customers when they need it most. We understand that buying, selling, letting or renting can be daunting and often emotionally meaningful. We are there, when it matters, to make the journey as stress-free as possible.
See all team members