Skip to main content

MyWinkworth

New Instruction

Picture No. 07
Picture No. 15
Picture No. 12
Picture No. 16
Picture No. 04
Picture No. 06
Picture No. 02
Picture No. 01
Picture No. 03
Picture No. 05
Picture No. 08
6/14

Colville Mews, London, W11

3 bedroom house in London

£2,349,000 Freehold

  • Bedrooms 3
  • Bathrooms 2
  • Reception rooms 1
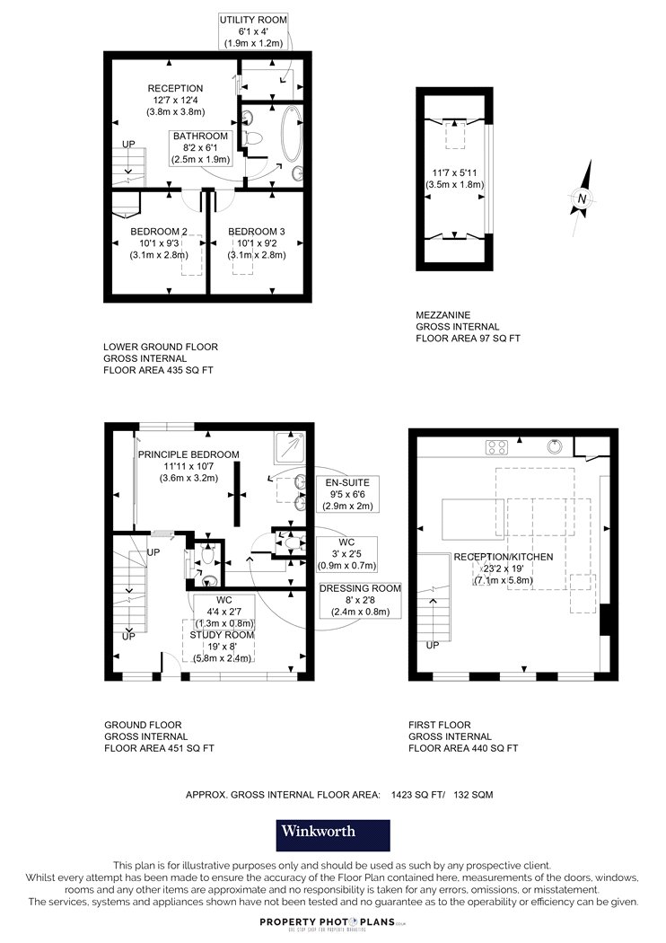
  • Dimensions 1450 sq ft
    134 sq m
  • Floorplan

PICTURES AND VIDEOS

KEY INFORMATION

  • Tenure: Freehold
  • Council Tax Band: F
  • Local Authority: Royal Borough Of Kensington & Chelsea

Description

A fantastic opportunity to aquire this fabulous three storey mews house tucked away in one of the area’s most sought after locations in the heart of Notting Hill.

An exceptional opportunity to aquire this superb three-storey mews house, discreetly positioned in one of Notting Hill’s most desirable addresses. The property features a private entrance leading to a hallway with bifold doors, a guest cloakroom, and access to an immaculate principal bedroom complete with floor-to-ceiling built-in storage, a walk-in wardrobe, and a beautifully appointed marble en-suite bathroom with separate walk-in shower and bathtub, all finished to an outstanding standard.

Upstairs, the top floor opens into a striking loft-style reception area with double-height ceilings, abundant natural light, and a working fireplace. The fully fitted open-plan kitchen includes a double oven, while a dedicated study area sits on a mezzanine level accessed via a loft-style ladder.

The lower ground floor offers two additional double bedrooms, quietly situated and served by an air filtration system, along with a spacious hallway and a separate utility room.

Utilities

  • Electricity Supply: Mains Supply
  • Water Supply: Mains Supply
  • Sewerage: Mains Supply
  • Heating: Gas

Risks

  • Flood Risk: There has not been flooding in the last 5 years

Location

Colville Mews is an ideal Notting Hill location - a peaceful cobbled mews tucked in behind the most fashionable stretch of Westbourne Grove with many of Notting Hill's most fashionable boutiques and restaurants a short stroll away.

Marketed by

Winkworth Notting Hill

Properties for sale in Notting Hill

Arrange a Viewing

Fill in the form below to arrange your property viewing.

This site is protected by reCAPTCHA and the Google Privacy Policy and Terms of Service apply.
Introduction text for the mortgage calculator

Mortgage Calculator

Fill in the details below to estimate your monthly repayments:

Approximate monthly repayment:

For more information, please contact Winkworth's mortgage partner, Trinity Financial, on +44 (0)20 7267 9399 and speak to the Trinity team.

Stamp Duty Calculator

Fill in the details below to estimate your stamp duty

The above calculator above is for general interest only and should not be relied upon

6/14
Picture No. 07
Picture No. 15
Picture No. 12
Picture No. 16
Picture No. 04
Picture No. 06
Picture No. 02
Picture No. 01
Picture No. 03
Picture No. 05
Picture No. 08

Meet the Team

The Winkworth Notting Hill office has had an excellent reputation built on over 30 years’ experience, making them one of the area's longest standing servants. They are a hard-working, diligent and eager to please bunch, who will at all times seek to secure the best deal for their client, whilst hoping to always be a pleasure to work with.

See all team members

Got a question about this property?

This site is protected by reCAPTCHA and the Google Privacy Policy and Terms of Service apply.

More Properties like this

Chepstow Road, London, W2

£3,500,000 Freehold

Talbot Road, London, W2

£3,300,000 Freehold

Chepstow Road, London, W2

£3,250,000 Freehold

St. Lukes Mews, London, W11

£2,150,000 Freehold

Under Offer

Pembridge Mews, London, W11

£1,900,000 Freehold

Under Offer

Kensington Gardens Square, London, W2

£995,000 Share of Freehold

Online Valuations Aren’t Worth The Paper They’re Printed On.

When online valuations don’t give you the whole picture - try Winkworth’s expert service. Get a free property appraisal. Accurate valuations from our local property experts. No obligation to list with Winkworth. Choose a time convenient for you with our online booking system.

Fill in your details and someone will be in touch soon:

You have provisionally booked a valuation for . Please confirm your details below

We don't have date info available for this property, but if you fill in your details below, someone will be in touch to arrange a date soon

Please fill in the required fields below marked with *

This site is protected by reCAPTCHA and the Google Privacy Policy and Terms of Service apply.