Skip to main content

MyWinkworth

New Instruction

Picture No. 08
Picture No. 09
Picture No. 07
Picture No. 10
Picture No. 12
Picture No. 13
Picture No. 03
Picture No. 04
Picture No. 11
Picture No. 06
6/14

Clarence Hill, Dartmouth, Devon, TQ6

5 bedroom maisonette in Dartmouth

£849,000 Freehold

  • Bedrooms 5
  • Bathrooms 5
  • Reception rooms 1
  • Floorplan

PICTURES AND VIDEOS

KEY FEATURES

  • Open Plan Living
  • 5 Bedrooms
  • 5 bathroooms
  • Garage plus additional parking space.

KEY INFORMATION

  • Tenure: Freehold
  • Local Authority: South Hams

Description

What a location! Wonderfully positioned in central Dartmouth, minutes walk to market square, shops, gardens, and The River Dart. Garage with forecourt parking.
A beautifully presented home, tucked away from the hustle and bustle of the town, pride of ownership is reflected throughout. This home is deceptively large and can sleep 10! The property has been an excellent 5* rated holiday let in the past and would be ideal for those family reunions and special anniversaries. Or why not make this your all year round family home?

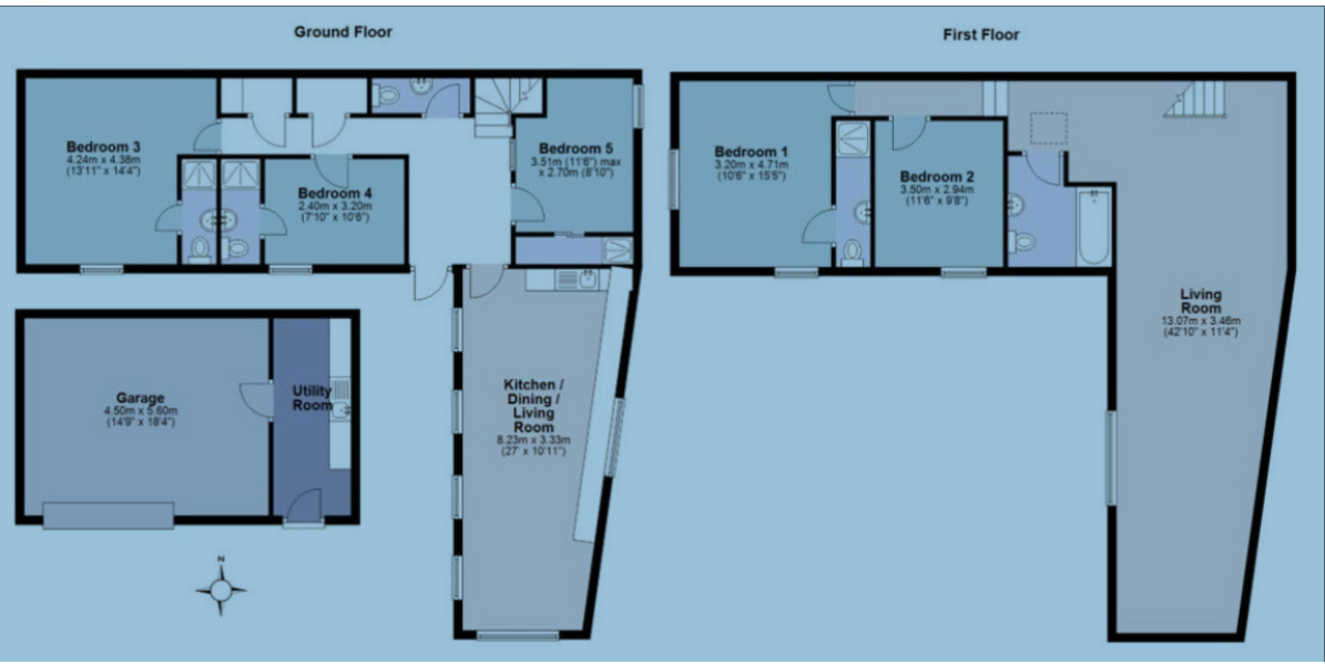
Entrance Hall – Spacious and gracious setting the tone for this stunning property. Plenty of storage for coats and shoes. There is a separate W.C and wash hand basin.
Turning immediately to the right is an open plan living/kitchen /dining area. The space here is truly breathtaking, ideal for entertaining, special family milestones and Christmases will take on a whole new dimension. There is a table currently here that can comfortably seat 10. Double doors at the end lead to a pretty courtyard ideal for drinks or al fresco dining.
The spacious Entrance Hall provides access to three of the five double bedrooms. Each of these have their own Ensuites.
Glass balustrades lead up from The Entrance Hall to the Living Room. This room really does have the “wow factor” and is deserving of early inspection (as is the whole property). This room was created for entertaining, whether formally or casual.! Skylights bathe the room in sun keeping it bright and inviting.
The Hall on the upper-level leads to a family bathroom and two double bedrooms, one with an ensuite shower.
Outside – The Lodge is approached over the forecourt and up one flight of steps. There is a lovely patio accessed from the double doors of The Living Room. This is ideal for potted plants and sun downers, coffees and alfresco dining.
The Garage is on the ground floor with access to the Utility Room

Owners Comments
As soon as we viewed The Lodge, ?? years ago, we fell in love with the contemporary style and the sheer space The Lodge had to offer.
It has been a joy for us, when we have headed off, on the spur of the moment, to Dartmouth and not had the headache of searching for a car park (and all the associated stress upon arrival), knowing we have a garage and that extra car park.
We have never tired of all the all the attractions and activities that Dartmouth has to offer. We love the fact Dartmouth never seems to have a seasonal close down and all the fabulous local events in and around Dartmouth are in within an easy walking distance of The Lodge, particularly the Dartmouth Regatta, the Food Festival and the Steam Train, especially at Christmas time when the train is adorned with Christmas lights.
The sleeping accommodation, that The Lodge offers, has meant we have been able to have two family get togethers and have had many wonderful family celebrations and anniversaries. The young cousins have loved this!
Unfortunately, due to a change of circumstances, we are now selling with a heavy heart. We have spent many happy times here in Dartmouth. We hope that the new owners will love it as much as we have done during the past ???? years. It really is a special property.

Rooms and Accommodations

  • Entrance Hall – Spacious and gracious setting the tone for this stunning property. Plenty of storage for coats and shoes. There is a separate W.C and wash hand basin.
    Turning immediately to the right is an open plan living/kitchen /dining area. The space here is truly breathtaking, ideal for entertaining, special family milestones and Christmases will take on a whole new dimension. There is a table currently here that can comfortably seat 10. Double doors at the end lead to a pretty courtyard ideal for drinks or al fresco dining.
    The spacious Entrance Hall provides access to three of the five double bedrooms. Each of these have their own Ensuites.
    Glass balustrades lead up from The Entrance Hall to the Living Room. This room really does have the “wow factor” and is deserving of early inspection (as is the whole property). This room was created for entertaining, whether formally or casual.! Skylights bathe the room in sun keeping it bright and inviting.
    The Hall on the upper-level leads to a family bathroom and two double bedrooms, one with an ensuite shower.
    Outside – The Lodge is approached over the forecourt and up one flight of steps. There is a lovely patio accessed from the double doors of The Living Room. This is ideal for potted plants and sun downers, coffees and alfresco dining.
    The Garage is on the ground floor with access to the Utility Room

    Owners Comments
    When we began our search for a home in Dartmouth, we knew we were looking for something special — and the moment we stepped into The Lodge, we knew we had found it. We were immediately captivated by its contemporary design and the remarkable sense of space. Nothing else we viewed came close. One of the true pleasures of owning The Lodge has been the freedom to head to Dartmouth on the spur of the moment, knowing we could arrive and be right in the heart of everything — yet still enjoy the rare advantage of a private garage and additional parking. That convenience, particularly in such a central location, has been invaluable. Dartmouth itself is endlessly vibrant. There is no sense of seasonal shutdown here — the town feels alive all year round. From the world-famous Dartmouth Regatta to the celebrated Food Festival and the much-loved Steam Railway (especially magical at Christmas when the train is illuminated with festive lights), so many of the town’s highlights are just a short stroll from The Lodge. The generous and flexible sleeping accommodation has allowed us to host family gatherings, milestone celebrations and countless special weekends together. The house has truly been at the heart of many happy memories. The Lodge is more than just a property — it offers a wonderful lifestyle in one of the South Hams’ most sought-after locations. We hope its next owners will cherish it as much as we have. It is, without question, a very special home.

    Material info:
    Gas and electricity Supply: British Gas.
    Tenure: Freehold
    Construction: Understood to be standard.

Marketed by

Winkworth Dartmouth

Properties for sale in Dartmouth

Arrange a Viewing

Fill in the form below to arrange your property viewing.

This site is protected by reCAPTCHA and the Google Privacy Policy and Terms of Service apply.
Introduction text for the mortgage calculator

Mortgage Calculator

Fill in the details below to estimate your monthly repayments:

Approximate monthly repayment:

For more information, please contact Winkworth's mortgage partner, Trinity Financial, on +44 (0)20 7267 9399 and speak to the Trinity team.

Stamp Duty Calculator

Fill in the details below to estimate your stamp duty

The above calculator above is for general interest only and should not be relied upon

6/14
Picture No. 08
Picture No. 09
Picture No. 07
Picture No. 10
Picture No. 12
Picture No. 13
Picture No. 03
Picture No. 04
Picture No. 11
Picture No. 06

Meet the Team

Our highly successful team has a wealth of experience and knowledge which is second to none to ensure that your moving experience is as pain free as possible. Our Grade II listed double fronted premisis opposite the market in Dartmouth is a perfect showcase for your property. Please come and talk to us about your property requirements.

See all team members

Got a question about this property?

This site is protected by reCAPTCHA and the Google Privacy Policy and Terms of Service apply.

More Properties like this

Market Square, Dartmouth, Devon, TQ6

£399,000 Share of Freehold

Lower Street, Dartmouth, Devon, TQ6

£395,000 Leasehold

Ford, Dartmouth, Devon, TQ6

£150,000 Leasehold

Online Valuations Aren’t Worth The Paper They’re Printed On.

When online valuations don’t give you the whole picture - try Winkworth’s expert service. Get a free property appraisal. Accurate valuations from our local property experts. No obligation to list with Winkworth. Choose a time convenient for you with our online booking system.

Fill in your details and someone will be in touch soon:

You have provisionally booked a valuation for . Please confirm your details below

We don't have date info available for this property, but if you fill in your details below, someone will be in touch to arrange a date soon

Please fill in the required fields below marked with *

This site is protected by reCAPTCHA and the Google Privacy Policy and Terms of Service apply.